Bildegalleri

Enebolig fra 1963 med asfaltert gårdsplass og parkering i egen carport. Foto levert av Efkt ved Pål Godager.
Enebolig på stor eiertomt på Ridabu | Innglasset terrasse, flere uteplasser og carport | Gangavstand til skole
Prisantydning3 950 000 kr
Nøkkelinfo
- Boligtype
- Enebolig
- Eieform
- Eier (Selveier)
- Soverom
- 2
- Internt bruksareal
- 209 m² (BRA-i)
- Bruksareal
- 228 m²
- Innglasset balkong
- 19 m² (BRA-b)
- Balkong/Terrasse
- 50 m² (TBA)
- Byggeår
- 1963
- Energimerking
- Rom
- 3
- Tomteareal
- 1 108 m² (eiet)
Fasiliteter
Balkong/Terrasse
Barnevennlig
Garasje/P-plass
Hage
Rolig
Utsikt
Visning
torsdag, 26. mars
17:15 – 18:00
Ønsker du å delta på visningen ber vi deg melde deg på slik at vi vet at du kommer. Da kan vi bistå alle best mulig og gi deg tiden du trenger på visningen. Ta gjerne kontakt med megler før visning hvis du har noen spørsmål. Velkommen!
VisningspåmeldingOm boligen
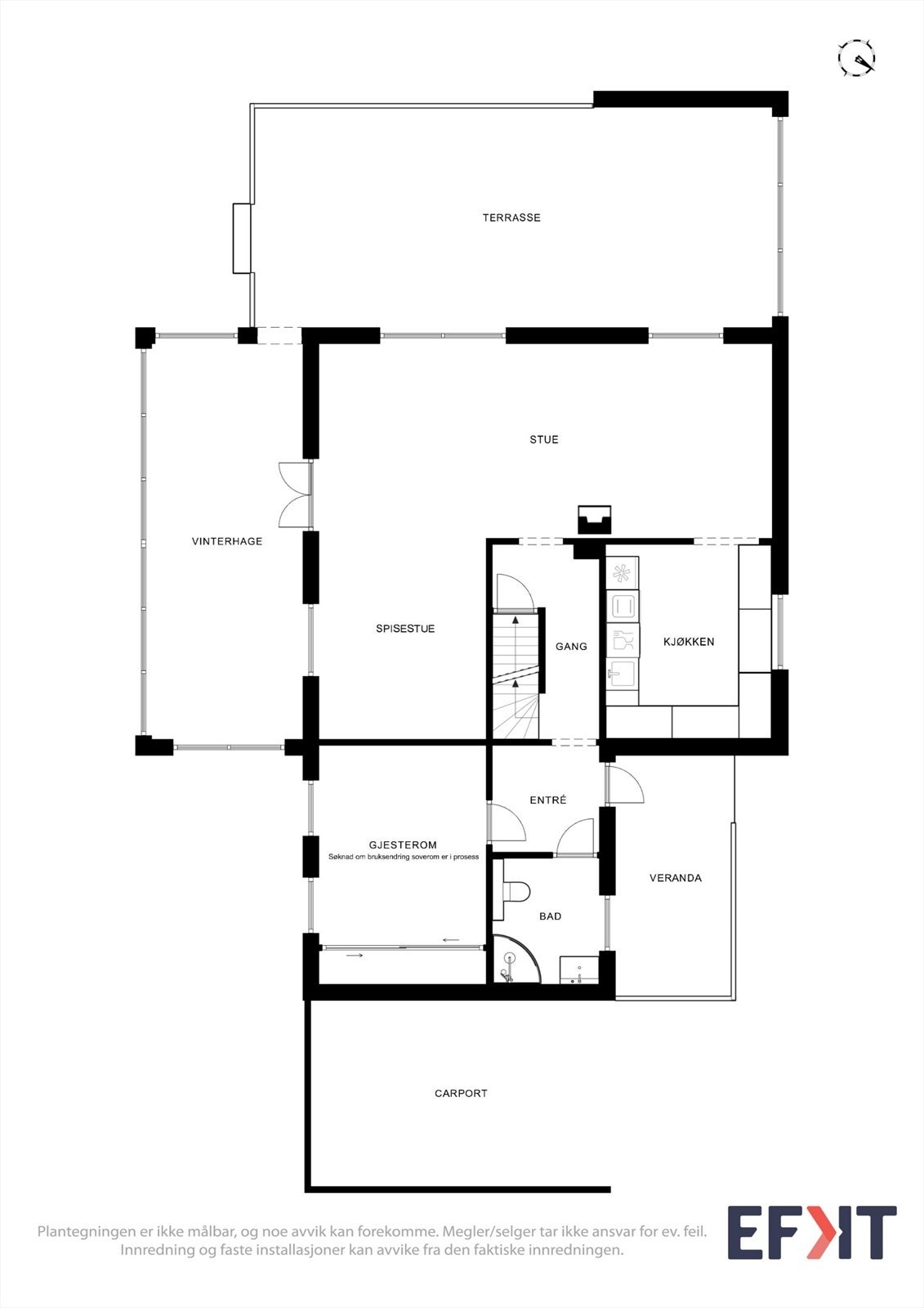
Velkommen til Granvegen 17! Dette er en innholdsrik enebolig over tre plan med en stor eiertomt i et etablert og barnevennlig nabolag på Hamar.
Eiendommen ligger i et rolig område med kort vei til skoler, barnehager og dagligvare. Her bor man med nærhet til skog og mark, samtidig som sentrum er en kort kjøretur unna. Boligen har flere uteplasser, inkludert en stor, delvis overbygget terrasse og en innglasset hagestue som forlenger sesongen. Den store hagen gir rikelig med plass for lek og aktivitet.
- Eiertomt på 1108,4 m²
- Moderne bad i 1. etasje fra 2018
- Kjøkken med integrert platetopp og komfyr
- Flere vedovner og varmepumpe
- Carport for biloppstilling
- Kort gangavstand til Ridabu og Ener skoler
Velkommen til visning!
Eiendommen ligger i et rolig område med kort vei til skoler, barnehager og dagligvare. Her bor man med nærhet til skog og mark, samtidig som sentrum er en kort kjøretur unna. Boligen har flere uteplasser, inkludert en stor, delvis overbygget terrasse og en innglasset hagestue som forlenger sesongen. Den store hagen gir rikelig med plass for lek og aktivitet.
- Eiertomt på 1108,4 m²
- Moderne bad i 1. etasje fra 2018
- Kjøkken med integrert platetopp og komfyr
- Flere vedovner og varmepumpe
- Carport for biloppstilling
- Kort gangavstand til Ridabu og Ener skoler
Velkommen til visning!
NB: Knappen for å vise hele beskrivelsen har kun en visuell effekt.
NB: Knappen for å vise hele beskrivelsen har kun en visuell effekt.
Salgsoppgaven beskriver vesentlig og lovpålagt informasjon om eiendommen
Se komplett salgsoppgaveNyttige lenker
Nærområdet
EiendomsMegler 1 Hamar
Vi loser deg trygt gjennom hele boligsalget
Annonseinformasjon
| FINN-kode | 456090232 |
|---|---|
| Sist endret | 19. mars 2026 19:09 |
| Referanse | 6019260312 |
Annonsene kan være mangelfulle i forhold til lovpålagt opplysningsplikt. Før bindende avtale inngås oppfordres interessenter til å innhente komplett informasjon fra meglerforetaket, selger eller utleier.






















































