Bildegalleri

Velkommen til Frøyerveien 79 - Presenteres av EiendomsMegler 1 | Helge Stangeland. Fotograf Truls Schaal
Hana
Innholdsrik enebolig med flott beliggenhet. Gode solforhold og herlig utsikt. Garasje - barnevennlig - blindvei.
Prisantydning4 590 000 kr
Nøkkelinfo
- Boligtype
- Enebolig
- Eieform
- Eier (Selveier)
- Soverom
- 3
- Internt bruksareal
- 163 m² (BRA-i)
- Bruksareal
- 186 m²
- Eksternt bruksareal
- 23 m² (BRA-e)
- Balkong/Terrasse
- 23 m² (TBA)
- Etasje
- 2
- Byggeår
- 1979
- Energimerking
- Rom
- 1
- Tomteareal
- 691 m² (eiet)
Om boligen
I attraktive omgivelser på Hana selger vi nå en romslig familiebolig fra 1979. Beliggenheten er helt super, med gode solforhold, flott utsikt og gangavstand til skoler, idrettsanlegg m.m. Det er også kort vei inn til sentrum.
Boligen ligger fint plassert på tomt flott utsikt og og solforhold. Det er tilliggende garasje
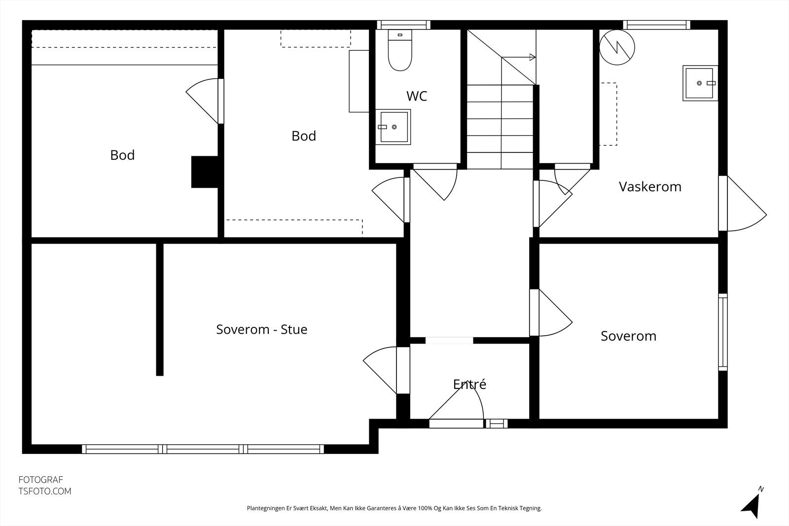
Innvendig har boligen en praktisk og god planløsning med flere innrednings muligheter. Underetasjen har også entré, samt trapperom, vaskerom, wc, bod, stue, og soverom. (Kjellerstuen er ikke bygge godkjent.)
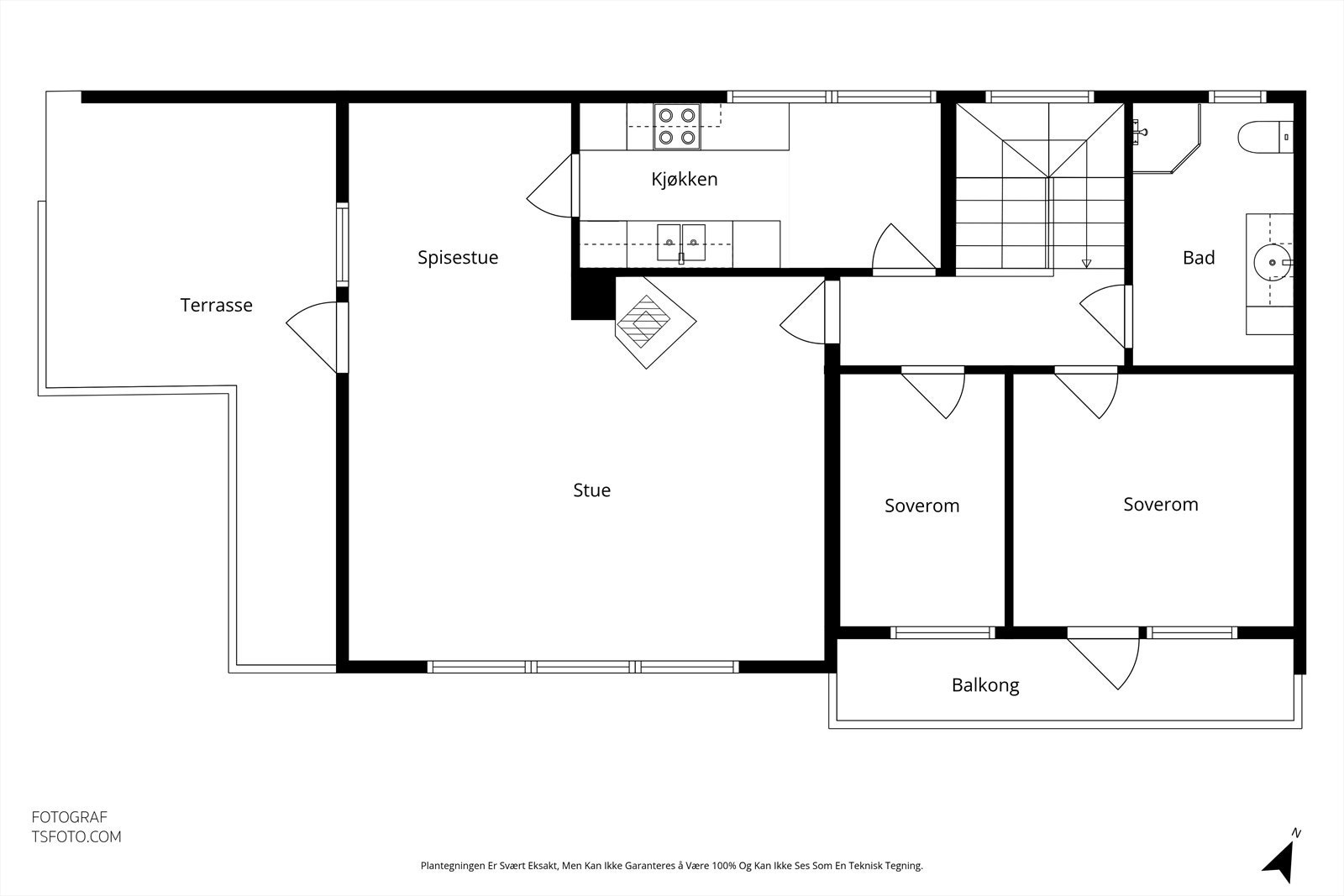
I andre etasje er det Trapp/gang, bad, 2 soverom, kjøkken og stue.
Boligen trenger oppgradering for å komme opp til dagens standard.
Boligen ligger fint plassert på tomt flott utsikt og og solforhold. Det er tilliggende garasje
Innvendig har boligen en praktisk og god planløsning med flere innrednings muligheter. Underetasjen har også entré, samt trapperom, vaskerom, wc, bod, stue, og soverom. (Kjellerstuen er ikke bygge godkjent.)
I andre etasje er det Trapp/gang, bad, 2 soverom, kjøkken og stue.
Boligen trenger oppgradering for å komme opp til dagens standard.
NB: Knappen for å vise hele beskrivelsen har kun en visuell effekt.
NB: Knappen for å vise hele beskrivelsen har kun en visuell effekt.
Salgsoppgaven beskriver vesentlig og lovpålagt informasjon om eiendommen
Se komplett salgsoppgaveNyttige lenker
Nærområdet
EiendomsMegler 1 Sandnes
En del av Sparebank 1 Sør-Norge
Annonseinformasjon
| FINN-kode | 456073296 |
|---|---|
| Sist endret | 19. mars 2026 11:03 |
| Referanse | 2301260067 |
Annonsene kan være mangelfulle i forhold til lovpålagt opplysningsplikt. Før bindende avtale inngås oppfordres interessenter til å innhente komplett informasjon fra meglerforetaket, selger eller utleier.

































