Bildegalleri

DJI_20260128122928_0040_D_PESMAVIC4.jpg
BUD MOTTATT - Landlig fritidsbolig med nausttomt - romslig eiendom med stall, anneks og uthus
Prisantydning2 290 000 kr
Nøkkelinfo
- Boligtype
- Andre
- Eieform
- Selveier
- Soverom
- 3
- Internt bruksareal
- 157 m² (BRA-i)
- Bruksareal
- 229 m²
- Eksternt bruksareal
- 72 m² (BRA-e)
- Balkong/Terrasse
- 31 m² (TBA)
- Etasje
- 3
- Byggeår
- 1945
- Energimerking
- Rom
- 5
- Tomteareal
- 1 525 m² (eiet)
Om boligen
Velkommen til Alvikvegen 404!
Eiendommen ligger landlig til i Alvika, ca. 6 km fra Moa, og består av en eiet tomt på 1.524,5 kvm opparbeidet med plen, beplantning, gruset gårdsplass og delvis naturtomt. På eiendommen følger også en nausttomt på ca. 71 kvm.
Bebyggelsen består av fritidsbolig over tre plan med tilbygd stall, samt anneks, bod, carport og uthus. Boligen har de senere årene vært benyttet som helårsbolig, men er registrert som fritidsbolig.
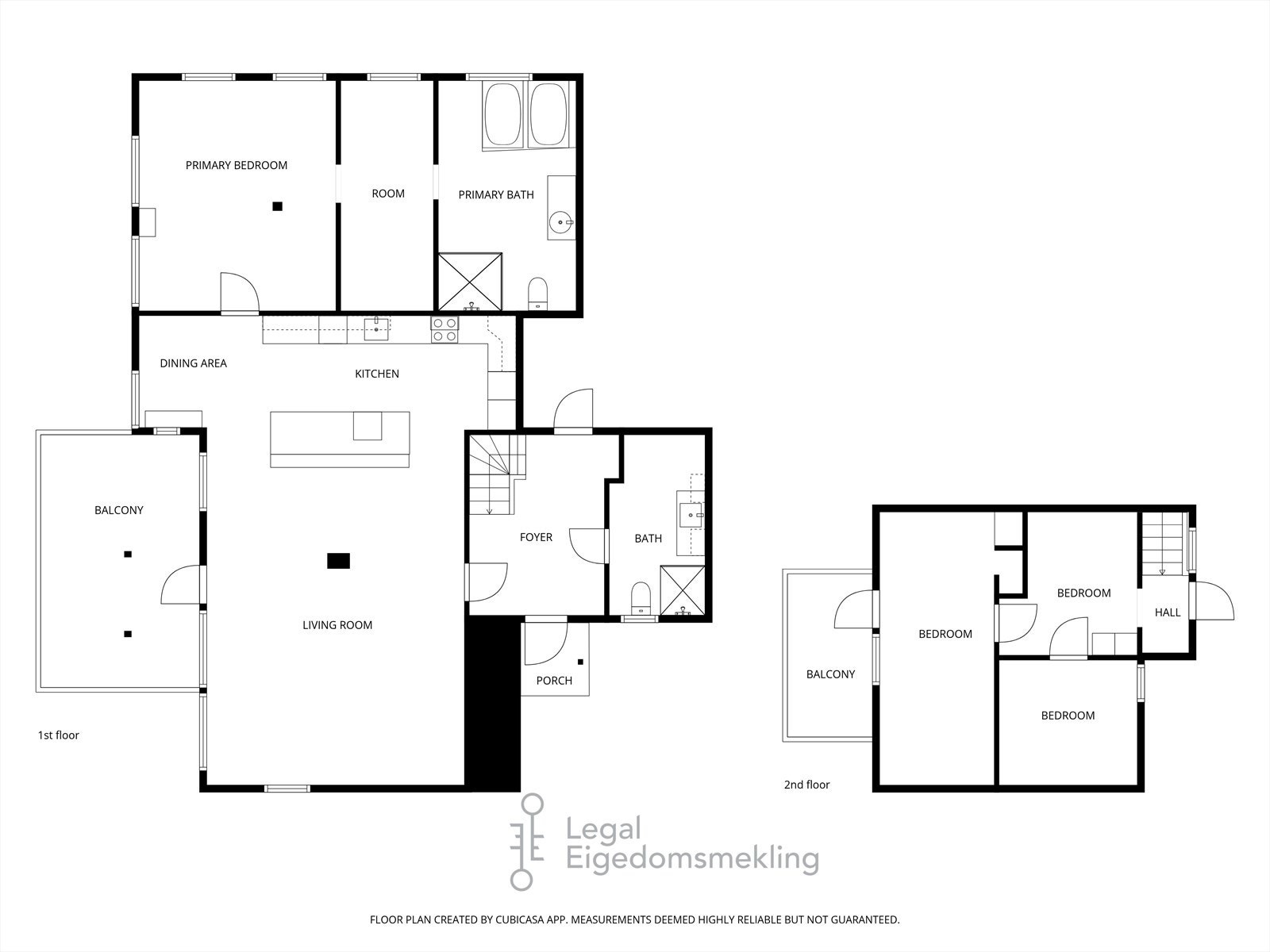
Fritidsboligen inneholder blant annet entré, kjøkken, to stuer, tre soverom, to bad/vaskerom, samt kjeller med stall, bod og teknisk rom.
Velkommen til visning!
Eiendommen ligger landlig til i Alvika, ca. 6 km fra Moa, og består av en eiet tomt på 1.524,5 kvm opparbeidet med plen, beplantning, gruset gårdsplass og delvis naturtomt. På eiendommen følger også en nausttomt på ca. 71 kvm.
Bebyggelsen består av fritidsbolig over tre plan med tilbygd stall, samt anneks, bod, carport og uthus. Boligen har de senere årene vært benyttet som helårsbolig, men er registrert som fritidsbolig.
Fritidsboligen inneholder blant annet entré, kjøkken, to stuer, tre soverom, to bad/vaskerom, samt kjeller med stall, bod og teknisk rom.
Velkommen til visning!
NB: Knappen for å vise hele beskrivelsen har kun en visuell effekt.
NB: Knappen for å vise hele beskrivelsen har kun en visuell effekt.
Salgsoppgaven beskriver vesentlig og lovpålagt informasjon om eiendommen
Se komplett salgsoppgaveNyttige lenker
Nærområdet
Legal Eigedomsmekling AS
Eigedomsmekling - Slik det bør være
Annonseinformasjon
| FINN-kode | 456042940 |
|---|---|
| Sist endret | 21. apr. 2026 08:29 |
| Referanse | GAR47.25147 |
Annonsene kan være mangelfulle i forhold til lovpålagt opplysningsplikt. Før bindende avtale inngås oppfordres interessenter til å innhente komplett informasjon fra meglerforetaket, selger eller utleier.































