Bildegalleri

Eiendomsmegler Norge ved Kristian Lossius har gleden av å ønske deg velkommen Rona 10!
Rona
En pen 3-roms endeleilighet med solrik innglasset balkong og garasjeplass i kjeller. Sjøutsikt!
Prisantydning3 800 000 kr
Nøkkelinfo
- Boligtype
- Leilighet
- Eieform
- Eier (Selveier)
- Soverom
- 2
- Internt bruksareal
- 71 m² (BRA-i)
- Bruksareal
- 89 m²
- Eksternt bruksareal
- 5 m² (BRA-e)
- Innglasset balkong
- 13 m² (BRA-b)
- Etasje
- 1
- Byggeår
- 2014
- Rom
- 3
- Tomteareal
- 4 694 m² (eiet)
Fasiliteter
Balkong/Terrasse
Garasje/P-plass
Heis
Parkett
Rolig
Utsikt
Lademulighet
Om boligen
Eiendomsmegler Norge ved Kristian Lossius har gleden av å ønske deg velkommen Rona 10!
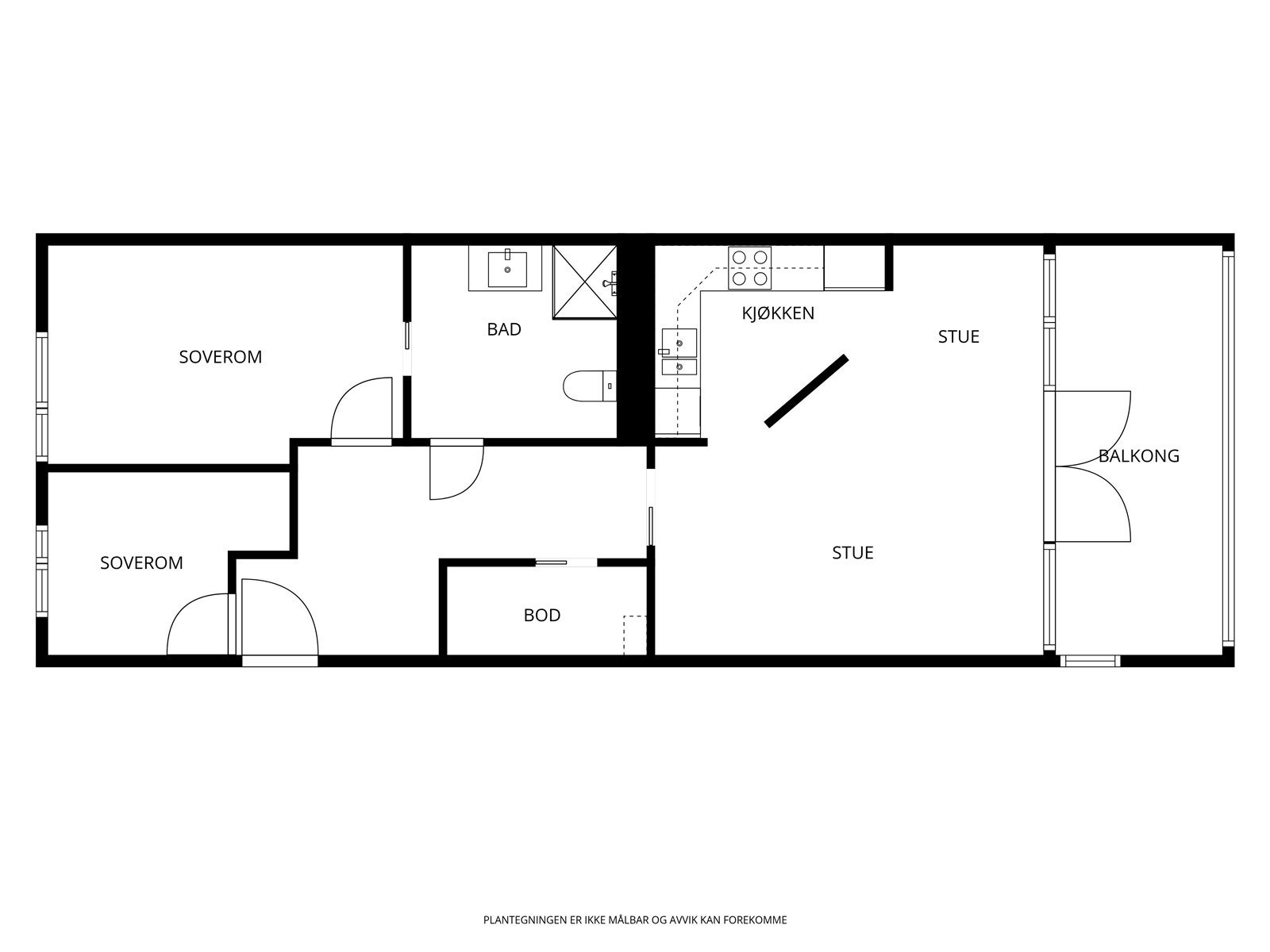
Leiligheten ligger i 1. etg. Fra atriet og 2 etg. fra veien.
Entré, en stor lys stue som har rikelig med vindusflater som gir rikelig med lys inn i boligen. Fra stuen er det inngang til en romslig innglasset balkong med sjøutsikt. I stuen er det god plass til både sofagruppe og spisebord. Stuen har gjennomgående 3-stavs eikeparkett og malte overflater. Stuen er delvis åpen mot kjøkken. Kjøkken med hvite fronter og laminat benkeplate. Hvitevarer medfølger salget. Flott flislagt bad med varme i gulv. Badet har dusjhjørne, vegghengt toalett og servant med underskuffer og overspeil med lys. 2 soverom med god plass til seng og skap. Fra hovedsoverom er det direkte inngang til bad. En innvendig bod/vaskerom
Leiligheten ligger i 1. etg. Fra atriet og 2 etg. fra veien.
Entré, en stor lys stue som har rikelig med vindusflater som gir rikelig med lys inn i boligen. Fra stuen er det inngang til en romslig innglasset balkong med sjøutsikt. I stuen er det god plass til både sofagruppe og spisebord. Stuen har gjennomgående 3-stavs eikeparkett og malte overflater. Stuen er delvis åpen mot kjøkken. Kjøkken med hvite fronter og laminat benkeplate. Hvitevarer medfølger salget. Flott flislagt bad med varme i gulv. Badet har dusjhjørne, vegghengt toalett og servant med underskuffer og overspeil med lys. 2 soverom med god plass til seng og skap. Fra hovedsoverom er det direkte inngang til bad. En innvendig bod/vaskerom
NB: Knappen for å vise hele beskrivelsen har kun en visuell effekt.
NB: Knappen for å vise hele beskrivelsen har kun en visuell effekt.
Salgsoppgaven beskriver vesentlig og lovpålagt informasjon om eiendommen
Se komplett salgsoppgaveNyttige lenker
Nærområdet
Eiendomsmegler Norge Kristiansand
Best der du bor
Annonseinformasjon
| FINN-kode | 455994410 |
|---|---|
| Sist endret | 17. mars 2026 18:18 |
| Referanse | 50260069 |
Annonsene kan være mangelfulle i forhold til lovpålagt opplysningsplikt. Før bindende avtale inngås oppfordres interessenter til å innhente komplett informasjon fra meglerforetaket, selger eller utleier.






























