Bildegalleri

Velkommen til Hvalrossvegen 5 - Presentert av Kjetil Rusten v/ Garanti Eiendomsmegling!
Kvaløysletta
Flott og innholdsrik enebolig-oppgradert i nyere tid-garasje, utleie (ikke søkt godkjent) og barnevennlig beliggenhet
Prisantydning8 750 000 kr
Nøkkelinfo
- Boligtype
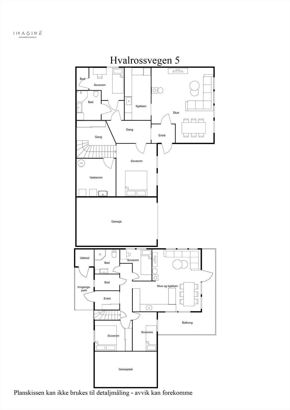
- Enebolig
- Eieform
- Eier (Selveier)
- Soverom
- 5
- Internt bruksareal
- 176 m² (BRA-i)
- Bruksareal
- 202 m²
- Eksternt bruksareal
- 26 m² (BRA-e)
- Balkong/Terrasse
- 26 m² (TBA)
- Byggeår
- 1980
- Energimerking
- Rom
- 7
- Tomteareal
- 528 m² (eiet)
Fasiliteter
Balkong/Terrasse
Barnevennlig
Bredbåndstilknytning
Garasje/P-plass
Hage
Kjæledyr tillatt
Ingen gjenboere
Kabel-TV
Offentlig vann/kloakk
Parkett
Peis/Ildsted
Rolig
Sentralt
Utsikt
Turterreng
Visning
onsdag, 25. mars
17:30 – 18:15
Alle våre visninger har påmelding. På denne måten sikrer vi at megler har god oversikt og tid til å imøtekomme alle interessenter på beste måte. Skulle ingen være påmeldt til visningen, vil visningen ikke bli gjennomført. Passer ikke annonsert tidspunkt, ta kontakt så finner vi en løsning.
VisningspåmeldingOm boligen
En flott enebolig på Kvaløysletta med oppgradert standard.
Boligen er betydelig oppgradert de senere år, med et lekkert kjøkken fra 2024, et utsøkt bad fra 2021, stor og solrik balkong fra 2025, glatte veggoverflater og gulv fra 2023, samt flere store oppgraderinger.
Hovedboligen har en åpen og sosial stue/kjøkken-løsning, med meget god takhøyde, store vindusflater med rikelig naturlig lysinnslipp, samt utgang til balkong. Lekkert kjøkken, toppmoderne bad, 3 gode soverom, et praktisk vaskerom, samt både innvendig og utvendig bod.
I underetasjen finner du en 3-roms utleiedel med eget kjøkken, bad, 2 soverom og inngangsparti. (Ikke søkt godkjent hos kommunen.)
Parkering i garasje, og flott hage får du også!
Familievennlig beliggenhet med kort veg til skole, butikk, busstopp m, m.
Boligen er betydelig oppgradert de senere år, med et lekkert kjøkken fra 2024, et utsøkt bad fra 2021, stor og solrik balkong fra 2025, glatte veggoverflater og gulv fra 2023, samt flere store oppgraderinger.
Hovedboligen har en åpen og sosial stue/kjøkken-løsning, med meget god takhøyde, store vindusflater med rikelig naturlig lysinnslipp, samt utgang til balkong. Lekkert kjøkken, toppmoderne bad, 3 gode soverom, et praktisk vaskerom, samt både innvendig og utvendig bod.
I underetasjen finner du en 3-roms utleiedel med eget kjøkken, bad, 2 soverom og inngangsparti. (Ikke søkt godkjent hos kommunen.)
Parkering i garasje, og flott hage får du også!
Familievennlig beliggenhet med kort veg til skole, butikk, busstopp m, m.
NB: Knappen for å vise hele beskrivelsen har kun en visuell effekt.
NB: Knappen for å vise hele beskrivelsen har kun en visuell effekt.
Salgsoppgaven beskriver vesentlig og lovpålagt informasjon om eiendommen
Se komplett salgsoppgaveNyttige lenker
Nærområdet
GARANTI Eiendomsmegling Tromsø
Annonseinformasjon
| FINN-kode | 455985334 |
|---|---|
| Sist endret | 18. mars 2026 13:41 |
| Referanse | GAR51.266 |
Annonsene kan være mangelfulle i forhold til lovpålagt opplysningsplikt. Før bindende avtale inngås oppfordres interessenter til å innhente komplett informasjon fra meglerforetaket, selger eller utleier.








































