Bildegalleri

Velkommen til Julianus Holms veg 64. En gjennomgående fin leilighet med etterspurt beliggenhet.
Lade
PEN OG MODERNE LEILIGHET MED ATTRAKTIV BELIGGENHET PÅ LADE - Gjennomgående fin standard - Solrik balkong - heis
Prisantydning3 390 000 kr
Nøkkelinfo
- Boligtype
- Leilighet
- Eieform
- Eier (Selveier)
- Soverom
- 1
- Internt bruksareal
- 48 m² (BRA-i)
- Bruksareal
- 53 m²
- Eksternt bruksareal
- 5 m² (BRA-e)
- Balkong/Terrasse
- 9 m² (TBA)
- Etasje
- 3
- Byggeår
- 2015
- Energimerking
- B - Mørkegrønn
- Tomteareal
- 4 721 m² (eiet)
Fasiliteter
Balkong/Terrasse
Kabel-TV
Offentlig vann/kloakk
Parkett
Peis/Ildsted
Turterreng
Sentralt
Bredbåndstilknytning
Moderne
Rolig
Bademulighet
Visning
onsdag, 25. mars
18:00 – 19:00
Våre visninger har påmelding. Dette gjør vi for å kunne yte bedre service for våre kunder. Verdifullt for boligkjøper og for oss. Vi anbefaler at salgsoppgaven lastes ned digitalt før visning, og ring oss gjerne på forhånd for spørsmål om boligen. Passer ikke angitt tidspunkt, ta kontakt så finner vi en løsning. Skulle det mot formodning ikke være påmeldte til angitt visningstidspunkt vil ikke visning bli gjennomført.
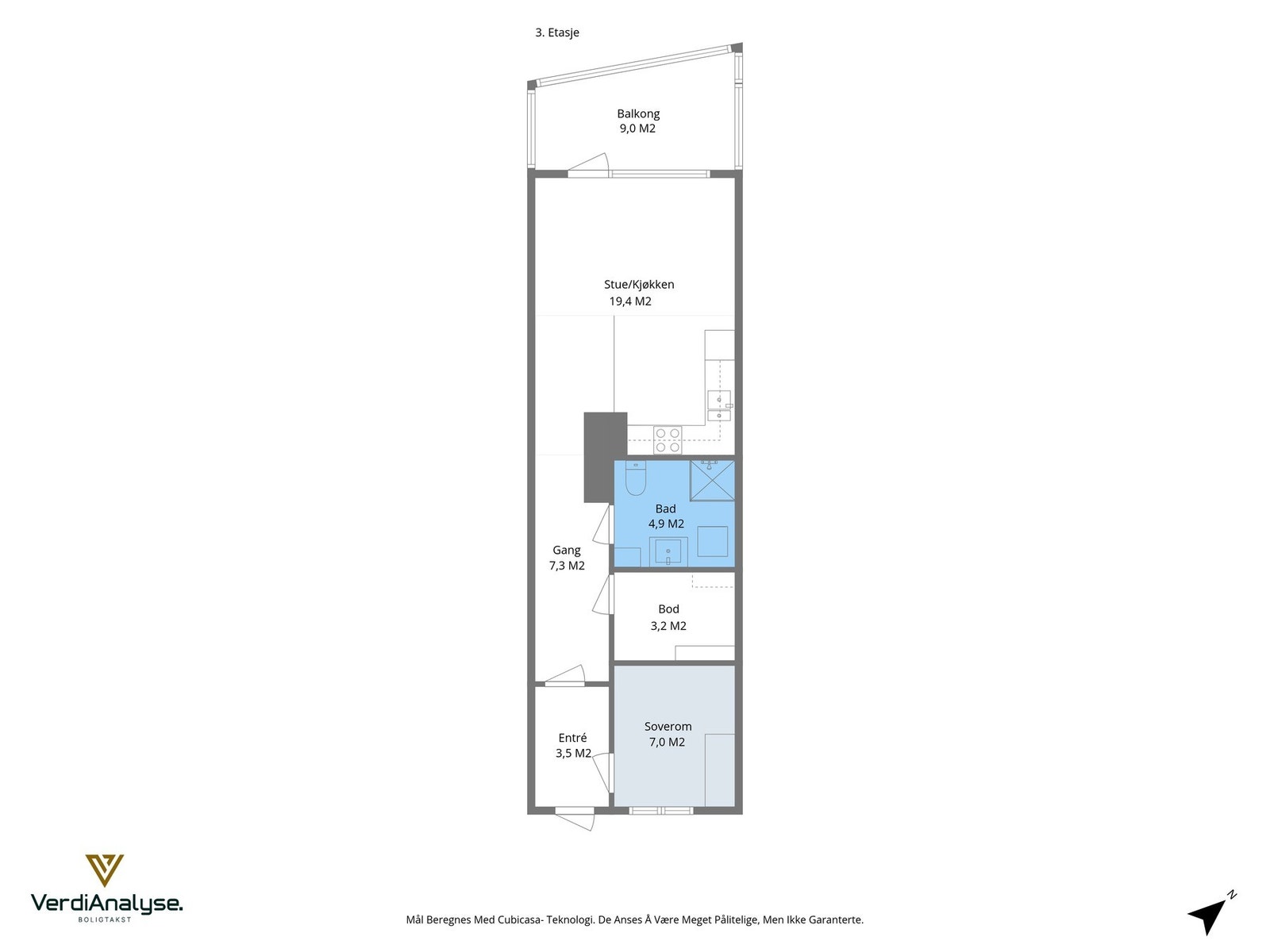
Om boligen
EiendomsMegler 1 ved Stian Berg har gleden av å presentere en meget pen 2-romsleilighet bygd i 2015 på attraktive Lade.Her får du en gjennomgående fin leilighet med gangavstand til alt du trenger i hverdagen. Boligen ligger fint til og har umiddelbar nærhet til bla. dagligvare, kollektivtilbud, legesenter og Ladestien.
Kvaliteter med boligen som bør fremheves
- Leiligheten har høy standard med kun én TG0 og TG1
- Åpen og sosial stue/kjøkkenløsning på 19,4 kvm.
- Pent flislagt bad på 4,9 kvm med opplegg for vaskemaskin.
- Stort soverom av god størrelse på 7 kvm.
- Stor og fin terrasse på 9 kvm med utsikt mot fellesareal og gode solforhold.
- Internbod samt egen bod i kjeller.
- Plejd smart belysning.
- Heis i bygget.
- Attraktiv beliggenhet på Lade med nærhet til "alt man trenger" av servicefunksjoner
Velkommen til en hyggelig visning.
Kvaliteter med boligen som bør fremheves
- Leiligheten har høy standard med kun én TG0 og TG1
- Åpen og sosial stue/kjøkkenløsning på 19,4 kvm.
- Pent flislagt bad på 4,9 kvm med opplegg for vaskemaskin.
- Stort soverom av god størrelse på 7 kvm.
- Stor og fin terrasse på 9 kvm med utsikt mot fellesareal og gode solforhold.
- Internbod samt egen bod i kjeller.
- Plejd smart belysning.
- Heis i bygget.
- Attraktiv beliggenhet på Lade med nærhet til "alt man trenger" av servicefunksjoner
Velkommen til en hyggelig visning.
NB: Knappen for å vise hele beskrivelsen har kun en visuell effekt.
NB: Knappen for å vise hele beskrivelsen har kun en visuell effekt.
Salgsoppgaven beskriver vesentlig og lovpålagt informasjon om eiendommen
Se komplett salgsoppgaveNyttige lenker
Nærområdet
EiendomsMegler 1 Byåsen
Vi loser deg trygt gjennom hele boligsalget
Annonseinformasjon
| FINN-kode | 455979667 |
|---|---|
| Sist endret | 18. mars 2026 11:59 |
| Referanse | 35260071 |
Annonsene kan være mangelfulle i forhold til lovpålagt opplysningsplikt. Før bindende avtale inngås oppfordres interessenter til å innhente komplett informasjon fra meglerforetaket, selger eller utleier.
























