Bildegalleri

EiendomsMegler1 v/ Tonje Nystad presenterer Hvalenvegen 11B!
Porsgrunn - Skjelsvik
Svært koselig andelsleilighet | 2 soverom | Lekkert, romslig kjøkken | Flislagt bad | Nydelige sol - og utsiktsforhold!
Prisantydning1 950 000 kr
Nøkkelinfo
- Boligtype
- Leilighet
- Eieform
- Andel
- Soverom
- 2
- Internt bruksareal
- 69 m² (BRA-i)
- Bruksareal
- 83 m²
- Eksternt bruksareal
- 14 m² (BRA-e)
- Balkong/Terrasse
- 14 m² (TBA)
- Etasje
- 2
- Byggeår
- 1970
- Energimerking
- Rom
- 4
- Tomteareal
- 20 098 m² (eiet)
Fasiliteter
Balkong/Terrasse
Barnevennlig
Rolig
Utsikt
Turterreng
Lademulighet
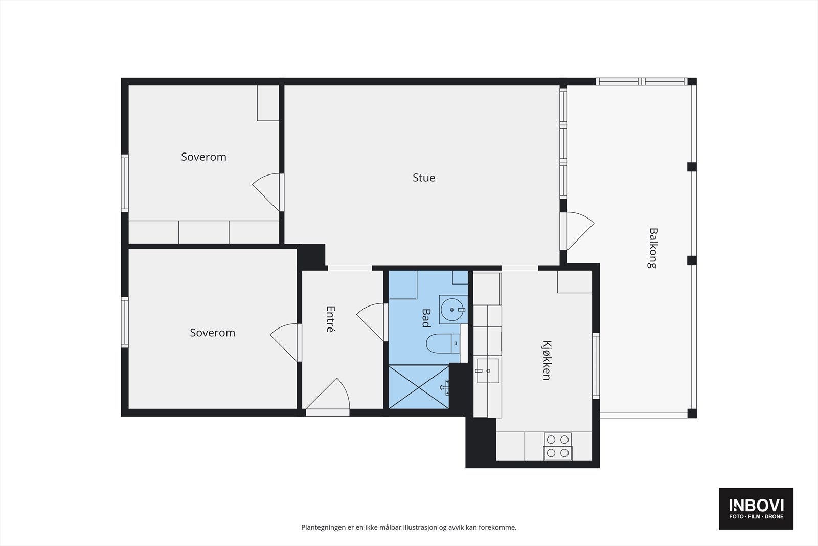
Om boligen
Velkommen til Hvalenvegen 11B! Tiltalende og romslig 3-roms andelsleilighet beliggende i 2.etasje i et koselig borettslag på Skjelsvik/Hvalen. Leiligheten har en praktisk planløsning og fine gjennomgående overflater. Her får du blant annet to gode soverom, lekkert kjøkken fra Ikea, flislagt baderom og overbygget balkong med nydelig utsikt utover Eidangerfjorden. Innvendige overflater er pent pusset opp i senere tid. I regi av borettslaget er bad pusset opp i 2006, og byttet vinduer og verandadør i 2025. Leiligheten disponerer to boder i kjeller og en på loftet. Varmtvann er inkl. i felleskostnader!
Boligen ligger i et attraktivt boligområdet på Skjelsvik / Hvalen, ca. 8,5 km fra Porsgrunn sentrum. Fra boligen er det kort og trygg vei til både Brattås barneskole og Heistad ungdomsskole.
Boligen ligger i et attraktivt boligområdet på Skjelsvik / Hvalen, ca. 8,5 km fra Porsgrunn sentrum. Fra boligen er det kort og trygg vei til både Brattås barneskole og Heistad ungdomsskole.
NB: Knappen for å vise hele beskrivelsen har kun en visuell effekt.
NB: Knappen for å vise hele beskrivelsen har kun en visuell effekt.
Salgsoppgaven beskriver vesentlig og lovpålagt informasjon om eiendommen
Se komplett salgsoppgaveNyttige lenker
Nærområdet
EiendomsMegler 1 Porsgrunn
et foretak i SpareBank 1 Sør-Norge konsernet
Annonseinformasjon
| FINN-kode | 455973583 |
|---|---|
| Sist endret | 19. mars 2026 11:59 |
| Referanse | 1412260059 |
Annonsene kan være mangelfulle i forhold til lovpålagt opplysningsplikt. Før bindende avtale inngås oppfordres interessenter til å innhente komplett informasjon fra meglerforetaket, selger eller utleier.






























