Bildegalleri

Nordvik Bolig v/Thomas Birkeland har gleden av å presentere Ledaalsgata 13! Foto: Joakim Hagen.
Vestre Platå
Moderne og nyoppført townhouse med gode kvaliteter | 3 soverom, 2 bad og attraktiv beliggenhet
Prisantydning5 990 000 kr
Nøkkelinfo
- Boligtype
- Leilighet
- Eieform
- Eier (Selveier)
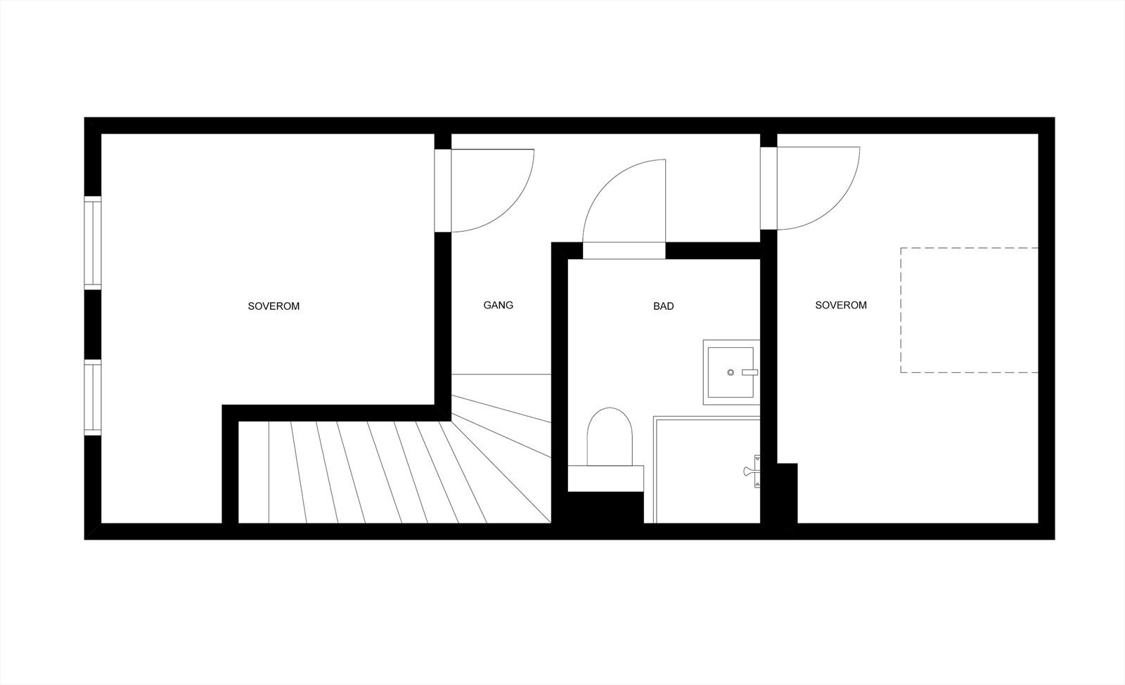
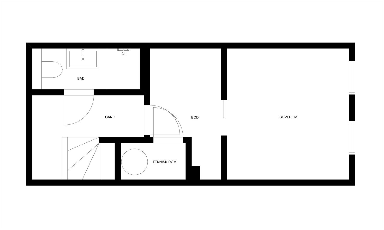
- Soverom
- 3
- Internt bruksareal
- 82 m² (BRA-i)
- Bruksareal
- 82 m²
- Etasje
- 3
- Byggeår
- 2026
- Rom
- 4
- Tomteareal
- 306 m² (eiet)
Fasiliteter
Bredbåndstilknytning
Kjæledyr tillatt
Kabel-TV
Offentlig vann/kloakk
Parkett
Peis/Ildsted
Rolig
Sentralt
Turterreng
Om boligen
Eiendommen ligger i et attraktivt og veletablert område på Vestre Platå, omgitt av klassisk og sjarmerende bebyggelse. Her bor du sentralt med kort vei til Stavanger sentrum, samtidig som populære turområder som Mosvatnet og Stokkavatnet er like i nærheten.
- Moderne og gjennomført townhouse ferdigstilt 2026 med stilrent uttrykk
- God romfølelse og naturlig flyt mellom oppholdsrom
- Lys og luftig stue med gode lysforhold
- Åpen og sosial løsning mellom kjøkken og stue
- Tre gode soverom med fleksible bruksmuligheter
- To delikate bad med moderne standard
- Egen inngang gir en mer privat og eneboligfølelse
- Kort gangavstand til Stavanger sentrum
- Nærhet til kollektivtransport, servicetilbud og byliv
- Attraktivt og rolig boligområde
NB: Knappen for å vise hele beskrivelsen har kun en visuell effekt.
NB: Knappen for å vise hele beskrivelsen har kun en visuell effekt.
Salgsoppgaven beskriver vesentlig og lovpålagt informasjon om eiendommen
Se komplett salgsoppgaveNyttige lenker
Nærområdet
Nordvik Stavanger
Vi vet hva det er verdt
Annonseinformasjon
| FINN-kode | 455969508 |
|---|---|
| Sist endret | 18. mars 2026 19:01 |
| Referanse | 43-0095/26 |
Annonsene kan være mangelfulle i forhold til lovpålagt opplysningsplikt. Før bindende avtale inngås oppfordres interessenter til å innhente komplett informasjon fra meglerforetaket, selger eller utleier.










































