Bildegalleri

Velkommen til Torggata 140, presentert av Nina Dæhli Harviken. Foto: Pil Branding (Kim Rognmo).
Hamar sentrum
Strøken 3-roms leilighet i Bryggerigården. Vest- og østvendt balkong. Garasjeplass med elbil-lader. Heis.
Prisantydning5 600 000 kr
Nøkkelinfo
- Boligtype
- Leilighet
- Eieform
- Eier (Selveier)
- Soverom
- 2
- Internt bruksareal
- 69 m² (BRA-i)
- Bruksareal
- 74 m²
- Eksternt bruksareal
- 5 m² (BRA-e)
- Balkong/Terrasse
- 13 m² (TBA)
- Byggeår
- 2022
- Energimerking
- A - Mørkegrønn
- Tomteareal
- 1 783 m² (eiet)
Fasiliteter
Barnevennlig
Balkong/Terrasse
Garasje/P-plass
Kabel-TV
Heis
Offentlig vann/kloakk
Parkett
Turterreng
Sentralt
Bredbåndstilknytning
Moderne
Lademulighet
Balansert ventilasjon
Om boligen
EIE har gleden av å presentere denne strøkne 3-roms leiligheten i Bryggerigården!
Leiligheten har en svært hyggelig beliggenhet like ved Mjøsa, og i gangavstand fra sentrumskjernen i Hamar.
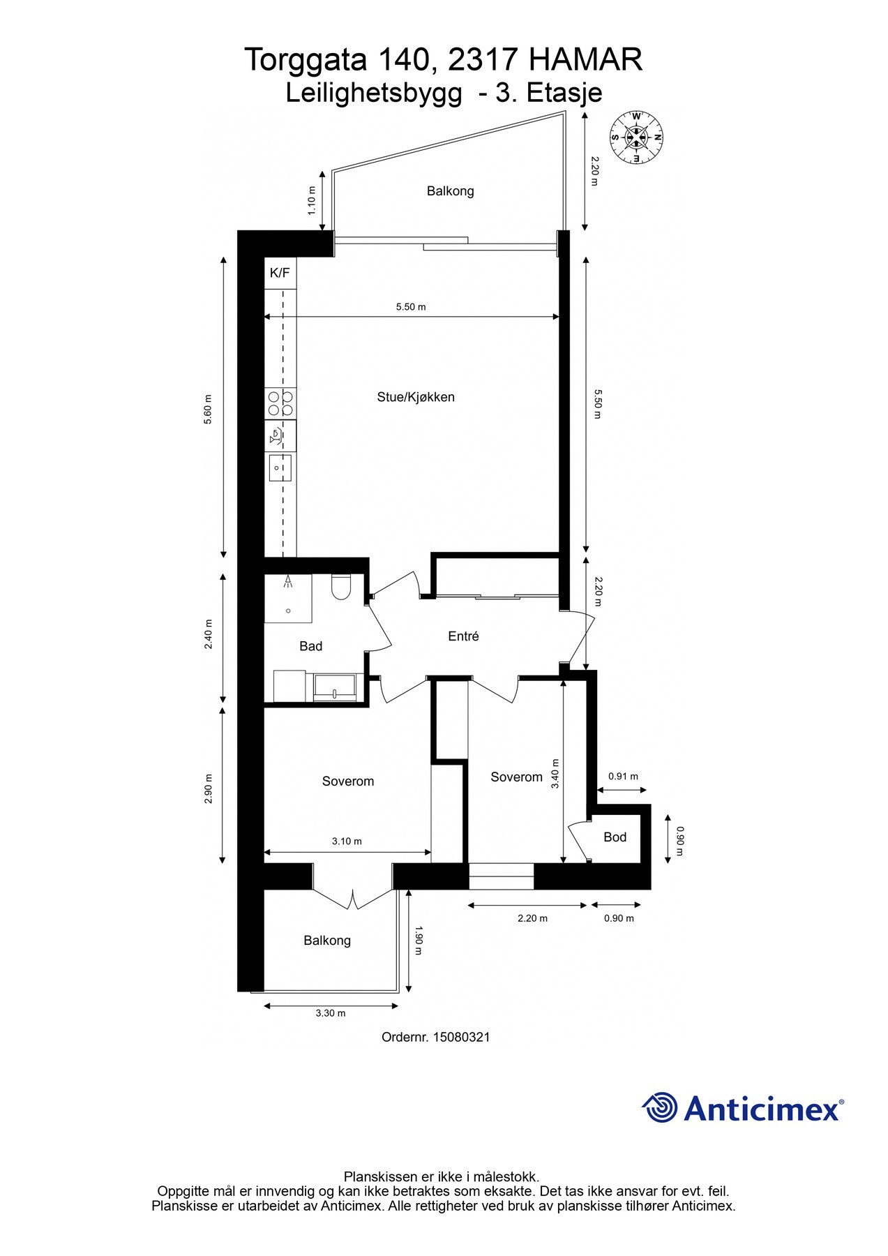
Leiligheten ligger i byggets 3. etasje og har en praktisk planløsning. Her er det en åpen stue- og kjøkkenløsning, to soverom, bod og flislagt bad. Fra stuen er det utgang til vestvendt og solrik balkong. I tillegg er det en balkong med utgang fra et soverom på baksiden. Her er det med andre ord mulig å nyte solen hele dagen. Leiligheten disponerer en ekstra bod samt parkeringsplass med elbil-lader. Enkel adkomst med heis.
Alt i alt byr denne leiligheten på en gjennomført og komfortabel hverdag med fine uteplasser, parkering og enkel adkomst - midt i hjertet av Hamar.
Velkommen til en hyggelig visning.
Leiligheten har en svært hyggelig beliggenhet like ved Mjøsa, og i gangavstand fra sentrumskjernen i Hamar.
Leiligheten ligger i byggets 3. etasje og har en praktisk planløsning. Her er det en åpen stue- og kjøkkenløsning, to soverom, bod og flislagt bad. Fra stuen er det utgang til vestvendt og solrik balkong. I tillegg er det en balkong med utgang fra et soverom på baksiden. Her er det med andre ord mulig å nyte solen hele dagen. Leiligheten disponerer en ekstra bod samt parkeringsplass med elbil-lader. Enkel adkomst med heis.
Alt i alt byr denne leiligheten på en gjennomført og komfortabel hverdag med fine uteplasser, parkering og enkel adkomst - midt i hjertet av Hamar.
Velkommen til en hyggelig visning.
NB: Knappen for å vise hele beskrivelsen har kun en visuell effekt.
NB: Knappen for å vise hele beskrivelsen har kun en visuell effekt.
Salgsoppgaven beskriver vesentlig og lovpålagt informasjon om eiendommen
Se komplett salgsoppgaveNyttige lenker
Nærområdet
EIE eiendomsmegling Innlandet
Annonseinformasjon
| FINN-kode | 455952472 |
|---|---|
| Sist endret | 19. mars 2026 12:14 |
| Referanse | 72260102 |
Annonsene kan være mangelfulle i forhold til lovpålagt opplysningsplikt. Før bindende avtale inngås oppfordres interessenter til å innhente komplett informasjon fra meglerforetaket, selger eller utleier.





































