Bildegalleri

EIE eiendomsmegling ved Yasin Unal har gleden av å presentere Festningsgata 45!
Singsaker
Innholdsrik og stor ¼ med BRA 139 m² på 2 plan. Markterrasse & stor gårdsplass. Utsikt til Festningsparken.
Prisantydning5 990 000 kr
Nøkkelinfo
- Boligtype
- Tomannsbolig
- Eieform
- Eier (Selveier)
- Soverom
- 4
- Internt bruksareal
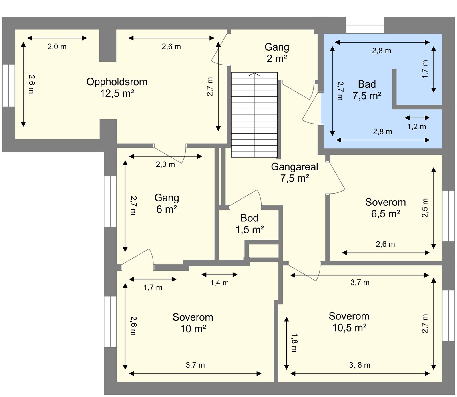
- 139 m² (BRA-i)
- Bruksareal
- 139 m²
- Balkong/Terrasse
- 7 m² (TBA)
- Byggeår
- 1928
- Energimerking
- E - Oransje
- Rom
- 5
- Tomteareal
- 534 m² (eiet)
Fasiliteter
Barnevennlig
Balkong/Terrasse
Garasje/P-plass
Offentlig vann/kloakk
Parkett
Peis/Ildsted
Turterreng
Utsikt
Sentralt
Bredbåndstilknytning
Lademulighet
Om boligen
EIE eiendomsmegling ved Yasin Unal har gleden av å presentere Festningsgata 45. En romslig leilighet over 2 plan i en klassisk firemannsbolig. Fra boligen er det kort vei til Trondheim sentrum, studiesteder, og kollektivtransport.
Kjøper har mulighet til å erverve begge seksjoner samlet ved interesse. Seksjonene eies i dag av samme aksjeselskap, og det åpnes for at kjøp kan gjennomføres ved overtakelse av selskapet. Dette kan gi mulighet for å unngå dokumentavgift, forutsatt at gjeldende regelverk og vilkår for slik overdragelse er oppfylt.
Merk deg følgende:
- Store deler av leiligheten ble oppgradert i 2005.
- 4 soverom og et tilleggsrom.
- Leiligheten er i dag utleid for kr 33.000 per måned, eksklusive strøm og internett.
- Romslig leilighet over to plan i firemannsbolig.
- Felles gårdsplass med seksjon 2, med plass til ca.4 biler.
- Etablert og attraktivt boligområde.
- Flott opparbeidet og stor tomt på ca. 534 kvm.
- Skjermet hage og uteområde.
- Romslig utvendig felles bod.
Kjøper har mulighet til å erverve begge seksjoner samlet ved interesse. Seksjonene eies i dag av samme aksjeselskap, og det åpnes for at kjøp kan gjennomføres ved overtakelse av selskapet. Dette kan gi mulighet for å unngå dokumentavgift, forutsatt at gjeldende regelverk og vilkår for slik overdragelse er oppfylt.
Merk deg følgende:
- Store deler av leiligheten ble oppgradert i 2005.
- 4 soverom og et tilleggsrom.
- Leiligheten er i dag utleid for kr 33.000 per måned, eksklusive strøm og internett.
- Romslig leilighet over to plan i firemannsbolig.
- Felles gårdsplass med seksjon 2, med plass til ca.4 biler.
- Etablert og attraktivt boligområde.
- Flott opparbeidet og stor tomt på ca. 534 kvm.
- Skjermet hage og uteområde.
- Romslig utvendig felles bod.
NB: Knappen for å vise hele beskrivelsen har kun en visuell effekt.
NB: Knappen for å vise hele beskrivelsen har kun en visuell effekt.
Salgsoppgaven beskriver vesentlig og lovpålagt informasjon om eiendommen
Se komplett salgsoppgaveNyttige lenker
Nærområdet
EIE eiendomsmegling Heimdal
Annonseinformasjon
| FINN-kode | 455952010 |
|---|---|
| Sist endret | 18. mars 2026 15:17 |
| Referanse | 97260028 |
Annonsene kan være mangelfulle i forhold til lovpålagt opplysningsplikt. Før bindende avtale inngås oppfordres interessenter til å innhente komplett informasjon fra meglerforetaket, selger eller utleier.


































