Bildegalleri

EiendomsMegler 1 v/Frank Robert Bae har gleden av å presentere en lekker 3-roms selveierleilighet beliggende på Vikåsen/Markaplassen.
Markaplassen/Vikåsen
Flott 3-roms selveierleilighet - Flere oppgraderinger - Sørvendt terrasse m/glimrende solforhold - Sportsbod - P-plass
Prisantydning3 590 000 kr
Nøkkelinfo
- Boligtype
- Leilighet
- Eieform
- Eier (Selveier)
- Soverom
- 2
- Internt bruksareal
- 73 m² (BRA-i)
- Bruksareal
- 78 m²
- Eksternt bruksareal
- 5 m² (BRA-e)
- Balkong/Terrasse
- 30 m² (TBA)
- Etasje
- 1
- Byggeår
- 1993
- Energimerking
- D - Gul
- Rom
- 3
- Tomteareal
- 7 413 m² (eiet)
Fasiliteter
Barnevennlig
Balkong/Terrasse
Garasje/P-plass
Kabel-TV
Offentlig vann/kloakk
Ingen gjenboere
Turterreng
Utsikt
Bredbåndstilknytning
Moderne
Rolig
Visning
onsdag, 25. mars
15:30 – 16:15
Våre visninger har påmelding. Dette gjør vi for å kunne yte bedre service for våre kunder. Verdifullt for boligkjøper og for oss. Vi anbefaler at salgsoppgaven lastes ned digitalt før visning, og ring oss gjerne på forhånd for spørsmål om boligen. Passer ikke angitt tidspunkt, ta kontakt så finner vi en løsning. Skulle det mot formodning ikke være påmeldte til angitt visningstidspunkt vil ikke visning bli gjennomført.
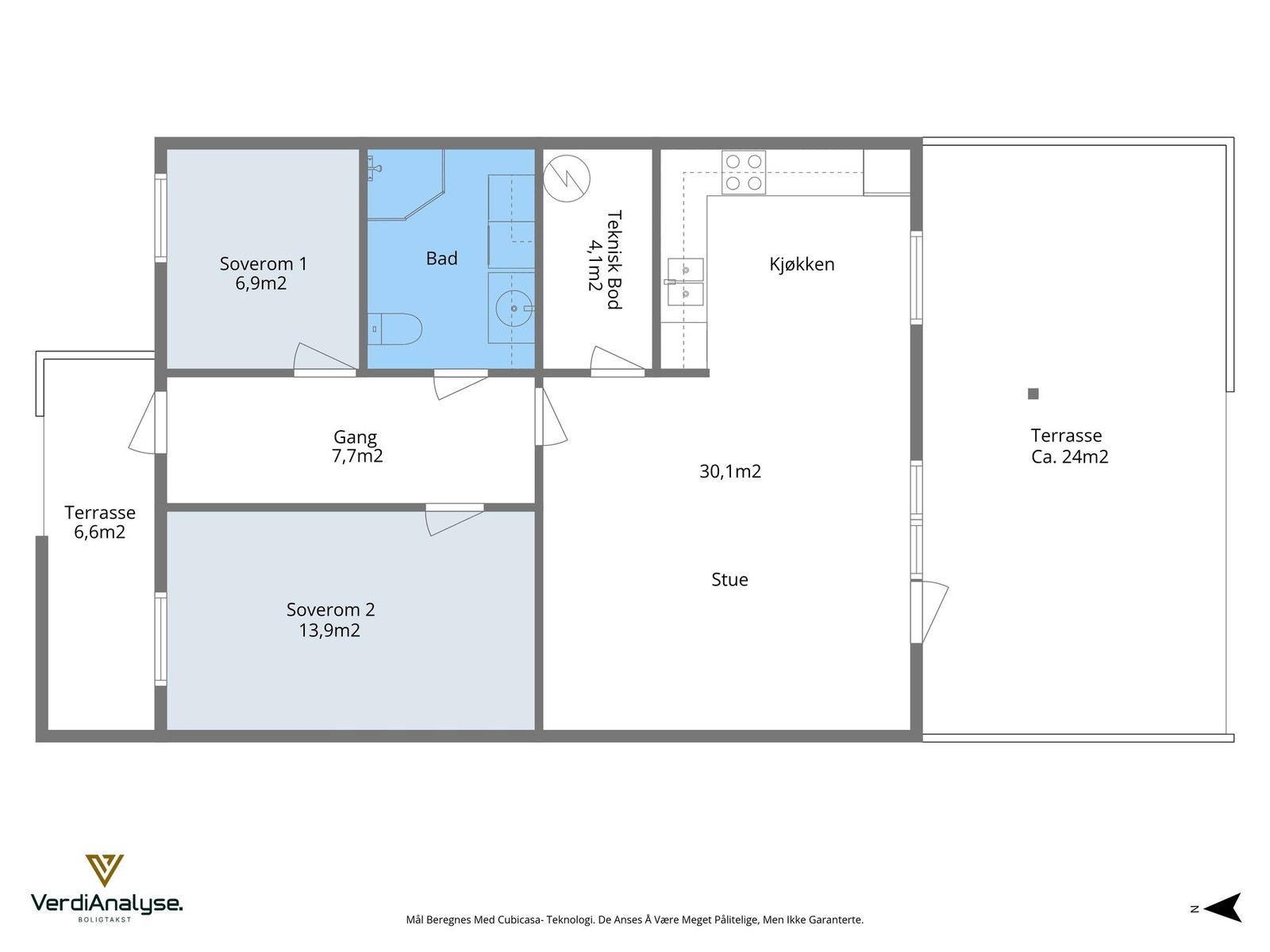
Om boligen
EiendomsMegler 1 v/Frank Robert Bae har gleden av å presentere en flott 3-roms leilighet beliggende i et etablert og attraktivt boligområde på Vikåsen!
Leiligheten ligger i 1. etasje og har en arealeffektiv planløsning med store vindusflater som gir rikelig med naturlig lys. I kombinasjon med lyse overflater og gjennomgående 1-stavs gulv bidrar dette til leilighetens lette og luftige atmosfære. Fra stuen er det utgang til stor terrasse hvor du nyter solen fra morgen til ca. 19:30, og videre de siste kveldstimene ved inngangspartiet.
Kvaliteter verdt å trekke frem:
- To gode soverom
- Gulvvarme på både stue, kjøkken og bad
- Tidsriktig kjøkken med mye skap- og benkeplass
- Nytt 1-stavs gulv på stue, kjøkken og soverom 2025
- Samtlige rom ble malt i 2021
- Hele huset og boden ble utvendig malt i 2025
- Både innvendig bod og utvendig sportsbod på tilsammen 10 kvm
- Beliggende i blindvei med lite trafikk
- Verandaen ble beiset i 2021
- Barnevennlig
Velkommen til en hyggelig visning!
Leiligheten ligger i 1. etasje og har en arealeffektiv planløsning med store vindusflater som gir rikelig med naturlig lys. I kombinasjon med lyse overflater og gjennomgående 1-stavs gulv bidrar dette til leilighetens lette og luftige atmosfære. Fra stuen er det utgang til stor terrasse hvor du nyter solen fra morgen til ca. 19:30, og videre de siste kveldstimene ved inngangspartiet.
Kvaliteter verdt å trekke frem:
- To gode soverom
- Gulvvarme på både stue, kjøkken og bad
- Tidsriktig kjøkken med mye skap- og benkeplass
- Nytt 1-stavs gulv på stue, kjøkken og soverom 2025
- Samtlige rom ble malt i 2021
- Hele huset og boden ble utvendig malt i 2025
- Både innvendig bod og utvendig sportsbod på tilsammen 10 kvm
- Beliggende i blindvei med lite trafikk
- Verandaen ble beiset i 2021
- Barnevennlig
Velkommen til en hyggelig visning!
NB: Knappen for å vise hele beskrivelsen har kun en visuell effekt.
NB: Knappen for å vise hele beskrivelsen har kun en visuell effekt.
Salgsoppgaven beskriver vesentlig og lovpålagt informasjon om eiendommen
Se komplett salgsoppgaveNyttige lenker
Nærområdet
EiendomsMegler 1 Grilstadporten
Vi loser deg trygt gjennom hele boligsalget
Annonseinformasjon
| FINN-kode | 455941935 |
|---|---|
| Sist endret | 17. mars 2026 12:09 |
| Referanse | 33260052 |
Annonsene kan være mangelfulle i forhold til lovpålagt opplysningsplikt. Før bindende avtale inngås oppfordres interessenter til å innhente komplett informasjon fra meglerforetaket, selger eller utleier.































