Bildegalleri

Proaktiv Eiendomsmegling v/Malin Skevik har gleden av å presentere Aunegrenda 3, en flott 2-roms leilighet på Brundalen.
BRUNDALEN
Tiltalende 2-roms toppleilighet. Innglasset balkong med gode sol- og utsiktsforhold. Oppgradert i perioden 2015/2020.
Prisantydning2 590 000 kr
Nøkkelinfo
- Boligtype
- Leilighet
- Eieform
- Andel
- Soverom
- 1
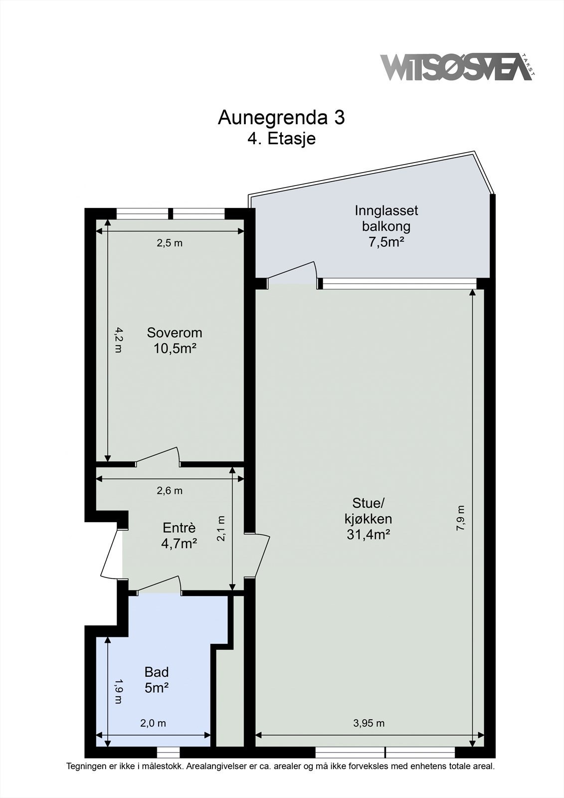
- Internt bruksareal
- 55 m² (BRA-i)
- Bruksareal
- 77 m²
- Eksternt bruksareal
- 14 m² (BRA-e)
- Innglasset balkong
- 8 m² (BRA-b)
- Etasje
- 4
- Byggeår
- 1971
- Energimerking
- Rom
- 2
- Tomteareal
- 59 718 m² (eiet)
Fasiliteter
Balkong/Terrasse
Barnevennlig
Garasje/P-plass
Kabel-TV
Offentlig vann/kloakk
Rolig
Sentralt
Utsikt
Vaktmester-/vektertjeneste
Turterreng
Lademulighet
Balansert ventilasjon
Visning
onsdag, 25. mars
17:00 – 18:00
For at vår megler og selger skal kunne gi deg den beste oppfølgingen og kjøpsopplevelsen er det obligatorisk påmelding til alle våre visninger. Dersom ditt reserverte tidspunkt likevel ikke kan benyttes trenger vi beskjed så tidlig som mulig sånn at vi kan finne en alternativ løsning. Vi har alltid tid til deg. Visninger uten påmeldte deltagere avlyses.
VisningspåmeldingOm boligen
Velkommen til Aunegrenda 3 - En delikat 2-roms leilighet med en sentral og tilbaketrukket beliggenhet. Leiligheten ble omfattende renovert i 2015/2020 og holder en gjennomgående moderne standard. Leiligheten nyter en flott beliggenhet i byggets 4. etasje og har en herlig innglasset balkong med svært gode sol- og utsiktsforhold.
Kort avstand til dagligvare, studiesteder, turområder og et hyppig kollektivtilbud.
Kvaliteter:
- Moderne kjøkken fra 2015 med mye skap- og benkeplass
- Balansert ventilasjon
- Delikat baderom renovert av fagfolk i 2020
- Romslig stue med plass til både sofagruppe og spisestuemøbler
- Parkering like ved blokken. Mulighet for lading av elbil
- Mye lagringsplass i 2 private boder
- Borettslaget har gjennomgått en større rehabilitering i perioden 2016-2021
Kort avstand til dagligvare, studiesteder, turområder og et hyppig kollektivtilbud.
Kvaliteter:
- Moderne kjøkken fra 2015 med mye skap- og benkeplass
- Balansert ventilasjon
- Delikat baderom renovert av fagfolk i 2020
- Romslig stue med plass til både sofagruppe og spisestuemøbler
- Parkering like ved blokken. Mulighet for lading av elbil
- Mye lagringsplass i 2 private boder
- Borettslaget har gjennomgått en større rehabilitering i perioden 2016-2021
NB: Knappen for å vise hele beskrivelsen har kun en visuell effekt.
NB: Knappen for å vise hele beskrivelsen har kun en visuell effekt.
Salgsoppgaven beskriver vesentlig og lovpålagt informasjon om eiendommen
Se komplett salgsoppgaveNyttige lenker
Nærområdet
Proaktiv Eiendomsmegling Trondheim Øst
Alltid tid til deg
Annonseinformasjon
| FINN-kode | 455933607 |
|---|---|
| Sist endret | 17. mars 2026 17:35 |
| Referanse | 1310260045 |
Annonsene kan være mangelfulle i forhold til lovpålagt opplysningsplikt. Før bindende avtale inngås oppfordres interessenter til å innhente komplett informasjon fra meglerforetaket, selger eller utleier.


































