Bildegalleri

EiendomsMegler 1 v/ Anbjørn Ulseth presenterer Bjørnehaugsveien 21. Foto: EFKT: Vilde Dahl.
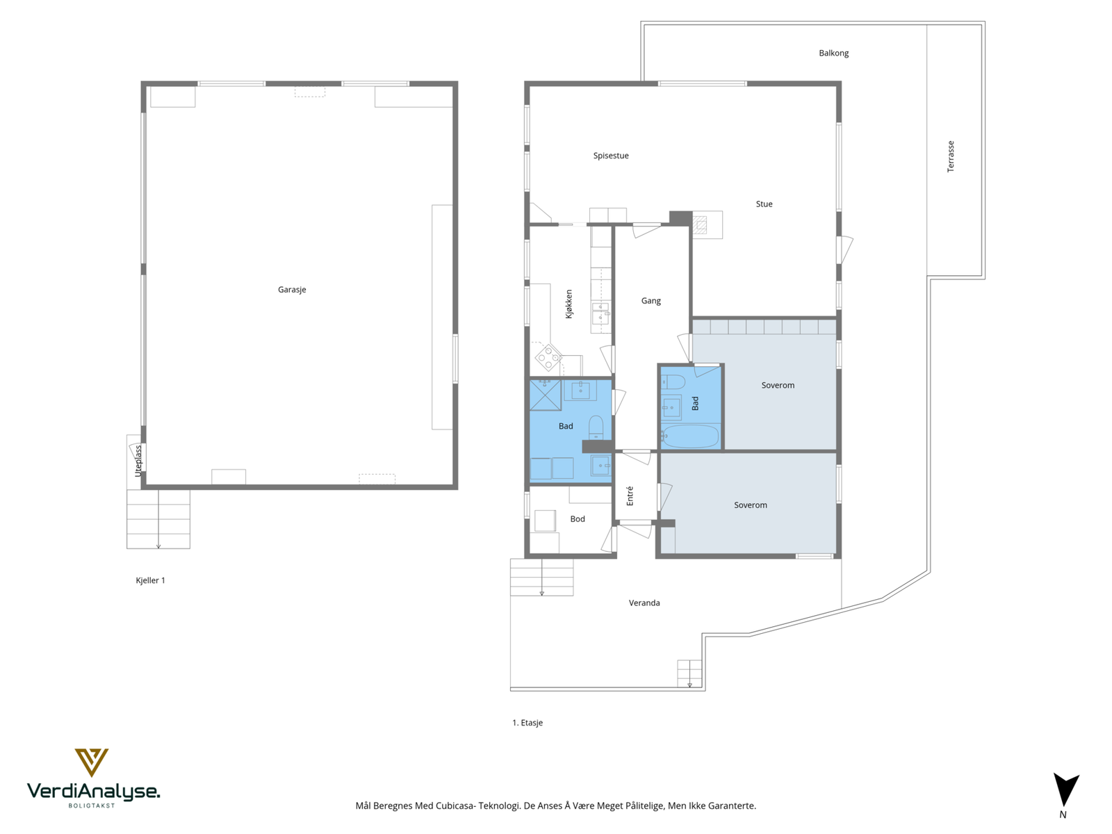
Enebolig med sjelden stor verkstedgarasje på ca 88 kvm i underetasjen!
Prisantydning2 790 000 kr
Nøkkelinfo
- Boligtype
- Enebolig
- Eieform
- Eier (Selveier)
- Soverom
- 1
- Internt bruksareal
- 114 m² (BRA-i)
- Bruksareal
- 202 m²
- Eksternt bruksareal
- 88 m² (BRA-e)
- Byggeår
- 1973
- Energimerking
- D - Gul
- Rom
- 3
- Tomteareal
- 1 292 m² (eiet)
Fasiliteter
Barnevennlig
Balkong/Terrasse
Garasje/P-plass
Offentlig vann/kloakk
Ingen gjenboere
Peis/Ildsted
Turterreng
Sentralt
Visning
torsdag, 26. mars
18:00 – 19:00
Våre visninger har påmelding. Dette gjør vi for å kunne yte bedre service for våre kunder. Verdifullt for boligkjøper og for oss. Vi anbefaler at salgsoppgaven lastes ned digitalt før visning, og ring oss gjerne på forhånd for spørsmål om boligen. Passer ikke angitt tidspunkt, ta kontakt så finner vi en løsning. Skulle det mot formodning ikke være påmeldte til angitt visningstidspunkt vil ikke visning bli gjennomført.
Om boligen
EiendomsMegler 1 v/ Anbjørn Ulseth presenterer Bjørnhaugsveien 21. Enebolig med stor garasje/ verksted i underetasjen. Boligen har sentral beliggenhet på Nordlandet med kort vei til skole, barnehage, butikk og buss/ sundbåt. Garasjen ble oppgradert og isolert i 2015. Bad ble renovert i 2017 samtidig som det ble foretatt en del oppgraderinger på røropplegg og elektrisk anlegg. Boligen inneholder entré, gang, soverom, soverom 2 (ikke omsøkt), 2 bad, bod, kjøkken og stue. Utgang til stor balkong fra stue.
Velkommen til visning!
Velkommen til visning!
NB: Knappen for å vise hele beskrivelsen har kun en visuell effekt.
NB: Knappen for å vise hele beskrivelsen har kun en visuell effekt.
Salgsoppgaven beskriver vesentlig og lovpålagt informasjon om eiendommen
Se komplett salgsoppgaveNyttige lenker
Nærområdet
EiendomsMegler 1 Kristiansund
Vi loser deg trygt gjennom hele boligsalget
Annonseinformasjon
| FINN-kode | 455932893 |
|---|---|
| Sist endret | 19. mars 2026 16:13 |
| Referanse | 17260083 |
Annonsene kan være mangelfulle i forhold til lovpålagt opplysningsplikt. Før bindende avtale inngås oppfordres interessenter til å innhente komplett informasjon fra meglerforetaket, selger eller utleier.

























