Bildegalleri

Velkommen til Maria Dehlis Vei 57! presentert av Andreas Næss Valbye i Eiendomsmegler 1 ! Foto : Bjørnar Døhlen
Haugen
Lys og luftig 2-roms i 6 etajse | innglasset balkong på 13 m² | Heis | V.vann Inkl | Utsikt | To boder | Nær Tog!
Prisantydning3 190 000 kr
Nøkkelinfo
- Boligtype
- Leilighet
- Eieform
- Andel
- Soverom
- 1
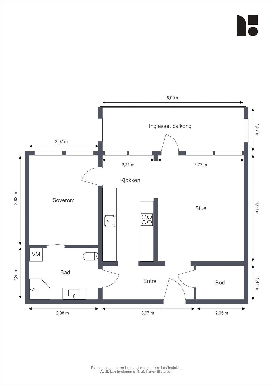
- Internt bruksareal
- 58 m² (BRA-i)
- Bruksareal
- 75 m²
- Eksternt bruksareal
- 4 m² (BRA-e)
- Innglasset balkong
- 13 m² (BRA-b)
- Etasje
- 6
- Byggeår
- 1976
- Energimerking
- Rom
- 2
- Tomteareal
- 28 359 m² (eiet)
Fasiliteter
Balkong/Terrasse
Barnevennlig
Bredbåndstilknytning
Heis
Kabel-TV
Offentlig vann/kloakk
Rolig
Sentralt
Utsikt
Turterreng
Visning
Ønsker du å delta på visningen ber vi deg melde deg på slik at vi vet at du kommer. Da kan vi bistå alle best mulig og gi deg tiden du trenger på visningen. Visningen avholdes bare dersom det er påmeldte. Ta gjerne kontakt med megler før visning hvis du har noen spørsmål. Velkommen!
VisningspåmeldingOm boligen
Velkommen til Maria Dehlis Vei 57!
Dette er en lys 2-roms andelsleilighet i 6. etasje med heisadkomst.
Leiligheten ligger sentralt på Haugenstua, med kort vei til butikker, kollektivtransport og grøntområder. Herfra er det kun tre minutters gange til Haugenstua stasjon, som tar deg til Oslo S på under 20 minutter. Boligen har en praktisk planløsning og en stor, innglasset balkong som forlenger sesongen.
Høydepunkter:
- Stor, sørøstvendt og innglasset balkong på 13 m²
- Heisadkomst direkte til etasjen
- Kjøkkeninnredning fra 2010 med integrerte hvitevarer
- Flislagt bad med opplegg for vaskemaskin
- Trimrom, selskapslokale og gjesteparkering i borettslaget
- Mulighet for garasjeplass med elbillader
- To boder gir god lagringsplass
Velkommen til visning!
Dette er en lys 2-roms andelsleilighet i 6. etasje med heisadkomst.
Leiligheten ligger sentralt på Haugenstua, med kort vei til butikker, kollektivtransport og grøntområder. Herfra er det kun tre minutters gange til Haugenstua stasjon, som tar deg til Oslo S på under 20 minutter. Boligen har en praktisk planløsning og en stor, innglasset balkong som forlenger sesongen.
Høydepunkter:
- Stor, sørøstvendt og innglasset balkong på 13 m²
- Heisadkomst direkte til etasjen
- Kjøkkeninnredning fra 2010 med integrerte hvitevarer
- Flislagt bad med opplegg for vaskemaskin
- Trimrom, selskapslokale og gjesteparkering i borettslaget
- Mulighet for garasjeplass med elbillader
- To boder gir god lagringsplass
Velkommen til visning!
NB: Knappen for å vise hele beskrivelsen har kun en visuell effekt.
NB: Knappen for å vise hele beskrivelsen har kun en visuell effekt.
Salgsoppgaven beskriver vesentlig og lovpålagt informasjon om eiendommen
Se komplett salgsoppgaveNyttige lenker
Nærområdet
EiendomsMegler 1 Stovner
Vi loser deg trygt gjennom hele boligsalget
Annonseinformasjon
| FINN-kode | 455802209 |
|---|---|
| Sist endret | 27. apr. 2026 14:38 |
| Referanse | 6041260295 |
Annonsene kan være mangelfulle i forhold til lovpålagt opplysningsplikt. Før bindende avtale inngås oppfordres interessenter til å innhente komplett informasjon fra meglerforetaket, selger eller utleier.






























