Bildegalleri

En lys og lettmøblert stue med gjennomgående parkett og god plass til både sofagruppe og spisebord.
Tolvsrød
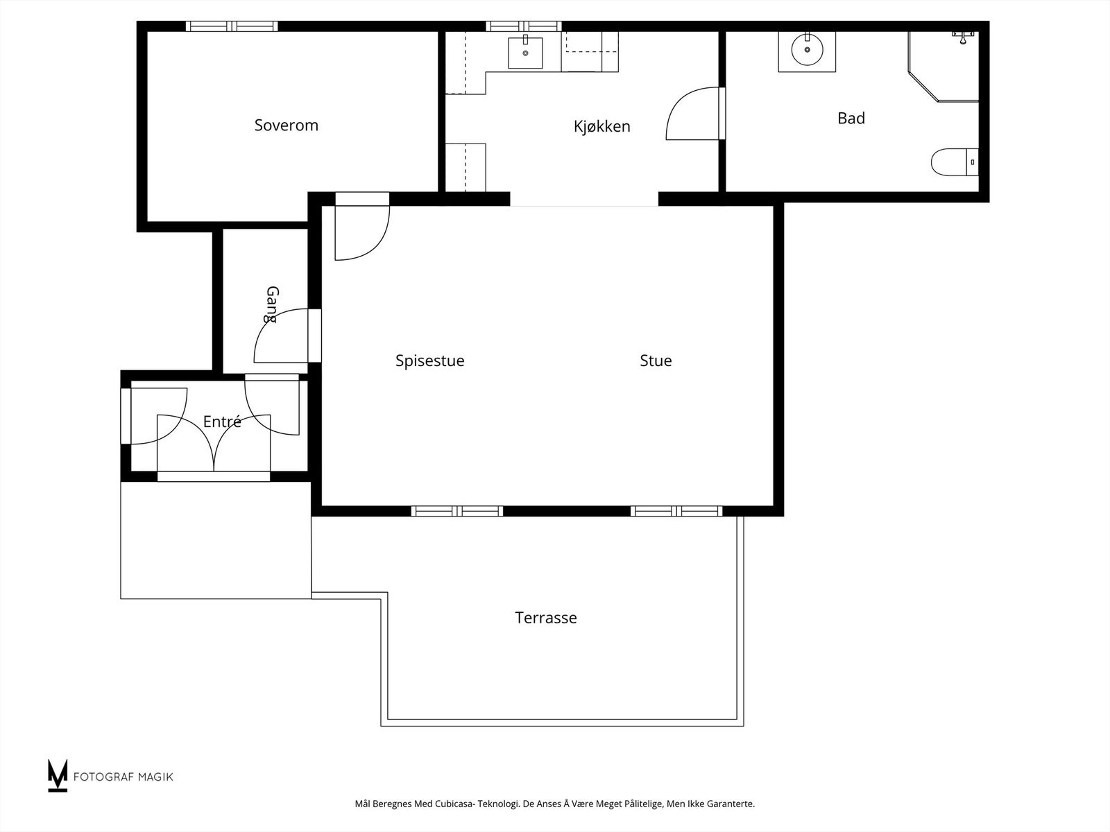
Lys og lettstelt leilighet på ett plan. Rolig og attraktivt sameie. Sydøstvendt terrasse på 16 m².
Prisantydning3 150 000 kr
Nøkkelinfo
- Boligtype
- Leilighet
- Eieform
- Eier (Selveier)
- Soverom
- 1
- Internt bruksareal
- 65 m² (BRA-i)
- Bruksareal
- 70 m²
- Eksternt bruksareal
- 5 m² (BRA-e)
- Balkong/Terrasse
- 16 m² (TBA)
- Byggeår
- 2001
- Energimerking
- Rom
- 2
- Tomteareal
- 18 375 m² (eiet)
Fasiliteter
Balkong/Terrasse
Barnevennlig
Kjæledyr tillatt
Kabel-TV
Offentlig vann/kloakk
Parkett
Rolig
Sentralt
Turterreng
Visning
tirsdag, 24. mars
15:00 – 16:00
For å delta på visning, ber vi om at du melder deg på. Da sikrer vi at du får nødvendig informasjon og at det er satt av tilstrekkelig med tid. Kontakt megler dersom annet tidspunkt ønskes. Husk å lese salgsoppgaven før visningen, så du stiller forberedt.
Ønsker du kun å bli holdt orientert, kan du fra eiendommens hjemmeside få varsel om solgtpris, eller kontakte megler.
VisningspåmeldingOm boligen
Dette er en lettstelt og arealeffektiv selveierleilighet på ett plan, beliggende i et rolig og tilbaketrukket nabolag på Tolvsrød.
Leiligheten har en sentral beliggenhet med kort vei til butikker, Handelsparken og buss. Området har også skoler, barnehager og treningssentre. Du bor i et veletablert sameie med lave fellesutgifter hvor internett og TV er inkludert. Vegger og tak i stue, kjøkken, gang og soverom er nylig malt, som gir et lyst og helhetlig inntrykk.
Høydepunkter:
Leiligheten har en sentral beliggenhet med kort vei til butikker, Handelsparken og buss. Området har også skoler, barnehager og treningssentre. Du bor i et veletablert sameie med lave fellesutgifter hvor internett og TV er inkludert. Vegger og tak i stue, kjøkken, gang og soverom er nylig malt, som gir et lyst og helhetlig inntrykk.
Høydepunkter:
- Sydøstvendt terrasse på 16 m²
- Luft-til-luft varmepumpe fra 2020
- Praktisk planløsning med alt på én flate
- Ingen fellesgjeld i sameiet
- Ekstern bod på 5 m² for ekstra lagring
- Flislagt bad med varmekabler
Velkommen til visning!
NB: Knappen for å vise hele beskrivelsen har kun en visuell effekt.
NB: Knappen for å vise hele beskrivelsen har kun en visuell effekt.
Salgsoppgaven beskriver vesentlig og lovpålagt informasjon om eiendommen
Se komplett salgsoppgaveNyttige lenker
Nærområdet
Krogsveen Tønsberg
Verdien av en god megler.
Annonseinformasjon
| FINN-kode | 455794931 |
|---|---|
| Sist endret | 18. mars 2026 07:41 |
| Referanse | KR21.2634 |
Annonsene kan være mangelfulle i forhold til lovpålagt opplysningsplikt. Før bindende avtale inngås oppfordres interessenter til å innhente komplett informasjon fra meglerforetaket, selger eller utleier.























































