Bildegalleri

Familievennlig eiendom med rolig og attraktiv beliggenhet og dobbel garasje samt enkel garasje. Stian Lie v/ Aktiv Eiendom har gleden av å presentere boligen. Foto: Frøde Røyang.
Familieidyll i Hurdal sentrum - romslig bolig med rikelig garasjeplass.
Prisantydning3 990 000 kr
Nøkkelinfo
- Boligtype
- Enebolig
- Eieform
- Eier (Selveier)
- Soverom
- 3
- Internt bruksareal
- 186 m² (BRA-i)
- Bruksareal
- 263 m²
- Eksternt bruksareal
- 77 m² (BRA-e)
- Balkong/Terrasse
- 23 m² (TBA)
- Etasje
- 1
- Byggeår
- 1975
- Energimerking
- Rom
- 4
- Tomteareal
- 935 m² (eiet)
Fasiliteter
Balkong/Terrasse
Barnevennlig
Garasje/P-plass
Hage
Peis/Ildsted
Rolig
Sentralt
Om boligen
Velkommen til en sjarmerende og velholdt enebolig, perfekt for familier som ønsker nærhet til naturen. Boligen ligger i et rolig og trygt nabolag. Kort avstand til skole, barnehage og dagligvarebutikker. Enkel tilgang til offentlig transport og flotte turmuligheter.
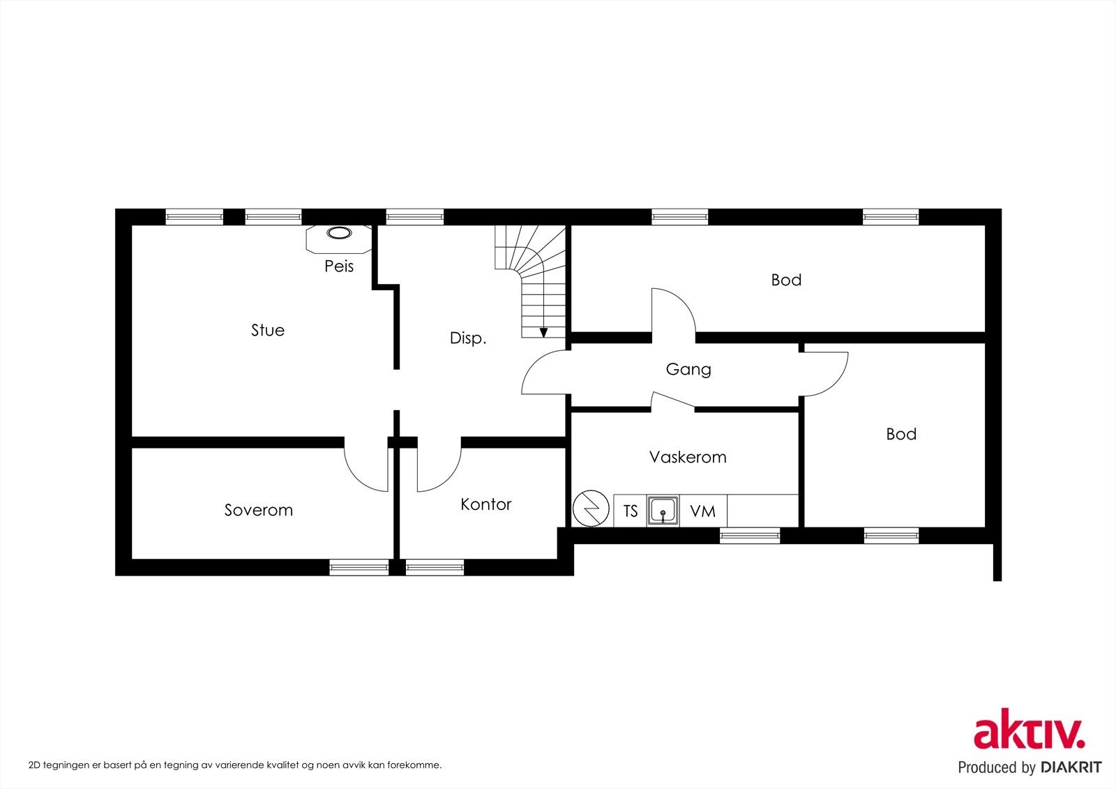
Bolig oppført i 1975 med bruksareal på 186 m² fordelt på første etasje og underetasje. Første etasje inneholder entré, stue, kjøkken, tre soverom og bad, samt flere disponible rom i underetasjen. Kjøkken med Miele hvitevarer fra 2012, bad fra 2014. Nyere el-anlegg, rør-i-rør og fiberbredbånd. Nyere vinduer med utvendig solskjerming. Eiendommen har terrasse med utgang fra stua, dobbelgarasje med elbillader, garasje og uthus med gode lagringsmuligheter.
Bolig oppført i 1975 med bruksareal på 186 m² fordelt på første etasje og underetasje. Første etasje inneholder entré, stue, kjøkken, tre soverom og bad, samt flere disponible rom i underetasjen. Kjøkken med Miele hvitevarer fra 2012, bad fra 2014. Nyere el-anlegg, rør-i-rør og fiberbredbånd. Nyere vinduer med utvendig solskjerming. Eiendommen har terrasse med utgang fra stua, dobbelgarasje med elbillader, garasje og uthus med gode lagringsmuligheter.
NB: Knappen for å vise hele beskrivelsen har kun en visuell effekt.
NB: Knappen for å vise hele beskrivelsen har kun en visuell effekt.
Salgsoppgaven beskriver vesentlig og lovpålagt informasjon om eiendommen
Se komplett salgsoppgaveNyttige lenker
Nærområdet
Aktiv Råholt
Annonseinformasjon
| FINN-kode | 455779099 |
|---|---|
| Sist endret | 16. mars 2026 12:53 |
| Referanse | 1206260014 |
Annonsene kan være mangelfulle i forhold til lovpålagt opplysningsplikt. Før bindende avtale inngås oppfordres interessenter til å innhente komplett informasjon fra meglerforetaket, selger eller utleier.





































