Bildegalleri

EiendomsMegler v/ Mads Larsen har gleden av å ønske velkommen til Ladeveien 34 - En meget lekker og innbydende 2-roms selveier på attraktive Lilleby!
Lilleby
LEKKER OG VELHOLDT 2-ROMS SELVEIER FRA 2021 - VANNBÅREN VARME - BALANSERT VENT. - EKSTERN BOD - SENTRALT - TG0/1 PÅ ALT!
Prisantydning3 100 000 kr
Nøkkelinfo
- Boligtype
- Leilighet
- Eieform
- Eier (Selveier)
- Soverom
- 1
- Internt bruksareal
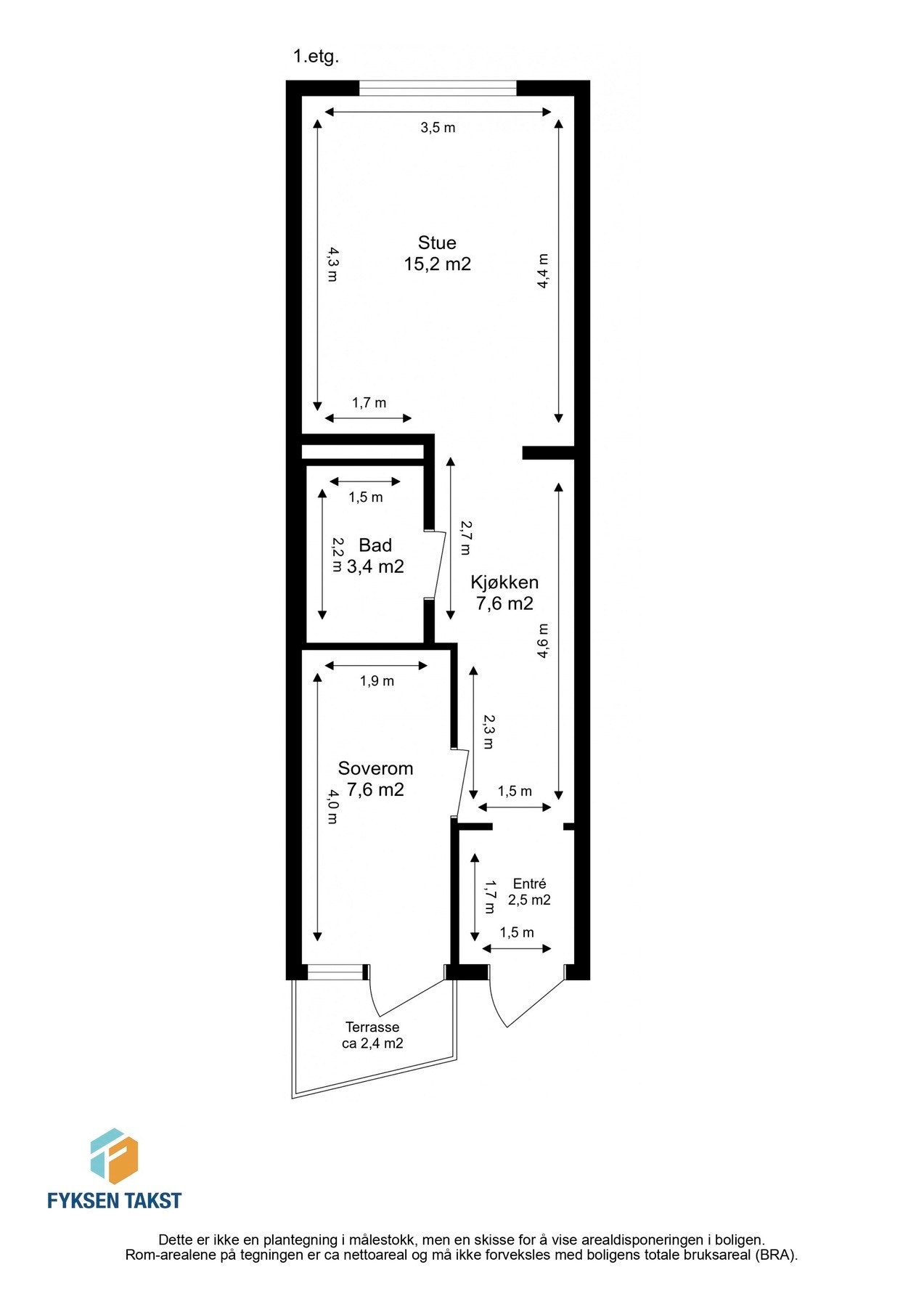
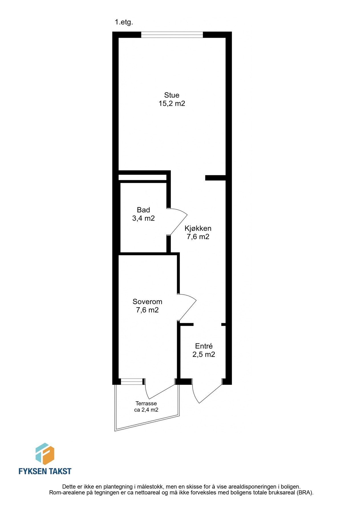
- 39 m² (BRA-i)
- Bruksareal
- 44 m²
- Eksternt bruksareal
- 5 m² (BRA-e)
- Balkong/Terrasse
- 2 m² (TBA)
- Etasje
- 1
- Byggeår
- 2021
- Energimerking
- B - Mørkegrønn
- Rom
- 2
- Tomteareal
- 2 828 m² (eiet)
Fasiliteter
Balkong/Terrasse
Kabel-TV
Heis
Offentlig vann/kloakk
Parkett
Turterreng
Sentralt
Bredbåndstilknytning
Moderne
Balansert ventilasjon
Visning
torsdag, 26. mars
15:30 – 16:30
Våre visninger har påmelding. Dette gjør vi for å kunne yte bedre service for våre kunder. Verdifullt for boligkjøper og for oss. Vi anbefaler at salgsoppgaven lastes ned digitalt før visning, og ring oss gjerne på forhånd for spørsmål om boligen. Passer ikke angitt tidspunkt, ta kontakt så finner vi en løsning. Skulle det mot formodning ikke være påmeldte til angitt visningstidspunkt vil ikke visning bli gjennomført.
Om boligen
EiendomsMegler 1 v/ Mads Larsen har gleden av å ønske velkommen til Ladeveien 34! En lekker og moderne selveierleilighet fra 2021 med terrasse og ekstern bod i kjeller.
Leiligheten ble oppført i 2021 og holder med det en ny og moderne standard. Moderne fasiliteter som fjernvarme og balansert ventilasjon.
Lilleby er for øvrig et meget attraktivt område med sin umiddelbare nærhet til "alt" du trenger i hverdagen og flotte grøntarealer mellom blokkene. Leiligheten er energimerket Grønn - B, noe som gjør at den kvalifiserer for grønne boliglån.
Verdt å merke seg:
Leiligheten ble oppført i 2021 og holder med det en ny og moderne standard. Moderne fasiliteter som fjernvarme og balansert ventilasjon.
Lilleby er for øvrig et meget attraktivt område med sin umiddelbare nærhet til "alt" du trenger i hverdagen og flotte grøntarealer mellom blokkene. Leiligheten er energimerket Grønn - B, noe som gjør at den kvalifiserer for grønne boliglån.
Verdt å merke seg:
- God planløsning.
- Lave felleskostnader.
- Energimerket "Grønn - B".
- TG 0/1 på samtlige punkter.
- Heis i bygget og balansert ventilasjon.
- Meget kort avstand til bussholdeplass, treningssenter og mer.
NB: Knappen for å vise hele beskrivelsen har kun en visuell effekt.
NB: Knappen for å vise hele beskrivelsen har kun en visuell effekt.
Salgsoppgaven beskriver vesentlig og lovpålagt informasjon om eiendommen
Se komplett salgsoppgaveNyttige lenker
Nærområdet
EiendomsMegler 1 Lade og Lilleby
Vi loser deg trygt gjennom hele boligsalget
Annonseinformasjon
| FINN-kode | 455778527 |
|---|---|
| Sist endret | 20. mars 2026 13:20 |
| Referanse | 36260052 |
Annonsene kan være mangelfulle i forhold til lovpålagt opplysningsplikt. Før bindende avtale inngås oppfordres interessenter til å innhente komplett informasjon fra meglerforetaket, selger eller utleier.
























