Bildegalleri

Velkommen til Revyveien 23! Bildet er digitalt stylet.
Attraktivt townhouse o/tre plan med tre soverom | Garasjeplass m/elbil lader | Ákonto fjernvarme inkl.| Flott uteområde!
Prisantydning7 100 000 kr
Nøkkelinfo
- Boligtype
- Leilighet
- Eieform
- Eier (Selveier)
- Soverom
- 3
- Internt bruksareal
- 117 m² (BRA-i)
- Bruksareal
- 117 m²
- Balkong/Terrasse
- 24 m² (TBA)
- Etasje
- 3
- Byggeår
- 2018
- Energimerking
- Rom
- 5
- Tomteareal
- 41 m² (eiet)
Fasiliteter
Balkong/Terrasse
Barnevennlig
Bredbåndstilknytning
Garasje/P-plass
Kjæledyr tillatt
Kabel-TV
Offentlig vann/kloakk
Sentralt
Lademulighet
Balansert ventilasjon
Om boligen
Velkommen til Revyveien 23 - et stilrent og innbydende townhouse du kan flytte rett inn i!
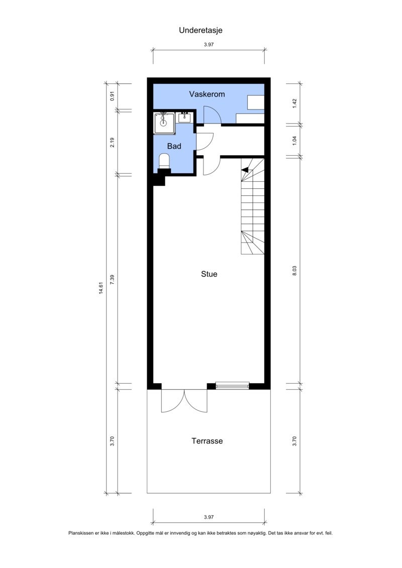
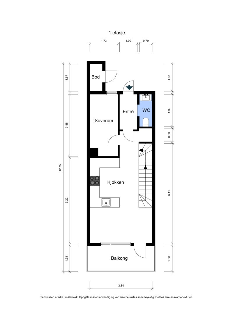
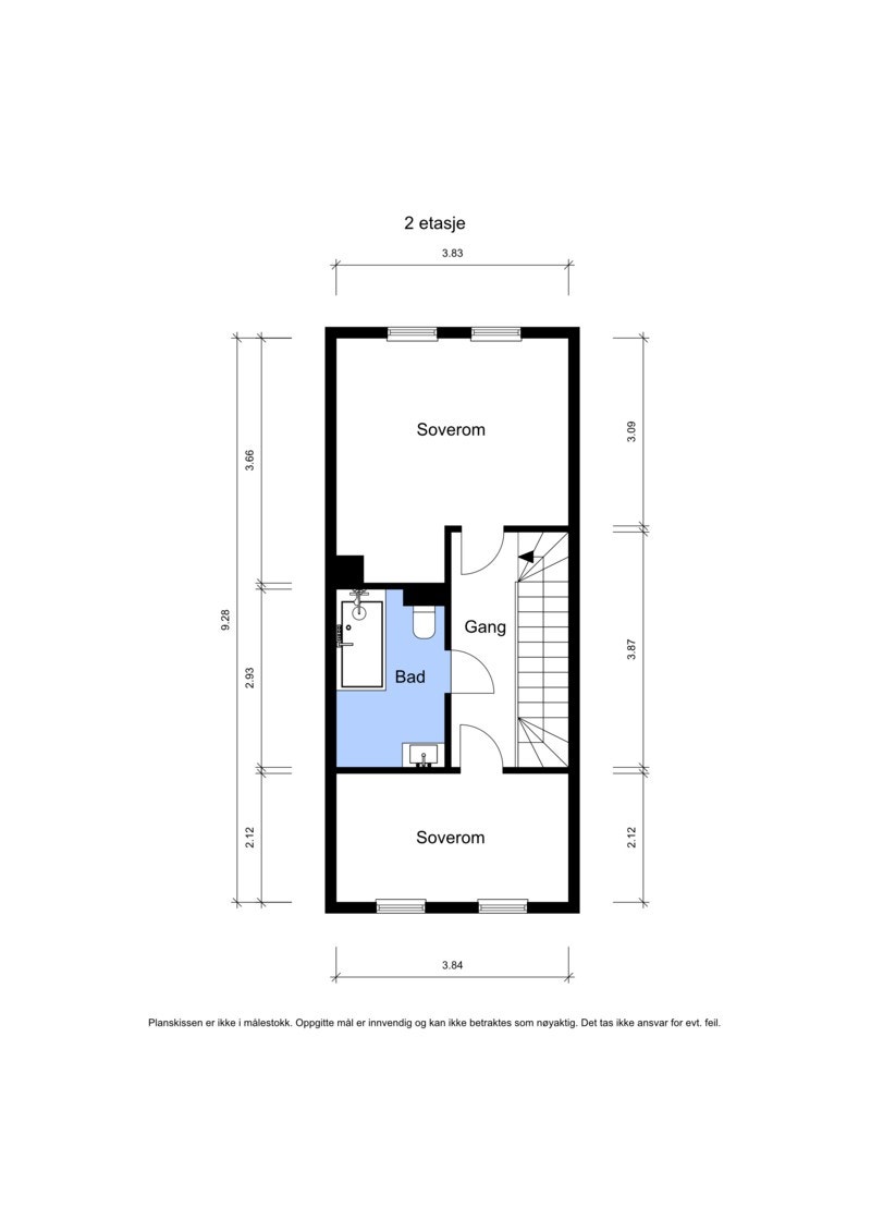
Dette er et attraktivt rekkehus over tre plan, beliggende i et barnevennlig og nyere boligområde på Lørenskog. Boligen kan blant annet tilby tre gode soverom, to baderom, stue og kjøkken. I tillegg er det flotte uteområder med både balkong, terrasse og hage, samt garasjeplass i felles anlegg.
Området oppleves som et herlig tun som er pent opparbeidet med lekeplass utenfor og friareal i nærområdet. Beliggenheten gir nærhet til toget innenfor Oslosonen, barnehage, skole, skihallen Snø, dagligvarebutikk og mye mer.
Kort fortalt |
- Townhouse over tre plan
- Ákonto fjernvarme inkl.
- Tre gode soverom
- Flytt rett inn!
- Garasjeplass i felles anlegg med elbil lader
Dette er et attraktivt rekkehus over tre plan, beliggende i et barnevennlig og nyere boligområde på Lørenskog. Boligen kan blant annet tilby tre gode soverom, to baderom, stue og kjøkken. I tillegg er det flotte uteområder med både balkong, terrasse og hage, samt garasjeplass i felles anlegg.
Området oppleves som et herlig tun som er pent opparbeidet med lekeplass utenfor og friareal i nærområdet. Beliggenheten gir nærhet til toget innenfor Oslosonen, barnehage, skole, skihallen Snø, dagligvarebutikk og mye mer.
Kort fortalt |
- Townhouse over tre plan
- Ákonto fjernvarme inkl.
- Tre gode soverom
- Flytt rett inn!
- Garasjeplass i felles anlegg med elbil lader
NB: Knappen for å vise hele beskrivelsen har kun en visuell effekt.
NB: Knappen for å vise hele beskrivelsen har kun en visuell effekt.
Salgsoppgaven beskriver vesentlig og lovpålagt informasjon om eiendommen
Se komplett salgsoppgaveNyttige lenker
Nærområdet
EiendomsMegler 1 Lørenskog
Vi loser deg trygt gjennom hele boligsalget
Annonseinformasjon
| FINN-kode | 455771106 |
|---|---|
| Sist endret | 17. mars 2026 14:21 |
| Referanse | 6029260246 |
Annonsene kan være mangelfulle i forhold til lovpålagt opplysningsplikt. Før bindende avtale inngås oppfordres interessenter til å innhente komplett informasjon fra meglerforetaket, selger eller utleier.










































