Bildegalleri

Angelica Reiten v/EIE eiendomsmegling Solli & Frogner har gleden av å ønske deg velkommen til Grønnegata 10!
Majorstuen / Homansbyen
Lys, moderne og arealeffektiv 1-r med solrik balkong - VV og fyring inkl. - Sentral og attraktiv beliggenhet!
Prisantydning4 350 000 kr
Nøkkelinfo
- Boligtype
- Leilighet
- Eieform
- Eier (Selveier)
- Soverom
- 0
- Internt bruksareal
- 32 m² (BRA-i)
- Bruksareal
- 34 m²
- Eksternt bruksareal
- 2 m² (BRA-e)
- Balkong/Terrasse
- 2 m² (TBA)
- Etasje
- 2
- Byggeår
- 1966
- Energimerking
- C - Lysegrønn
- Rom
- 1
- Tomt
- Eiet
Fasiliteter
Barnevennlig
Balkong/Terrasse
Kabel-TV
Heis
Offentlig vann/kloakk
Ingen gjenboere
Sentralt
Bredbåndstilknytning
Moderne
Rolig
Om boligen
Angelica Reiten v/EIE eiendomsmegling Solli & Frogner har gleden av å ønske deg velkommen til Grønnegata 10!
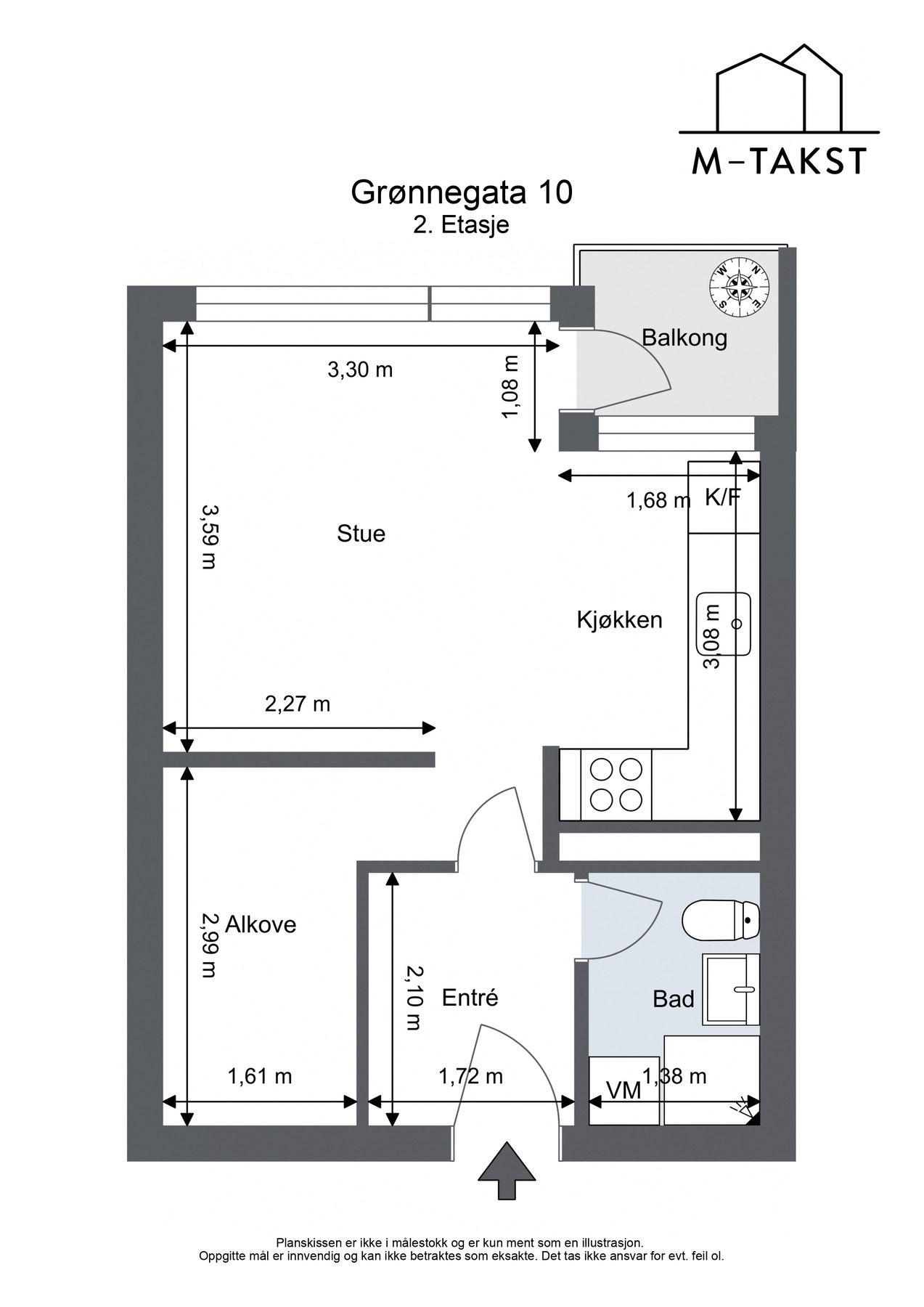
Dette er en lys og pen 1-roms selveierleilighet med en attraktiv og tilbaketrukket beliggenhet i Homansbyen. Leiligheten ligger i byggets 2. etasje med heisadkomst. Planløsningen er arealeffektiv med en sosial åpen stue- og kjøkkenløsning med utgang til balkong, sovealkove, inngangsparti og bad.
Kvaliteter:
- Balkong med kveldssol
- Vinduer fra 2020
- Praktisk planløsning
- Kjellerbod
- Fellesvaskeri og sportsbod med plass til sykler
- Varmtvann, fyring og internett inkludert i felleskostnadene
- Perfekt førstegangskjøp!
Dette er en lys og pen 1-roms selveierleilighet med en attraktiv og tilbaketrukket beliggenhet i Homansbyen. Leiligheten ligger i byggets 2. etasje med heisadkomst. Planløsningen er arealeffektiv med en sosial åpen stue- og kjøkkenløsning med utgang til balkong, sovealkove, inngangsparti og bad.
Kvaliteter:
- Balkong med kveldssol
- Vinduer fra 2020
- Praktisk planløsning
- Kjellerbod
- Fellesvaskeri og sportsbod med plass til sykler
- Varmtvann, fyring og internett inkludert i felleskostnadene
- Perfekt førstegangskjøp!
NB: Knappen for å vise hele beskrivelsen har kun en visuell effekt.
NB: Knappen for å vise hele beskrivelsen har kun en visuell effekt.
Salgsoppgaven beskriver vesentlig og lovpålagt informasjon om eiendommen
Se komplett salgsoppgaveNyttige lenker
Nærområdet
EIE eiendomsmegling Solli & Frogner
Annonseinformasjon
| FINN-kode | 455766264 |
|---|---|
| Sist endret | 17. mars 2026 19:01 |
| Referanse | 14260056 |
Annonsene kan være mangelfulle i forhold til lovpålagt opplysningsplikt. Før bindende avtale inngås oppfordres interessenter til å innhente komplett informasjon fra meglerforetaket, selger eller utleier.




















