Bildegalleri

Velkommen til Såvegen 5! En lys og velholdt 4-roms selveierleilighet, med flott hjørnebeliggenhet i 3. etasje.
Jessheim sentrum
Lys og pen 4-roms selveierleilighet i 3. etasje med hjørnebeliggenhet, balkong og garasjeplass - sentral beliggenhet!
Prisantydning4 390 000 kr
Nøkkelinfo
- Boligtype
- Leilighet
- Eieform
- Eier (Selveier)
- Soverom
- 3
- Internt bruksareal
- 79 m² (BRA-i)
- Bruksareal
- 84 m²
- Eksternt bruksareal
- 5 m² (BRA-e)
- Balkong/Terrasse
- 10 m² (TBA)
- Etasje
- 3
- Byggeår
- 2007
- Energimerking
- Rom
- 4
- Tomteareal
- 12 388 m² (eiet)
Fasiliteter
Balkong/Terrasse
Barnevennlig
Garasje/P-plass
Heis
Offentlig vann/kloakk
Peis/Ildsted
Sentralt
Vaktmester-/vektertjeneste
Om boligen
Velkommen til Såvegen 5!
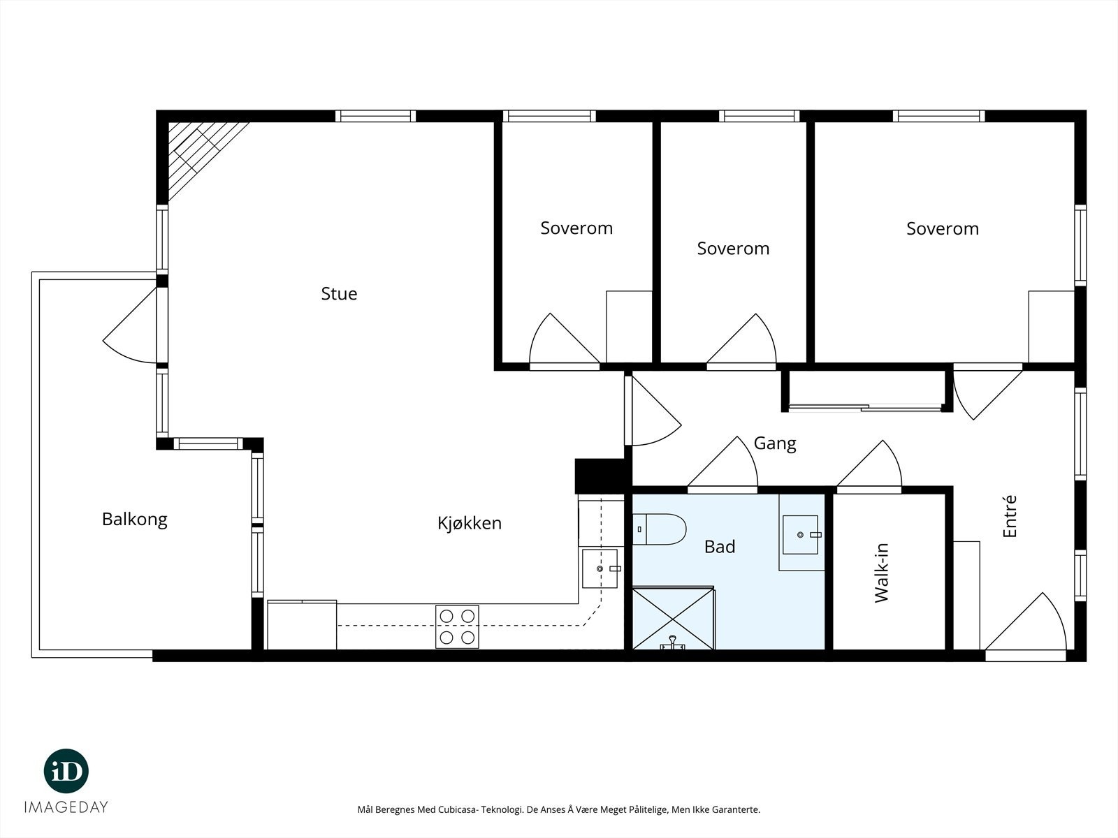
Leiligheten har en attraktiv hjørnebeliggenhet i 3. etasje og inneholder gang med garderobeskap og skyvedørsgarderobe, flott kjøkken med integrerte hvitevarer, lys stue med gasspeis, tre gode soverom, flislagt bad med gulvvarme og innvendig bod. Det er utgang fra stuen til delvis overbygget balkong på ca 10 kvm med markise.
Det medfølger garasjeplass og sportsbod i kjelleranlegg, og det er heis.
Leiligheten har en attraktiv og sentral beliggenhet på Jessheim. Det er gangavstand til skoler i alle trinn, dagligvarebutikker, storsenter med ca 140 butikker og serveringssteder, m.m. Du finner også kulturhus med kino og gode idretts- og fritidstilbud her. Fra Jessheim stasjon er det god kollektivforbindelse med tog til Oslo og buss til Oslo lufthavn Gardermoen
Leiligheten har en attraktiv hjørnebeliggenhet i 3. etasje og inneholder gang med garderobeskap og skyvedørsgarderobe, flott kjøkken med integrerte hvitevarer, lys stue med gasspeis, tre gode soverom, flislagt bad med gulvvarme og innvendig bod. Det er utgang fra stuen til delvis overbygget balkong på ca 10 kvm med markise.
Det medfølger garasjeplass og sportsbod i kjelleranlegg, og det er heis.
Leiligheten har en attraktiv og sentral beliggenhet på Jessheim. Det er gangavstand til skoler i alle trinn, dagligvarebutikker, storsenter med ca 140 butikker og serveringssteder, m.m. Du finner også kulturhus med kino og gode idretts- og fritidstilbud her. Fra Jessheim stasjon er det god kollektivforbindelse med tog til Oslo og buss til Oslo lufthavn Gardermoen
NB: Knappen for å vise hele beskrivelsen har kun en visuell effekt.
NB: Knappen for å vise hele beskrivelsen har kun en visuell effekt.
Salgsoppgaven beskriver vesentlig og lovpålagt informasjon om eiendommen
Se komplett salgsoppgaveNærområdet
Aktiv Jessheim
Annonseinformasjon
| FINN-kode | 455765117 |
|---|---|
| Sist endret | 16. mars 2026 18:18 |
| Referanse | 1208260052 |
Annonsene kan være mangelfulle i forhold til lovpålagt opplysningsplikt. Før bindende avtale inngås oppfordres interessenter til å innhente komplett informasjon fra meglerforetaket, selger eller utleier.




































