Bildegalleri

Her får du en moderne og innholdsrik enebolig fra 2013. Flere solrike uteområder, og koselig hage.
Berg
FLOTT, INNHOLDSRIK ENEBOLIG. Flere solrike terrasser og koselig hage. Ekstra stue på 20 kvm. 2 bad. 3 soverom. Parkering
Prisantydning7 690 000 kr
Nøkkelinfo
- Boligtype
- Enebolig
- Eieform
- Eier (Selveier)
- Soverom
- 3
- Internt bruksareal
- 129 m² (BRA-i)
- Bruksareal
- 132 m²
- Eksternt bruksareal
- 3 m² (BRA-e)
- Balkong/Terrasse
- 68 m² (TBA)
- Byggeår
- 2013
- Energimerking
- C - Lysegrønn
- Rom
- 4
- Tomteareal
- 339 m² (eiet)
Fasiliteter
Barnevennlig
Balkong/Terrasse
Garasje/P-plass
Kabel-TV
Offentlig vann/kloakk
Parkett
Peis/Ildsted
Turterreng
Utsikt
Sentralt
Bredbåndstilknytning
Moderne
Bademulighet
Lademulighet
Balansert ventilasjon
Visning
mandag, 30. mars
16:00 – 17:00
Våre visninger har påmelding. Dette gjør vi for å kunne yte bedre service for våre kunder. Verdifullt for boligkjøper og for oss. Vi anbefaler at salgsoppgaven lastes ned digitalt før visning, og ring oss gjerne på forhånd for spørsmål om boligen. Passer ikke angitt tidspunkt, ta kontakt så finner vi en løsning. Skulle det mot formodning ikke være påmeldte til angitt visningstidspunkt vil ikke visning bli gjennomført.
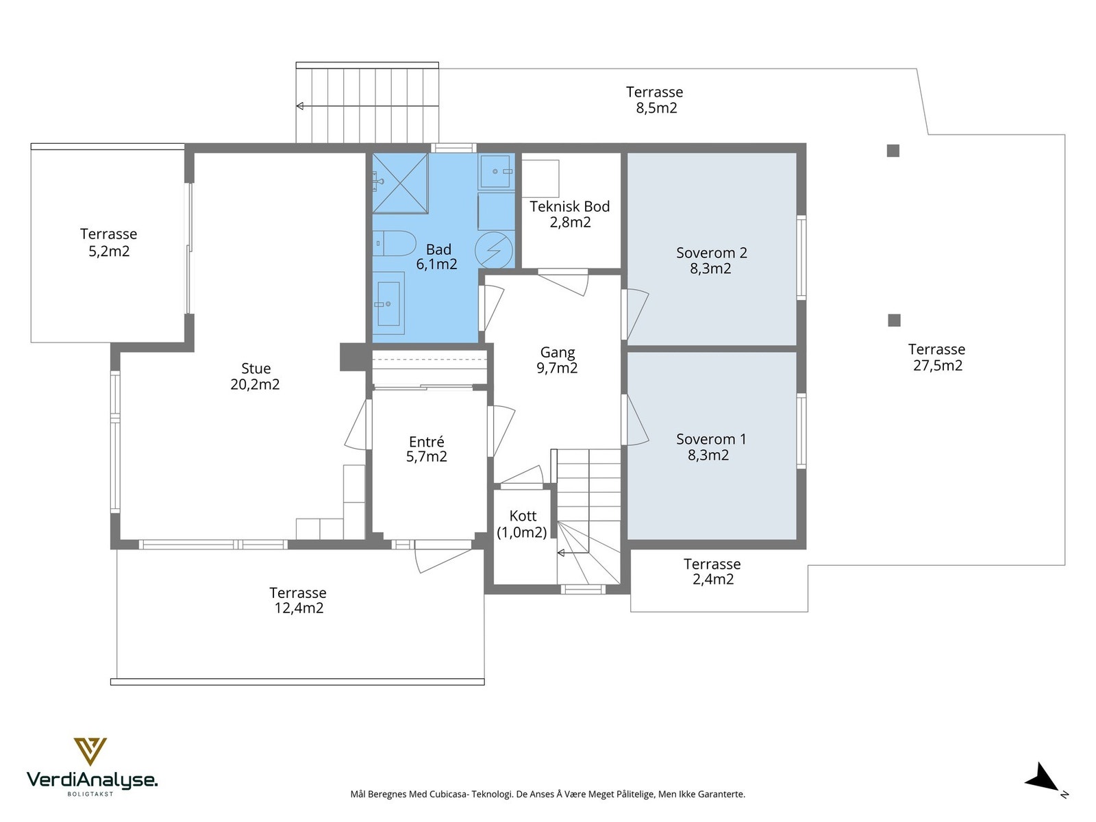
Om boligen
FLOTT, INNHOLDSRIK ENEBOLIG PÅ BERG.
- Flere store og solrike terrasser og en koselig hage. Utsikt
- Fantastisk stue- og kjøkkenløsning på 39 kvm
- God takhøyde, og store vindusflater gir masse lys og luft
- Svært innbydende med parkettgulv, delikate fargevalg og downlights i himling
- Moderne ildsted og balansert ventilasjon gir god varme og atmosfære
- Stort og fint kjøkken på 14,6 kvm med stor spisestue. Naturlig samlingspunkt i boligen
- Hvit, stilren innredning. Integrerte hvitevarer
- Ekstra stue på 20,2 kvm. Perfekt for barnefamilie. Kombinert med hjemmekontor
- Boligen har 2 fine, flislagte bad. Ett i kombinasjon med vaskerom
- 3 store soverom på 12,1 kvm, 8,3 kvm og 8,3 kvm
- Hovedsoverom har eget walk-in-closet og balkong
- Oppstillingsplass for flere biler. El-bil lader
- Umiddelbar nærhet til bussforbindelser. Atb's ruter og buss direkte til Værnes
NB: Knappen for å vise hele beskrivelsen har kun en visuell effekt.
NB: Knappen for å vise hele beskrivelsen har kun en visuell effekt.
Salgsoppgaven beskriver vesentlig og lovpålagt informasjon om eiendommen
Se komplett salgsoppgaveNyttige lenker
Nærområdet
EiendomsMegler 1 Valentinlyst
Vi loser deg trygt gjennom hele boligsalget
Annonseinformasjon
| FINN-kode | 455758599 |
|---|---|
| Sist endret | 23. mars 2026 10:06 |
| Referanse | 34260077 |
Annonsene kan være mangelfulle i forhold til lovpålagt opplysningsplikt. Før bindende avtale inngås oppfordres interessenter til å innhente komplett informasjon fra meglerforetaket, selger eller utleier.














































