Bildegalleri

Camilla Schrøder ved Din Lokale Eiendomsmegler EIE har gleden av å presentere Linjeveien 53A!
Høybråten
Familievennlig og innholdsrik halvpart tomannsbolig over 2 plan - 5 soverom - God standard - Solrik terrasse og hagedel
Prisantydning6 890 000 kr
Nøkkelinfo
- Boligtype
- Tomannsbolig
- Eieform
- Eier (Selveier)
- Soverom
- 5
- Internt bruksareal
- 138 m² (BRA-i)
- Bruksareal
- 196 m²
- Eksternt bruksareal
- 58 m² (BRA-e)
- Balkong/Terrasse
- 15 m² (TBA)
- Byggeår
- 1967
- Energimerking
- E - Oransje
- Rom
- 6
- Tomteareal
- 342 m² (eiet)
Fasiliteter
Barnevennlig
Balkong/Terrasse
Garasje/P-plass
Offentlig vann/kloakk
Parkett
Peis/Ildsted
Sentralt
Rolig
Lademulighet
Visning
søndag, 22. mars
13:00 – 14:00
mandag, 23. mars
17:00 – 18:00
Husk å melde deg/dere på visning. Velkommen til en hyggelig visning!
Om boligen
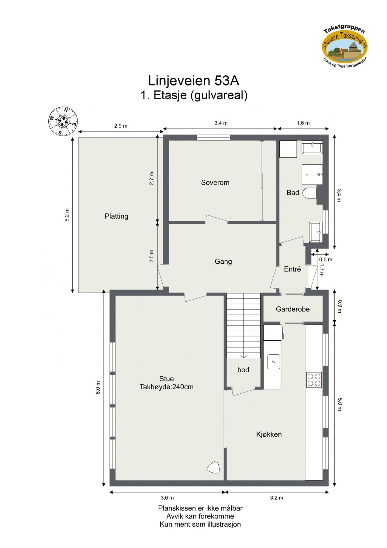
Camilla Schrøder ved Din Lokale Eiendomsmegler EIE har gleden av å presentere Linjeveien 53A, en lys, innholdsrik og familievennlig vertikaldelt halvpart tomannsbolig over 2 plan, med 2 enkle garasjer, 5 gode soverom, 2 bad, store vindusflater og en solrik uteplass med terrasse på 15m2 og hagedel. Denne boligen er perfekt for familier!
Her bor du i et etablert og barnevennlig område på Høybråten, med kort vei til Høybråten skole, barnehager, buss/tog og dagligvare. Her er det godt å bo, og lett å trives!
- Lys, innholdsrik og attraktiv del av vertikaldelt tomannsbolig over 2 plan
- GUA 205m2
- Svært familievennlig
- 5 gode soverom
- Solrike uteplasser
- Sydvestvendt terrasse 15m2
- Egen hagedel
- Store vindusflater
- Lys og luftig
- God standard
- 2 Bad fra 2016
- Automatsikringer
- El-tilsyn 2019
- Kjøkken fra 2016
- 2 varmepumper
- Stilig peis
- 2 garasjer
- Elbil-lader
- Nær buss/tog
- Attraktiv og barnevennlig beliggenhet
- Sokner til populære Høybråten skole
- Flytt rett inn
Her bor du i et etablert og barnevennlig område på Høybråten, med kort vei til Høybråten skole, barnehager, buss/tog og dagligvare. Her er det godt å bo, og lett å trives!
- Lys, innholdsrik og attraktiv del av vertikaldelt tomannsbolig over 2 plan
- GUA 205m2
- Svært familievennlig
- 5 gode soverom
- Solrike uteplasser
- Sydvestvendt terrasse 15m2
- Egen hagedel
- Store vindusflater
- Lys og luftig
- God standard
- 2 Bad fra 2016
- Automatsikringer
- El-tilsyn 2019
- Kjøkken fra 2016
- 2 varmepumper
- Stilig peis
- 2 garasjer
- Elbil-lader
- Nær buss/tog
- Attraktiv og barnevennlig beliggenhet
- Sokner til populære Høybråten skole
- Flytt rett inn
NB: Knappen for å vise hele beskrivelsen har kun en visuell effekt.
NB: Knappen for å vise hele beskrivelsen har kun en visuell effekt.
Salgsoppgaven beskriver vesentlig og lovpålagt informasjon om eiendommen
Se komplett salgsoppgaveNyttige lenker
Nærområdet
EIE eiendomsmegling Stovner
Annonseinformasjon
| FINN-kode | 455756970 |
|---|---|
| Sist endret | 19. mars 2026 12:45 |
| Referanse | 75260064 |
Annonsene kan være mangelfulle i forhold til lovpålagt opplysningsplikt. Før bindende avtale inngås oppfordres interessenter til å innhente komplett informasjon fra meglerforetaket, selger eller utleier.









































