Bildegalleri

Velkommen til Sagveien 9, presentert av EiendomsMegler 1 ved Jesper Snekkestad. Foto: Eiendomsfoto AS.
TØNSBERG - ILEBREKKE
Enebolig med stor eiertomt på 1 012 m² | Rolig og barnevennlig område | Garasje | Svært solrik og flott beliggenhet!
Prisantydning4 290 000 kr
Nøkkelinfo
- Boligtype
- Enebolig
- Eieform
- Eier (Selveier)
- Soverom
- 3
- Internt bruksareal
- 164 m² (BRA-i)
- Bruksareal
- 197 m²
- Eksternt bruksareal
- 33 m² (BRA-e)
- Balkong/Terrasse
- 23 m² (TBA)
- Byggeår
- 1969
- Energimerking
- Tomteareal
- 1 012 m² (eiet)
Fasiliteter
Balkong/Terrasse
Barnevennlig
Garasje/P-plass
Hage
Parkett
Peis/Ildsted
Turterreng
Visning
Ønsker du å delta på visningen ber vi deg melde deg på slik at vi vet at du kommer. Visningen avholdes bare dersom det er påmeldte. Visninger med ingen påmeldinger senest 2-to-timer før annonsert oppstartstidspunkt blir avlyst.
VisningspåmeldingOm boligen
Velkommen til Sagveien 9, presentert av EiendomsMegler 1 ved Jesper Snekkestad.
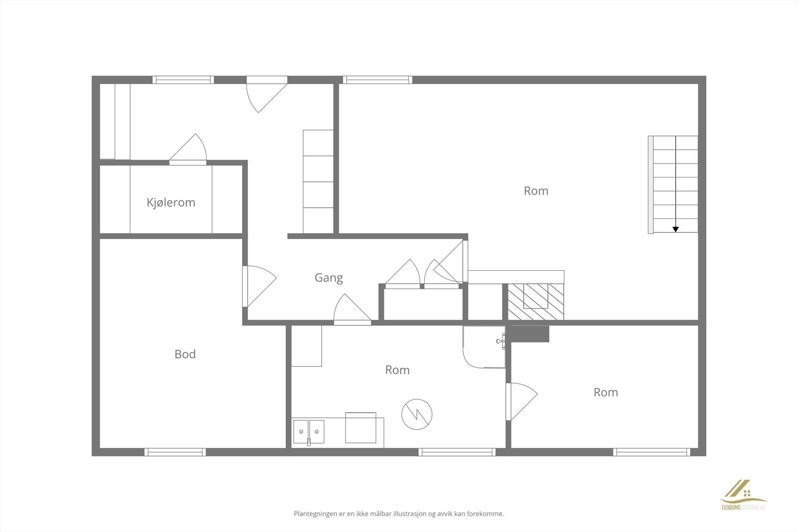
Her får du en enebolig med stor og solrik eiertomt på hele 1 012 m², beliggende i et rolig og barnevennlig område. Boligen går over to etasjer og har en funksjonell planløsning med tre romslige soverom, lys og hyggelig stue- og spisestue med peisovn, samt utgang til en sørvendt terrasse med gode solforhold. Underetasjen byr på fleksible muligheter med kjellerstue, vaskerom og rikelig med lagringsplass.
Integrert garasje med bod og kort vei til inngangsdøren gjør hverdagen både praktisk og komfortabel.
Her har man en fin mulighet til å sette ditt eget preg og skape et hjem tilpasset dine ønsker ved oppussing/modernisering. En attraktiv eiendom med stort potensial!
Velkommen til visning!
Her får du en enebolig med stor og solrik eiertomt på hele 1 012 m², beliggende i et rolig og barnevennlig område. Boligen går over to etasjer og har en funksjonell planløsning med tre romslige soverom, lys og hyggelig stue- og spisestue med peisovn, samt utgang til en sørvendt terrasse med gode solforhold. Underetasjen byr på fleksible muligheter med kjellerstue, vaskerom og rikelig med lagringsplass.
Integrert garasje med bod og kort vei til inngangsdøren gjør hverdagen både praktisk og komfortabel.
Her har man en fin mulighet til å sette ditt eget preg og skape et hjem tilpasset dine ønsker ved oppussing/modernisering. En attraktiv eiendom med stort potensial!
Velkommen til visning!
NB: Knappen for å vise hele beskrivelsen har kun en visuell effekt.
NB: Knappen for å vise hele beskrivelsen har kun en visuell effekt.
Salgsoppgaven beskriver vesentlig og lovpålagt informasjon om eiendommen
Se komplett salgsoppgaveNyttige lenker
Nærområdet
EiendomsMegler 1 Tønsberg
En del av Sparebank 1 Sør-Norge
Annonseinformasjon
| FINN-kode | 455744775 |
|---|---|
| Sist endret | 21. mars 2026 15:07 |
| Referanse | 2871250095 |
Annonsene kan være mangelfulle i forhold til lovpålagt opplysningsplikt. Før bindende avtale inngås oppfordres interessenter til å innhente komplett informasjon fra meglerforetaket, selger eller utleier.

























































