Bildegalleri

Velkommen til 2-roms leilighet i 1. etasje i Bokfinkvegen 28! Foto: Ole Kaldal/Efkt
Praktisk 2- roms leilighet i 1. etasje * Garasje * Fine turområder
Prisantydning1 350 000 kr
Nøkkelinfo
- Boligtype
- Leilighet
- Eieform
- Andel
- Soverom
- 1
- Internt bruksareal
- 40 m² (BRA-i)
- Bruksareal
- 77 m²
- Eksternt bruksareal
- 25 m² (BRA-e)
- Innglasset balkong
- 12 m² (BRA-b)
- Etasje
- 1
- Byggeår
- 1976
- Energimerking
- Rom
- 2
- Tomteareal
- 3 562 m² (eiet)
Om boligen
Praktisk 2-roms leilighet i 1. etasje i veletablert nabolag på Vennersberg. Her er det kort vei til barnehage, barneskole, bussholdeplass med bybuss to ganger i timen, og like ved er det nærbutikk.
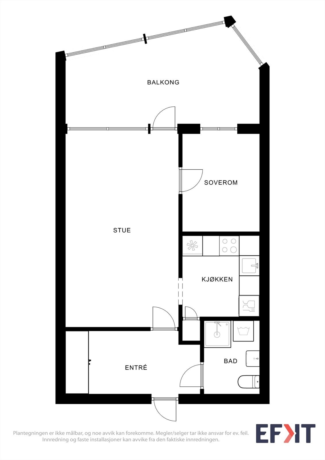
Leiligheten har kjøkken, stue med utgang til innglasset veranda, et soverom og bad/vaskerom. Det må påregnes oppgradering av de fleste overflater. Bod i kjeller og på loft. Garasje i felles anlegg.
Ca 2 km til sentrum syd og ca 3 km til sentrum nord. Gode turmuligheter i nærområdet.
Velkommen til visning!
Leiligheten har kjøkken, stue med utgang til innglasset veranda, et soverom og bad/vaskerom. Det må påregnes oppgradering av de fleste overflater. Bod i kjeller og på loft. Garasje i felles anlegg.
Ca 2 km til sentrum syd og ca 3 km til sentrum nord. Gode turmuligheter i nærområdet.
Velkommen til visning!
NB: Knappen for å vise hele beskrivelsen har kun en visuell effekt.
NB: Knappen for å vise hele beskrivelsen har kun en visuell effekt.
Salgsoppgaven beskriver vesentlig og lovpålagt informasjon om eiendommen
Se komplett salgsoppgaveNærområdet
Aktiv Kongsvinger
Annonseinformasjon
| FINN-kode | 455743810 |
|---|---|
| Sist endret | 18. mars 2026 12:40 |
| Referanse | 1202260036 |
Annonsene kan være mangelfulle i forhold til lovpålagt opplysningsplikt. Før bindende avtale inngås oppfordres interessenter til å innhente komplett informasjon fra meglerforetaket, selger eller utleier.



















