Bildegalleri

EiendomsMegler1 v/Eirik Hanekamhaug presenterer Verven 50!
Stavanger Brygge
Flott leilighet i sjøkanten med 2 soverom - Innglasset balkong - Parkering i lukket anlegg. Nærhet til turområder og sen
Prisantydning4 390 000 kr
Nøkkelinfo
- Boligtype
- Leilighet
- Eieform
- Eier (Selveier)
- Soverom
- 2
- Internt bruksareal
- 67 m² (BRA-i)
- Bruksareal
- 80 m²
- Eksternt bruksareal
- 5 m² (BRA-e)
- Innglasset balkong
- 8 m² (BRA-b)
- Etasje
- 1
- Byggeår
- 2002
- Energimerking
- Rom
- 3
- Tomteareal
- 4 553 m² (eiet)
Fasiliteter
Balkong/Terrasse
Barnevennlig
Bredbåndstilknytning
Garasje/P-plass
Kabel-TV
Offentlig vann/kloakk
Parkett
Rolig
Sentralt
Utsikt
Vaktmester-/vektertjeneste
Bademulighet
Fiskemulighet
Turterreng
Lademulighet
Visning
mandag, 23. mars
16:00 – 16:30
Ønsker du å delta på visningen ber vi deg melde deg på slik at vi vet at du kommer. Da kan vi bistå alle best mulig og gi deg tiden du trenger på visningen. Kontakt gjerne megler før visning hvis du har spørsmål. Visningen avholdes bare dersom det er påmeldte. Hvis det ikke er oppsatt visningstidspunkt eller tidspunkt ikke passer, kontakt megler.
VisningspåmeldingOm boligen
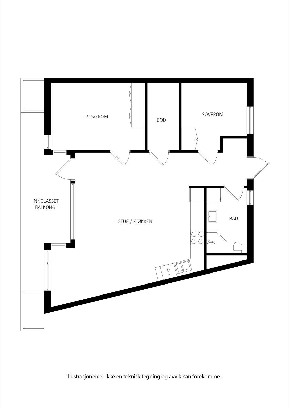
Verven 50 er en tiltalende leilighet i 1. etasje og fremstår med tilnærmet original standard. Parkettgulv binder sammen alle oppholdsrommene i boligen og byr på en god planløsning med entré, 2 soverom, bod, helfliset bad og stue/kjøkken i åpen løsning med store vindusflater. Fra stuen har en utgang til en innglasset vestvendt balkong på ca 8m2 med sjøutsikt.
- Vannbåren fjernvarme
- Bod i garasje
- Fast parkering m/ elbillader i lukket garasjeanlegg
- Felles badeplass og båtbrygge
Denne boligen er perfekt for deg som ønsker å bo sentralt med kort avstand til det du måtte trenge i hverdagen. Gangavstand til Stavanger sentrum og Østre bydel. Området er preget av sin beliggenhet rett ved sjøen, med flotte turområder og bryggeanlegg. Her ligger du rolig til med lite trafikk og støy.
NB: Knappen for å vise hele beskrivelsen har kun en visuell effekt.
NB: Knappen for å vise hele beskrivelsen har kun en visuell effekt.
Salgsoppgaven beskriver vesentlig og lovpålagt informasjon om eiendommen
Se komplett salgsoppgaveNyttige lenker
Nærområdet
EiendomsMegler 1 Mariero
En del av Sparebank 1 Sør-Norge
Annonseinformasjon
| FINN-kode | 455710940 |
|---|---|
| Sist endret | 16. mars 2026 18:55 |
| Referanse | 2206260022 |
Annonsene kan være mangelfulle i forhold til lovpålagt opplysningsplikt. Før bindende avtale inngås oppfordres interessenter til å innhente komplett informasjon fra meglerforetaket, selger eller utleier.


























