Bildegalleri

Velkommen til Gullhaugveien 157A - Presentert av Kenneth Eckmann v/EIE Sandvika. Foto: Anders Kjøndal v/Luxe AS
Solgt
BÆRUMS VERK
Perfekt for barnefamilie | 3 sov | Bad + wc | Solrike uteplasser | Ny platting | Nærhet til skole og natur |Garasjeplass
Prisantydning5 700 000 kr
Nøkkelinfo
- Boligtype
- Leilighet
- Eieform
- Eier (Selveier)
- Soverom
- 3
- Internt bruksareal
- 104 m² (BRA-i)
- Bruksareal
- 110 m²
- Eksternt bruksareal
- 6 m² (BRA-e)
- Balkong/Terrasse
- 21 m² (TBA)
- Etasje
- 1
- Byggeår
- 1990
- Energimerking
- C - Lysegrønn
- Rom
- 4
- Tomteareal
- 976 m² (eiet)
Fasiliteter
Barnevennlig
Balkong/Terrasse
Garasje/P-plass
Kabel-TV
Offentlig vann/kloakk
Parkett
Turterreng
Aircondition
Bredbåndstilknytning
Rolig
Om boligen
Velkommen til Gullhaugveien 157A - Presentert av Kenneth Eckmann v/EIE Sandvika.
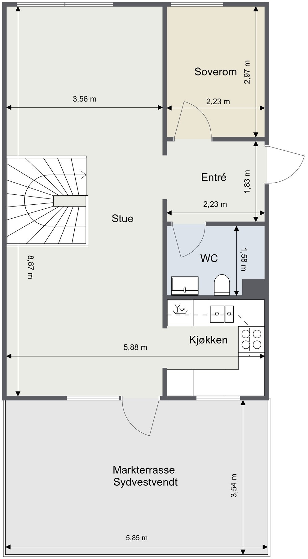
Dette er en romslig og familievennlig bolig over to plan i et attraktivt og trygt område. Boligen har en praktisk planløsning med tre gode soverom, bad og toalettrom. I stuen ble varmepumpe installert i 2023, som sørger for god komfort året rundt.
Her bor du i et svært hyggelig nabolag med godt samhold mellom naboene. I sameiet inviteres det til sosiale sammenkomster av og til, blant annet populære sommerfester som bidrar til et inkluderende og trivelig bomiljø.
Det er flotte uteplasser med meget gode solforhold. Ny platting ble oppført i 2020/21.
Fra boligen er det kort og trygg gangavstand til både skole og barnehage. Området byr også på flotte turmuligheter rett utenfor døren med nærhet til skog og natur. Om vinteren prepareres det skiløyper i nærområdet, og Lommedalen IL tilbyr et svært godt og aktivt idrettstilbud for barn og unge.
Mangler du egenkapital? Boligen kan kjøpes med Finit Deleie.
Dette er en romslig og familievennlig bolig over to plan i et attraktivt og trygt område. Boligen har en praktisk planløsning med tre gode soverom, bad og toalettrom. I stuen ble varmepumpe installert i 2023, som sørger for god komfort året rundt.
Her bor du i et svært hyggelig nabolag med godt samhold mellom naboene. I sameiet inviteres det til sosiale sammenkomster av og til, blant annet populære sommerfester som bidrar til et inkluderende og trivelig bomiljø.
Det er flotte uteplasser med meget gode solforhold. Ny platting ble oppført i 2020/21.
Fra boligen er det kort og trygg gangavstand til både skole og barnehage. Området byr også på flotte turmuligheter rett utenfor døren med nærhet til skog og natur. Om vinteren prepareres det skiløyper i nærområdet, og Lommedalen IL tilbyr et svært godt og aktivt idrettstilbud for barn og unge.
Mangler du egenkapital? Boligen kan kjøpes med Finit Deleie.
NB: Knappen for å vise hele beskrivelsen har kun en visuell effekt.
NB: Knappen for å vise hele beskrivelsen har kun en visuell effekt.
Salgsoppgaven beskriver vesentlig og lovpålagt informasjon om eiendommen
Se komplett salgsoppgaveNyttige lenker
Nærområdet
EIE eiendomsmegling Bærum
Annonseinformasjon
| FINN-kode | 455461260 |
|---|---|
| Sist endret | 23. mars 2026 12:14 |
| Referanse | 36260110 |
Annonsene kan være mangelfulle i forhold til lovpålagt opplysningsplikt. Før bindende avtale inngås oppfordres interessenter til å innhente komplett informasjon fra meglerforetaket, selger eller utleier.




































