Bildegalleri

Velkommen til Hagaplassen 22! Et tiltalende og innholdsrik rekkehus over to plan med tilhørende garasje
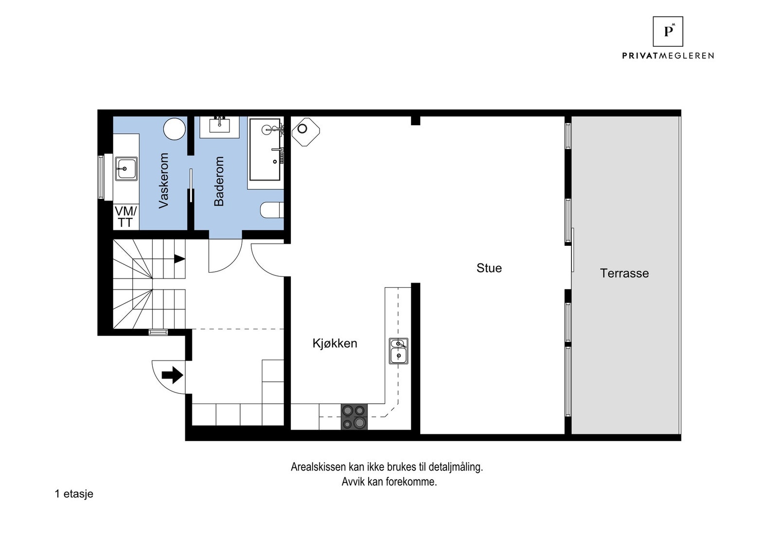
Flott rekkehus med 3 soverom, 2 bad, loftstue, garasje og nydelig utsikt - familievennlig beliggenhet på Nedre Eikrem
Prisantydning4 850 000 kr
Nøkkelinfo
- Boligtype
- Leilighet
- Eieform
- Eier (Selveier)
- Soverom
- 3
- Internt bruksareal
- 137 m² (BRA-i)
- Bruksareal
- 161 m²
- Eksternt bruksareal
- 24 m² (BRA-e)
- Balkong/Terrasse
- 18 m² (TBA)
- Byggeår
- 2014
- Energimerking
- B - Lysegrønn
- Rom
- 5
- Tomteareal
- 2 997 m² (eiet)
Visning
mandag, 23. mars
18:00 – 19:00
Velkommen til visning!
Alle våre visninger har påmelding. Påmeldingsfristen er 23.03 kl. 14:00.
På denne måten sikrer vi at megler har god oversikt og tid til å imøtekomme alle interessenter på beste måte. Dette er veldig verdifullt for boligkjøpere og for oss. Det er enkelt å melde seg på, og du kan like enkelt melde deg av. Kontakt også gjerne megler i forkant av visning dersom du har spørsmål.
Om boligen
Velkommen til et moderne og praktisk rekkehus i et attraktivt og familievennlig boligområde på Nedre Eikrem.
Boligen har blant annet følgende kvaliteter:
. Nydelig utsikt.
. Stor veranda med utgang fra stue.
. God planløsning.
. Åpen stue- og kjøkkenløsning med skjermet kjøkkeninnredning.
. 2 flislagte bad og separat vaskerom.
. 3 soverom.
. 2 stuer.
. Boligen har både vedovn og varmepumpe.
. Egen 25A kurs til lading av bil i garasje og 10A til stikk og garasjeport.
Boligen ligger i et nyere boligfelt under utvikling, med gang- og sykkelavstand til både butikk, skoler og barnehage - perfekt for barnefamilier og deg som ønsker en enkel og praktisk hverdag. Med nytt sykehus på Hjelset er dette også en veldig praktisk plassering for de som jobber der.
Velkommen på visning!
Boligen har blant annet følgende kvaliteter:
. Nydelig utsikt.
. Stor veranda med utgang fra stue.
. God planløsning.
. Åpen stue- og kjøkkenløsning med skjermet kjøkkeninnredning.
. 2 flislagte bad og separat vaskerom.
. 3 soverom.
. 2 stuer.
. Boligen har både vedovn og varmepumpe.
. Egen 25A kurs til lading av bil i garasje og 10A til stikk og garasjeport.
Boligen ligger i et nyere boligfelt under utvikling, med gang- og sykkelavstand til både butikk, skoler og barnehage - perfekt for barnefamilier og deg som ønsker en enkel og praktisk hverdag. Med nytt sykehus på Hjelset er dette også en veldig praktisk plassering for de som jobber der.
Velkommen på visning!
NB: Knappen for å vise hele beskrivelsen har kun en visuell effekt.
NB: Knappen for å vise hele beskrivelsen har kun en visuell effekt.
Salgsoppgaven beskriver vesentlig og lovpålagt informasjon om eiendommen
Se komplett salgsoppgaveNyttige lenker
Nærområdet
Privatmegleren Molde
Kun det beste på dine vegne
Annonseinformasjon
| FINN-kode | 455416933 |
|---|---|
| Sist endret | 14. mars 2026 13:52 |
| Referanse | 45260024 |
Annonsene kan være mangelfulle i forhold til lovpålagt opplysningsplikt. Før bindende avtale inngås oppfordres interessenter til å innhente komplett informasjon fra meglerforetaket, selger eller utleier.

































