Bildegalleri

Velkommen til Belsetveien 79 presentert av daglig leder & eiendomsmegler Mats Lund hos Krogsveen Bærum
Stor 4-roms leilighet innerst i sameiet med to store solrike terrasser - 2 bad, vaskerom, Garasje - Behov for oppussing!
Prisantydning5 000 000 kr
Nøkkelinfo
- Boligtype
- Leilighet
- Eieform
- Eier (Selveier)
- Soverom
- 3
- Internt bruksareal
- 109 m² (BRA-i)
- Bruksareal
- 114 m²
- Eksternt bruksareal
- 5 m² (BRA-e)
- Balkong/Terrasse
- 26 m² (TBA)
- Etasje
- 2
- Byggeår
- 1974
- Energimerking
- D - Rød
- Rom
- 4
- Tomteareal
- 18 707 m² (eiet)
Fasiliteter
Balkong/Terrasse
Barnevennlig
Bredbåndstilknytning
Garasje/P-plass
Kjæledyr tillatt
Ingen gjenboere
Kabel-TV
Offentlig vann/kloakk
Parkett
Rolig
Sentralt
Utsikt
Turterreng
Lademulighet
Om boligen
Eiendomsmegler Mats Lund ved Krogsveen Bærum har gleden av å ønske velkommen til Belsetveien 79, og en innholdsrik og gjennomgående selveierleilighet i et hyggelig boligområde sentralt på Rykkinn. Her bor du med gangavstand til barnehager, skoler, offentlig kommunikasjon, butikker og ikke minst nærhet til nydelige turområder i Bærumsmarka.
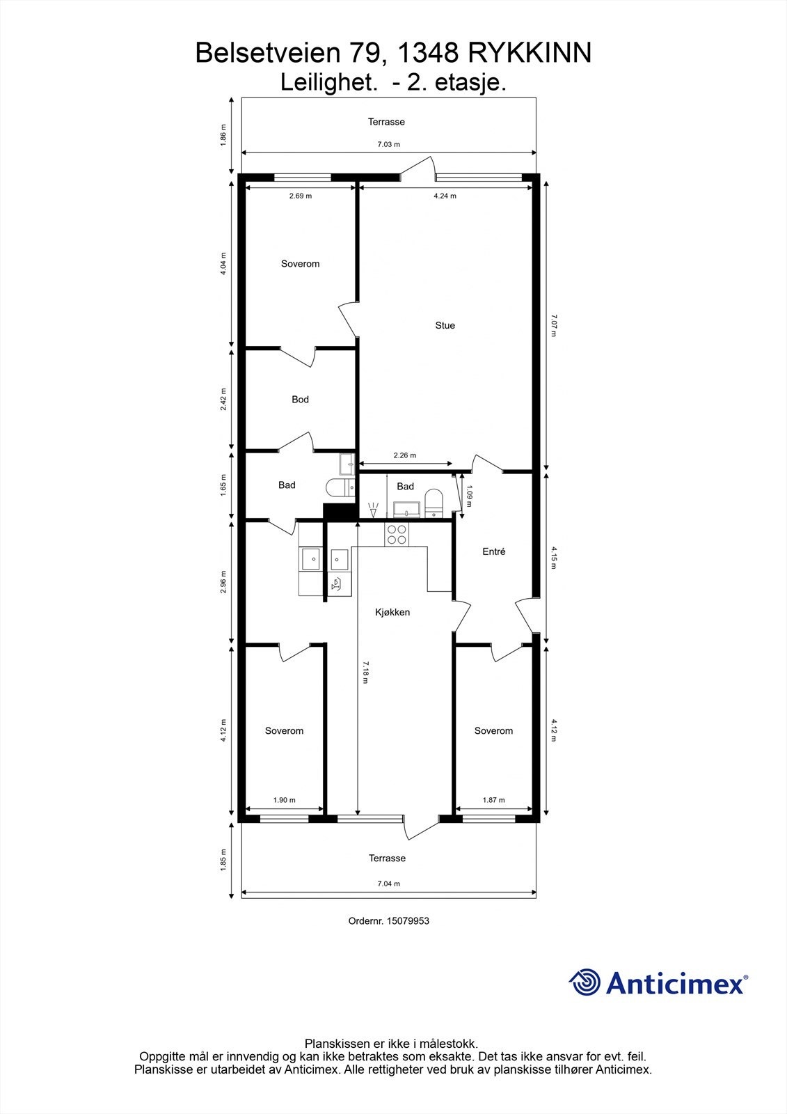
Leiligheten har et oppussingsbehov, og er et godt utgangspunkt for å sette sitt eget preg på hjemmet. Leiligheten ligger i byggets 2. etasje, og har en god planløsning bestående av entré, to bad, tre soverom, innvendig bod, stue og kjøkken. Leiligheten har to flotte terrasser, én fra kjøkkenet og én fra stuen, hvor late dager kan nytes. I tillegg disponerer leiligheten to boder og garasjeplass.
Leiligheten har et oppussingsbehov, og er et godt utgangspunkt for å sette sitt eget preg på hjemmet. Leiligheten ligger i byggets 2. etasje, og har en god planløsning bestående av entré, to bad, tre soverom, innvendig bod, stue og kjøkken. Leiligheten har to flotte terrasser, én fra kjøkkenet og én fra stuen, hvor late dager kan nytes. I tillegg disponerer leiligheten to boder og garasjeplass.
NB: Knappen for å vise hele beskrivelsen har kun en visuell effekt.
NB: Knappen for å vise hele beskrivelsen har kun en visuell effekt.
Salgsoppgaven beskriver vesentlig og lovpålagt informasjon om eiendommen
Se komplett salgsoppgaveNyttige lenker
Nærområdet
Krogsveen Bærum
Verdien av en god megler.
Annonseinformasjon
| FINN-kode | 455353695 |
|---|---|
| Sist endret | 16. mars 2026 08:31 |
| Referanse | KR10.2694 |
Annonsene kan være mangelfulle i forhold til lovpålagt opplysningsplikt. Før bindende avtale inngås oppfordres interessenter til å innhente komplett informasjon fra meglerforetaket, selger eller utleier.








































