Bildegalleri

EIE eiendomsmegling og Jan Berg ønsker velkommen til Bærefjellveien 60!
Rålekker enebolig, fremstår nesten som ny. Oppgradert, innholdsrik og moderne fargevalg. Dobbel garasje. MÅ SEES!
Prisantydning5 900 000 kr
Nøkkelinfo
- Boligtype
- Enebolig
- Eieform
- Eier (Selveier)
- Soverom
- 3
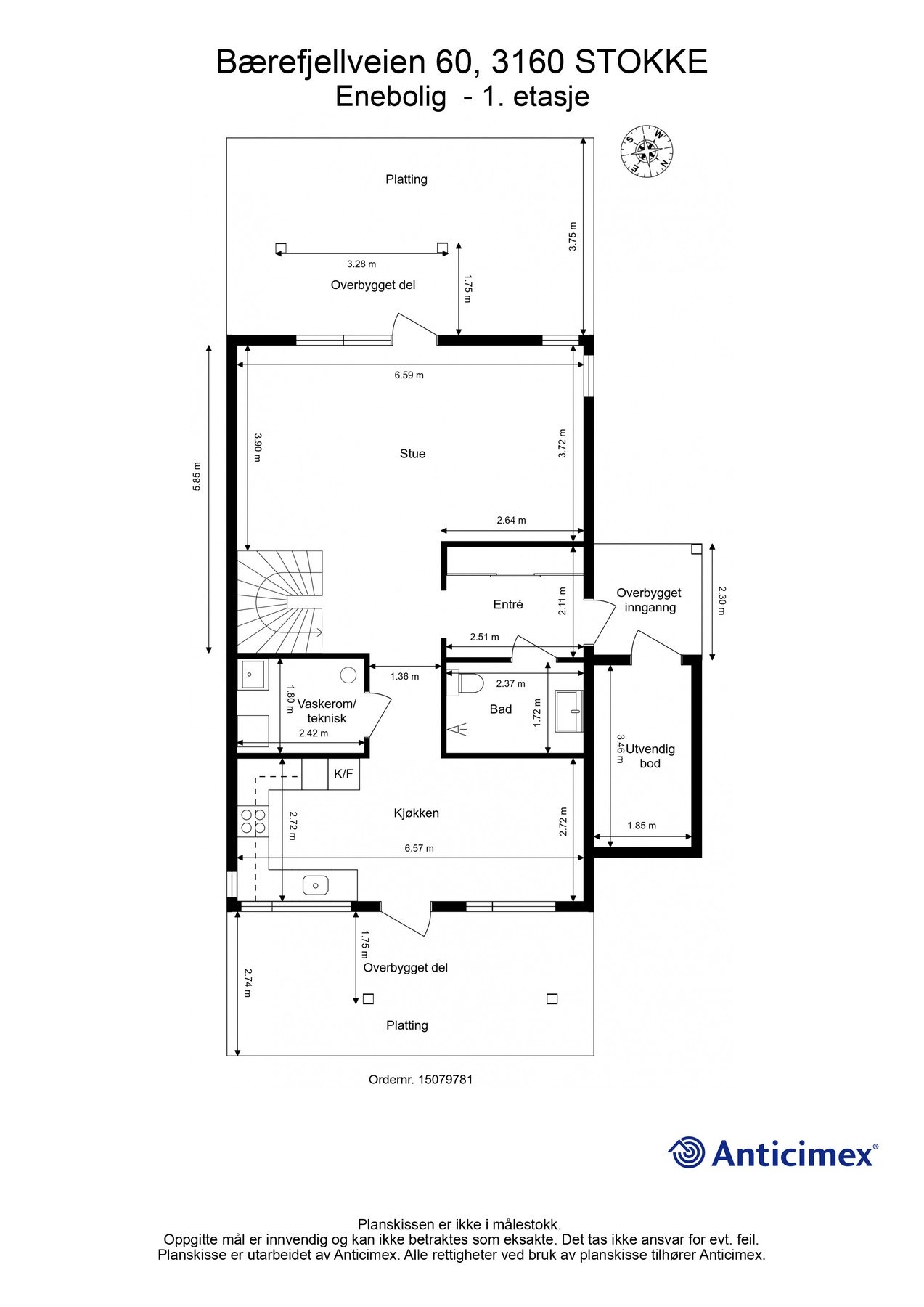
- Internt bruksareal
- 141 m² (BRA-i)
- Bruksareal
- 182 m²
- Eksternt bruksareal
- 41 m² (BRA-e)
- Balkong/Terrasse
- 47 m² (TBA)
- Byggeår
- 2016
- Energimerking
- A - Gul
- Tomteareal
- 469 m² (eiet)
Fasiliteter
Barnevennlig
Balkong/Terrasse
Garasje/P-plass
Alarm
Offentlig vann/kloakk
Parkett
Turterreng
Sentralt
Bredbåndstilknytning
Moderne
Lademulighet
Balansert ventilasjon
Om boligen
Innholdsrik enebolig med WOW faktor. Lekker på alle måter, fargevalg, kvalitet, standard og planløsning. Sjelden har megler sett en mer ivaretatt bolig som bare må sees. Vinterisolert garasje med el billader og meget lettstelt tomt. Solrikt og meget barnevennlig samt gangavstand fra skoler, barnehage, turområder og sentrum. Flytt rett inn!!
NB: Knappen for å vise hele beskrivelsen har kun en visuell effekt.
NB: Knappen for å vise hele beskrivelsen har kun en visuell effekt.
Salgsoppgaven beskriver vesentlig og lovpålagt informasjon om eiendommen
Se komplett salgsoppgaveNærområdet
EIE eiendomsmegling Stokke
Annonseinformasjon
| FINN-kode | 455346674 |
|---|---|
| Sist endret | 14. mars 2026 07:51 |
| Referanse | 88251056 |
Annonsene kan være mangelfulle i forhold til lovpålagt opplysningsplikt. Før bindende avtale inngås oppfordres interessenter til å innhente komplett informasjon fra meglerforetaket, selger eller utleier.























































