Bildegalleri

Velkommen til Griffenfeldts gate 17D - Presentert av Kasper Varnes / Eiendomsmegler1 Torshov | Foto: Guttorm Johansen
Iladalen
Velholdt 3-roms i høy 1. etasje. | Bad oppgradert i 2021 | Internett, varmtvann og fyring inkl. | IN-ordning
Prisantydning5 100 000 kr
Nøkkelinfo
- Boligtype
- Leilighet
- Eieform
- Andel
- Soverom
- 2
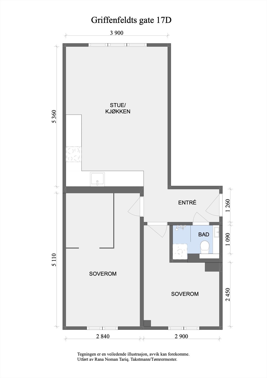
- Internt bruksareal
- 52 m² (BRA-i)
- Bruksareal
- 61 m²
- Eksternt bruksareal
- 9 m² (BRA-e)
- Etasje
- 1
- Byggeår
- 1938
- Energimerking
- Rom
- 2
- Tomteareal
- 2 830 m² (eiet)
Fasiliteter
Barnevennlig
Bredbåndstilknytning
Fellesvaskeri
Kjæledyr tillatt
Offentlig vann/kloakk
Rolig
Sentralt
Vaktmester-/vektertjeneste
Om boligen
Velkommen til Griffenfeldts Gate 17D!
Dette er en pent vedlikeholdt og arealeffektiv 3-roms leilighet med gjennomgående løsning, orginale tregulv og gode oppholdsrom. Leiligheten ligger sentralt til ved populære Iladalen i byggets høye første. I 2021 ble leiligheten totalforvandlet hvor kjøkkenet ble flyttet til stue, baderom ble oppgradert og det ble etablert to gode soverom. Boligen ligger høyt i terrenget og fra stuevinduene ser man faktisk over hustaket til naboblokken noe som gir lite innsyn og godt lysinnslipp. Det er ikke ofte!
Kvaliteter:
- IN-ordning: Mulig å redusere felleskostnader med kr. 924 /mnd.
- Bad pusset opp av borettslaget i 2013, modernifisert i 2021.
- To romslige soverom med gode oppbevaringsmuligheter.
- A-konto oppvarming
- Orginalt tregulv i hele leiligheten
Dette er en pent vedlikeholdt og arealeffektiv 3-roms leilighet med gjennomgående løsning, orginale tregulv og gode oppholdsrom. Leiligheten ligger sentralt til ved populære Iladalen i byggets høye første. I 2021 ble leiligheten totalforvandlet hvor kjøkkenet ble flyttet til stue, baderom ble oppgradert og det ble etablert to gode soverom. Boligen ligger høyt i terrenget og fra stuevinduene ser man faktisk over hustaket til naboblokken noe som gir lite innsyn og godt lysinnslipp. Det er ikke ofte!
Kvaliteter:
- IN-ordning: Mulig å redusere felleskostnader med kr. 924 /mnd.
- Bad pusset opp av borettslaget i 2013, modernifisert i 2021.
- To romslige soverom med gode oppbevaringsmuligheter.
- A-konto oppvarming
- Orginalt tregulv i hele leiligheten
NB: Knappen for å vise hele beskrivelsen har kun en visuell effekt.
NB: Knappen for å vise hele beskrivelsen har kun en visuell effekt.
Salgsoppgaven beskriver vesentlig og lovpålagt informasjon om eiendommen
Se komplett salgsoppgaveNyttige lenker
Nærområdet
EiendomsMegler 1 Torshov
Vi loser deg trygt gjennom hele boligsalget
Annonseinformasjon
| FINN-kode | 455286452 |
|---|---|
| Sist endret | 17. mars 2026 14:14 |
| Referanse | 6044260073 |
Annonsene kan være mangelfulle i forhold til lovpålagt opplysningsplikt. Før bindende avtale inngås oppfordres interessenter til å innhente komplett informasjon fra meglerforetaket, selger eller utleier.

























