Bildegalleri

Velkommen til Marta Steinsviks vei 8C og denne flotte 2-roms leiligheten med stor uteplass og 2 garasjeplasser. Presentert av Christoffer S. Akerjordet og Krogsveen Nordstrand
Stenbråten
Lekker og moderne 2-roms med 30 m² skjermet uteplass. | To garasjeplasser m/ elbillader. | God lagringsplass
Prisantydning3 900 000 kr
Nøkkelinfo
- Boligtype
- Leilighet
- Eieform
- Andel
- Soverom
- 1
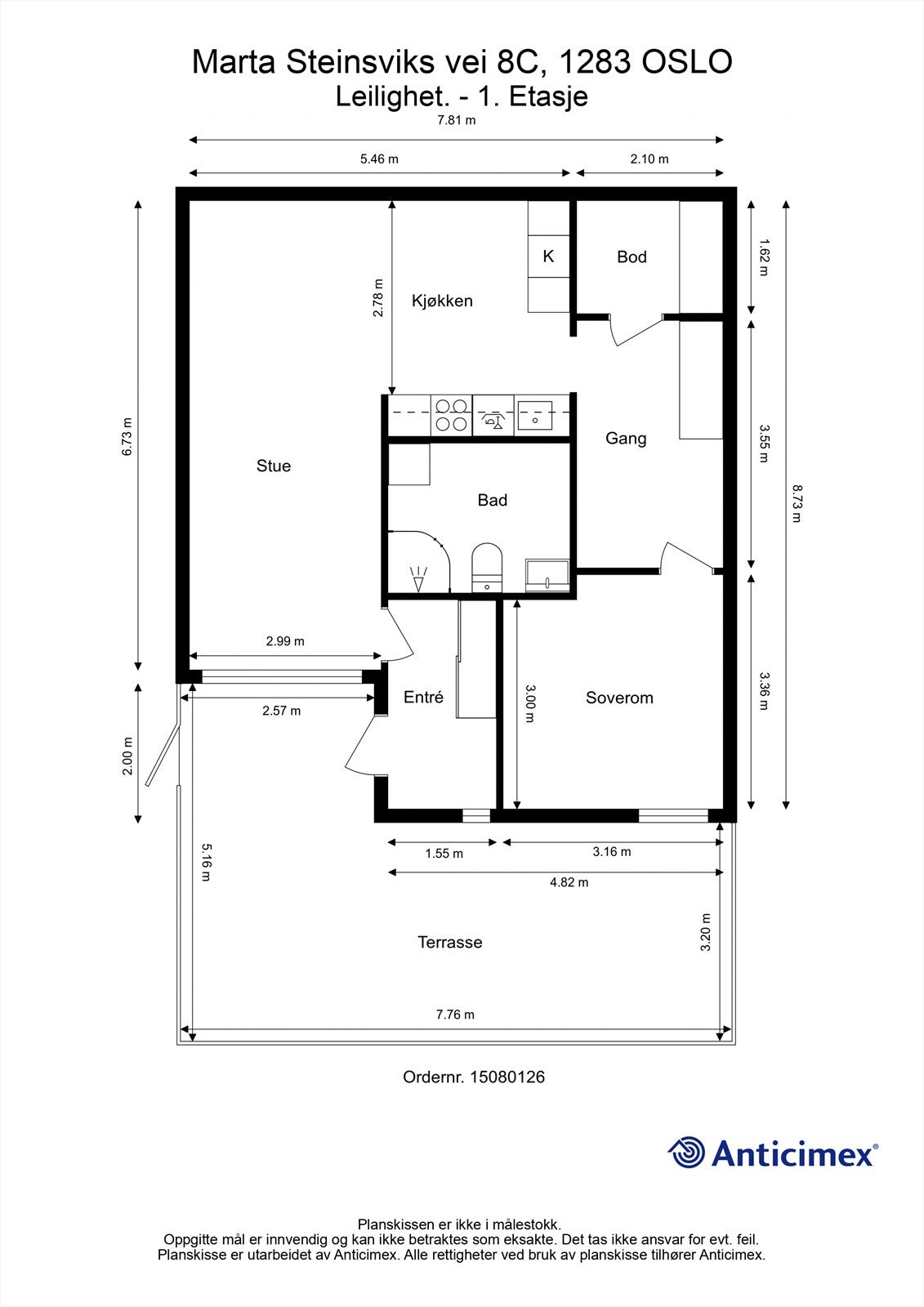
- Internt bruksareal
- 62 m² (BRA-i)
- Bruksareal
- 67 m²
- Eksternt bruksareal
- 5 m² (BRA-e)
- Balkong/Terrasse
- 30 m² (TBA)
- Etasje
- 1
- Byggeår
- 2009
- Energimerking
- B - Lysegrønn
- Rom
- 2
- Tomteareal
- 6 629 m² (eiet)
Om boligen
Velkommen til Marta Steinsviks vei 8C! Dette er en arealeffektiv leilighet på bakkeplan med egen inngang og en stor, skjermet uteplass.
Her bor du stille og tilbaketrukket innerst i en blindvei, med umiddelbar nærhet til Ljanselva og Østmarka. Leiligheten er del av et veldrevet borettslag. Den åpne stue- og kjøkkenløsningen gir en god romfølelse. Boligen varmes opp med fjernvarme.
Høydepunkter:
Her bor du stille og tilbaketrukket innerst i en blindvei, med umiddelbar nærhet til Ljanselva og Østmarka. Leiligheten er del av et veldrevet borettslag. Den åpne stue- og kjøkkenløsningen gir en god romfølelse. Boligen varmes opp med fjernvarme.
Høydepunkter:
- Sørvestvendt uteplass på 30 m²
- To garasjeplasser i oppvarmet anlegg. En av de med elbillader
- God lagringsplass i innvendig og ekstern bod
- Energieffektiv med energiklasse B, oppvarming med fjernvarme.
- Varmekabler på bad
- Kort vei til kollektivknutepunkt og servicetilbud
Velkommen til visning! Husk påmelding.
NB: Knappen for å vise hele beskrivelsen har kun en visuell effekt.
NB: Knappen for å vise hele beskrivelsen har kun en visuell effekt.
Salgsoppgaven beskriver vesentlig og lovpålagt informasjon om eiendommen
Se komplett salgsoppgaveNyttige lenker
Nærområdet
Krogsveen Nordstrand
Verdien av en god megler.
Annonseinformasjon
| FINN-kode | 455284101 |
|---|---|
| Sist endret | 14. mars 2026 07:50 |
| Referanse | KR44.2645 |
Annonsene kan være mangelfulle i forhold til lovpålagt opplysningsplikt. Før bindende avtale inngås oppfordres interessenter til å innhente komplett informasjon fra meglerforetaket, selger eller utleier.




































