Bildegalleri

Velkommen til Juldgan 12, en lekker og stilfull 2-roms selveierleilighet med god planløsning og balkong. Attraktiv beliggenhet i tiende etasje med spektakulær utsikt og svært gode solforhold.
Strandkanten/Skir
Lekker 2-roms selveier i 10. etasje! - Utsikt og solrik balkong - Heis - Lave felleskost.
Prisantydning5 250 000 kr
Nøkkelinfo
- Boligtype
- Leilighet
- Eieform
- Eier (Selveier)
- Soverom
- 1
- Internt bruksareal
- 54 m² (BRA-i)
- Bruksareal
- 59 m²
- Eksternt bruksareal
- 5 m² (BRA-e)
- Balkong/Terrasse
- 8 m² (TBA)
- Etasje
- 10
- Byggeår
- 2021
- Energimerking
- Rom
- 2
- Tomteareal
- 701 m² (eiet)
Fasiliteter
Balkong/Terrasse
Barnevennlig
Bredbåndstilknytning
Heis
Kjæledyr tillatt
Ingen gjenboere
Offentlig vann/kloakk
Parkett
Rolig
Sentralt
Utsikt
Bademulighet
Fiskemulighet
Strandlinje
Turterreng
Balansert ventilasjon
Visning
mandag, 23. mars
16:45 – 17:30
Alle våre visninger har påmelding. På denne måten sikrer vi at megler har god oversikt og tid til å imøtekomme alle interessenter på beste måte. Skulle ingen være påmeldt til visningen, vil visningen ikke bli gjennomført. Passer ikke annonsert tidspunkt, ta kontakt så finner vi en løsning.
VisningspåmeldingOm boligen
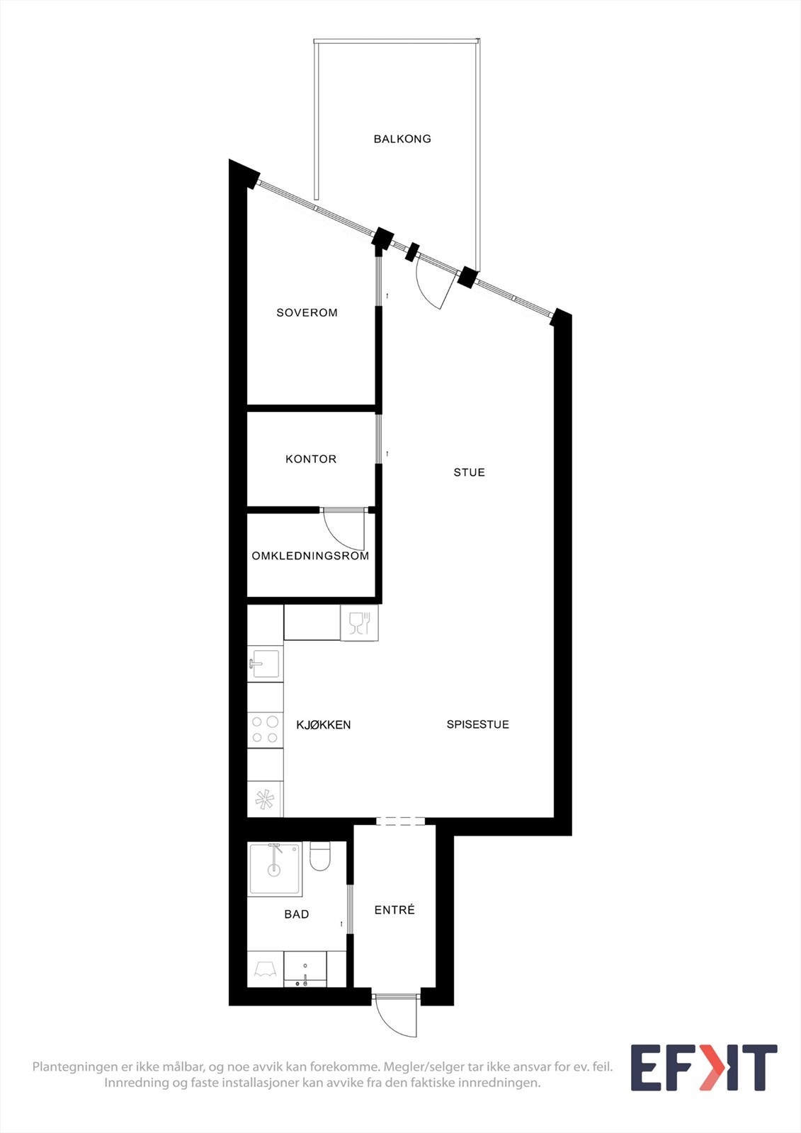
Velkommen til 10. etasje, og til denne moderne leiligheten med sørvendt balkong, fantastisk sjøutsikt uten innsyn, og lekre detaljer!
Leiligheten byr på en romslig stue i åpen løsning til et betydelig oppgradert kjøkken, med integrerte hvitevarer og rikelig skap- og benkeplass. Svært luftig atmosfære med godt lysinnslipp fra store vindusflater. Balkong med meget gode solforhold grunnet høy plassering og vinkling på bygget. Lekkert bad, soverom, walk-in og kontor. Bod i kjeller.
Høy standard med vannbåren varme, balansert ventilasjon, parkettgulv og glatte overflater gjennomgående i hele leiligheten.
Høydepunkter:
- Lave månedlige felleskostnader med mye inkludert
- TG1 på alt og mulighet for grønt boliglån
- Balkong
- Ingen innsyn
- Heis
- Mulighet for leie av parkeringsplass
Leiligheten byr på en romslig stue i åpen løsning til et betydelig oppgradert kjøkken, med integrerte hvitevarer og rikelig skap- og benkeplass. Svært luftig atmosfære med godt lysinnslipp fra store vindusflater. Balkong med meget gode solforhold grunnet høy plassering og vinkling på bygget. Lekkert bad, soverom, walk-in og kontor. Bod i kjeller.
Høy standard med vannbåren varme, balansert ventilasjon, parkettgulv og glatte overflater gjennomgående i hele leiligheten.
Høydepunkter:
- Lave månedlige felleskostnader med mye inkludert
- TG1 på alt og mulighet for grønt boliglån
- Balkong
- Ingen innsyn
- Heis
- Mulighet for leie av parkeringsplass
NB: Knappen for å vise hele beskrivelsen har kun en visuell effekt.
NB: Knappen for å vise hele beskrivelsen har kun en visuell effekt.
Salgsoppgaven beskriver vesentlig og lovpålagt informasjon om eiendommen
Se komplett salgsoppgaveNyttige lenker
Nærområdet
GARANTI Eiendomsmegling Tromsø
Annonseinformasjon
| FINN-kode | 455282180 |
|---|---|
| Sist endret | 14. mars 2026 11:56 |
| Referanse | GAR51.2625 |
Annonsene kan være mangelfulle i forhold til lovpålagt opplysningsplikt. Før bindende avtale inngås oppfordres interessenter til å innhente komplett informasjon fra meglerforetaket, selger eller utleier.





























