Bildegalleri

Velkommen til Bøkeveien 5!
Lura
Velholdt enebolig over 2. etasjer | Kjekke uteområder og carport | Egen inngang til underetasje
Prisantydning6 790 000 kr
Nøkkelinfo
- Boligtype
- Enebolig
- Eieform
- Eier (Selveier)
- Soverom
- 2
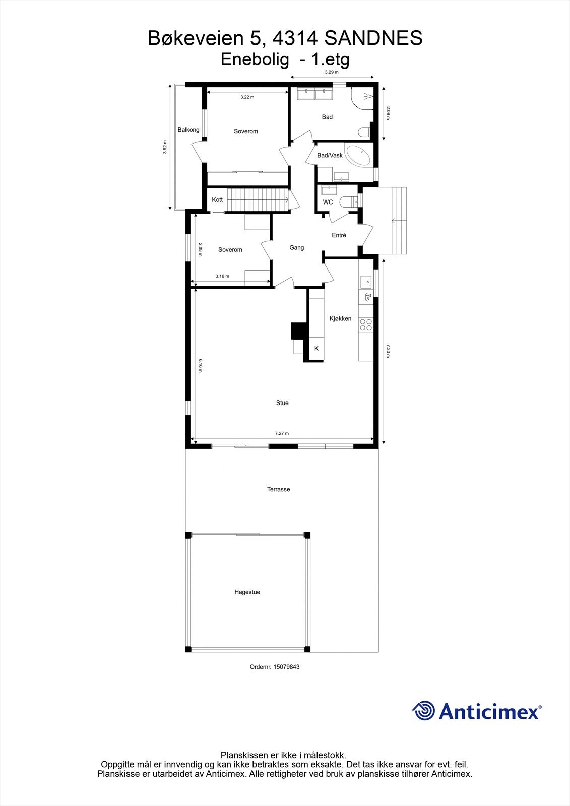
- Internt bruksareal
- 188 m² (BRA-i)
- Bruksareal
- 205 m²
- Eksternt bruksareal
- 17 m² (BRA-e)
- Balkong/Terrasse
- 40 m² (TBA)
- Byggeår
- 1980
- Energimerking
- D - Gul
- Tomteareal
- 376 m² (eiet)
Fasiliteter
Balkong/Terrasse
Barnevennlig
Garasje/P-plass
Hage
Kjæledyr tillatt
Offentlig vann/kloakk
Parkett
Peis/Ildsted
Rolig
Sentralt
Lademulighet
Visning
mandag, 23. mars
16:00 – 17:00
For å delta på visning, ber vi om at du melder deg på. Da sikrer vi at du får nødvendig informasjon og at det er satt av tilstrekkelig med tid. Kontakt megler dersom annet tidspunkt ønskes. Husk å lese salgsoppgaven før visningen, så du stiller forberedt.
Ønsker du kun å bli holdt orientert, kan du fra eiendommens hjemmeside få varsel om solgtpris, eller kontakte megler.
VisningspåmeldingOm boligen
Velkommen til Bøkeveien 5!
Dette er en velholdt enebolig med gode uteområder og en fleksibel planløsning, inkludert en underetasje med egen inngang.
Eiendommen ligger i et rolig nabolag med kort vei til Lura skole og barnehager. Fra stuen er det utgang til en stor terrasse på 36 m² med en ny hagestue fra 2024 og gode solforhold. Underetasjen har egen inngang og er innredet for utleie, men bruken er ikke omsøkt eller godkjent av kommunen.
Dette er en velholdt enebolig med gode uteområder og en fleksibel planløsning, inkludert en underetasje med egen inngang.
Eiendommen ligger i et rolig nabolag med kort vei til Lura skole og barnehager. Fra stuen er det utgang til en stor terrasse på 36 m² med en ny hagestue fra 2024 og gode solforhold. Underetasjen har egen inngang og er innredet for utleie, men bruken er ikke omsøkt eller godkjent av kommunen.
- To bad (bad i underetasjen er ikke omsøkt/godkjent), separat wc og to vaskerom
- Carport med elbillader
- Ny varmepumpe (2024)
- Nye 3-lags vinduer og terrassedør i 1. etasje
- Moderne Kvik-kjøkkeninnredning
- Ildsted i begge etasjer
- Kort avstand til Kvadrat, Ikea og Forus
Velkommen til visning!
NB: Knappen for å vise hele beskrivelsen har kun en visuell effekt.
NB: Knappen for å vise hele beskrivelsen har kun en visuell effekt.
Salgsoppgaven beskriver vesentlig og lovpålagt informasjon om eiendommen
Se komplett salgsoppgaveNyttige lenker
Nærområdet
Krogsveen Stavanger
Verdien av en god megler.
Annonseinformasjon
| FINN-kode | 455273912 |
|---|---|
| Sist endret | 14. mars 2026 07:52 |
| Referanse | KR35.26124 |
Annonsene kan være mangelfulle i forhold til lovpålagt opplysningsplikt. Før bindende avtale inngås oppfordres interessenter til å innhente komplett informasjon fra meglerforetaket, selger eller utleier.


















































