Bildegalleri

Velkommen til flotte Fredheimsveien 6, presentert av eiendomsmeglere Henning Grødem og Maiken B. Paulsen. Foto: Bjørn Kjærra
Rålekker enebolig i populært område - barnevennlig beliggenhet m/flott utsikt til sjøen | Nærhet til Ringshaugstranda.
Prisantydning8 500 000 kr
Nøkkelinfo
- Boligtype
- Enebolig
- Eieform
- Eier (Selveier)
- Soverom
- 4
- Internt bruksareal
- 169 m² (BRA-i)
- Bruksareal
- 211 m²
- Eksternt bruksareal
- 42 m² (BRA-e)
- Balkong/Terrasse
- 58 m² (TBA)
- Byggeår
- 1956
- Energimerking
- Tomteareal
- 819 m² (eiet)
Fasiliteter
Balkong/Terrasse
Barnevennlig
Garasje/P-plass
Hage
Offentlig vann/kloakk
Parkett
Peis/Ildsted
Rolig
Utsikt
Bademulighet
Fiskemulighet
Turterreng
Lademulighet
Om boligen
Fredheimsveien 6 byr på gode materialvalg med parkett og fliser, samt flott bad med varmekabler, praktisk vaskerom og et velutstyrt kjøkken fra HTH med integrerte hvitevarer. Planløsningen er fin med lyse oppholdsrom og god romutnyttelse. Eiendommen har i tillegg flott utsikt og gode utearealer. Dobbeltgarasje.
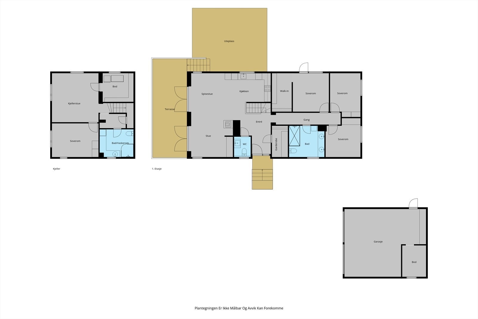
I 1. etasje finner man en romslig entré/gang som leder videre til tre soverom, bad, walk-in closet, garderobe, toalettrom samt en åpen og innbydende stue/kjøkkenløsning. I underetasjen er det blant annet to boder, bad/vaskerom, kjellerstue og soverom
Eiendommen ligger i et rolig og etablert boligområde med barnevennlig miljø, gangavstand til skoler, barnehage, buss og flotte turområder. Kort vei til populære badestrender og et bredt servicetilbud på Tolvsrød og Olsrødsenteret.
I 1. etasje finner man en romslig entré/gang som leder videre til tre soverom, bad, walk-in closet, garderobe, toalettrom samt en åpen og innbydende stue/kjøkkenløsning. I underetasjen er det blant annet to boder, bad/vaskerom, kjellerstue og soverom
Eiendommen ligger i et rolig og etablert boligområde med barnevennlig miljø, gangavstand til skoler, barnehage, buss og flotte turområder. Kort vei til populære badestrender og et bredt servicetilbud på Tolvsrød og Olsrødsenteret.
NB: Knappen for å vise hele beskrivelsen har kun en visuell effekt.
NB: Knappen for å vise hele beskrivelsen har kun en visuell effekt.
Salgsoppgaven beskriver vesentlig og lovpålagt informasjon om eiendommen
Se komplett salgsoppgaveNyttige lenker
Nærområdet
EiendomsMegler 1 Tønsberg
En del av Sparebank 1 Sør-Norge
Annonseinformasjon
| FINN-kode | 455265709 |
|---|---|
| Sist endret | 13. mars 2026 20:38 |
| Referanse | 2871260061 |
Annonsene kan være mangelfulle i forhold til lovpålagt opplysningsplikt. Før bindende avtale inngås oppfordres interessenter til å innhente komplett informasjon fra meglerforetaket, selger eller utleier.

































































