Bildegalleri

Nordvik Bolig v/Carl Åge Herrem har gleden av å presentere Gulaksveien 2! Foto: Kristine Tofte
Solgt
Mariero
Oppusset toppleilighet i 16. etasje med stor balkong, panoramautsikt og utmerkede solforhold. Nyere bad og fast parkerin
Prisantydning2 990 000 kr
Nøkkelinfo
- Boligtype
- Leilighet
- Eieform
- Andel
- Soverom
- 1
- Internt bruksareal
- 69 m² (BRA-i)
- Bruksareal
- 71 m²
- Eksternt bruksareal
- 2 m² (BRA-e)
- Etasje
- 16
- Byggeår
- 1972
- Energimerking
- Rom
- 2
- Tomteareal
- 9 681 m² (eiet)
Fasiliteter
Balkong/Terrasse
Barnevennlig
Bredbåndstilknytning
Garasje/P-plass
Heis
Kabel-TV
Offentlig vann/kloakk
Rolig
Sentralt
Utsikt
Vaktmester-/vektertjeneste
Turterreng
Lademulighet
Om boligen
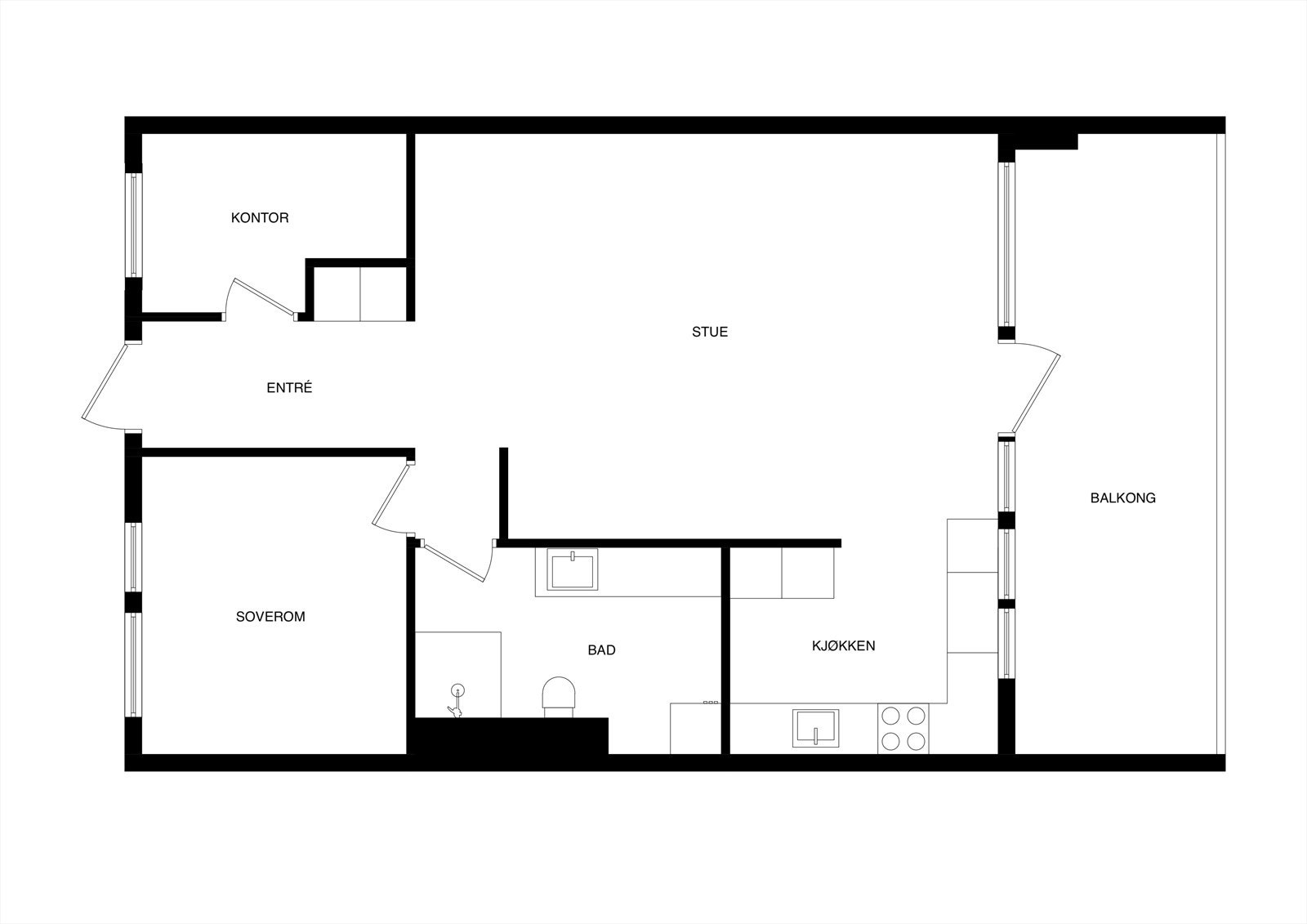
Gulaksveien 2 er en attraktiv leilighet beliggende i et veletablert boligområde på Hillevåg. Leiligheten er modernisert med oppgraderte overflater i alle rom. Den har en praktisk og funksjonell planløsning som gir god utnyttelse av arealet og en behagelig flyt mellom rommene. Beliggenheten gir enkel tilgang til både servicetilbud, kollektivtransport og rekreasjonsområder.
- Leiligheten ligger i byggets toppetasje
- Fantastisk utsikt over nærområdet med sjø og fjell i horisonten
- Gjennomgående høy standard
- Lys stue med utgang til balkong
- Kjøkkeninnredning fra 2020 i svart utførelse
- Lekkert bad renovert i 2023 i regi av borettslaget
- Romslig soverom
- Innvendig bod som er innredet med kontorløsning
- Fast utendørs parkering
- Ekstern bod i 1.etasje
NB: Knappen for å vise hele beskrivelsen har kun en visuell effekt.
NB: Knappen for å vise hele beskrivelsen har kun en visuell effekt.
Salgsoppgaven beskriver vesentlig og lovpålagt informasjon om eiendommen
Se komplett salgsoppgaveNyttige lenker
Nærområdet
Nordvik Stavanger
Vi vet hva det er verdt
Annonseinformasjon
| FINN-kode | 455260768 |
|---|---|
| Sist endret | 27. mars 2026 12:19 |
| Referanse | 43-0053/26 |
Annonsene kan være mangelfulle i forhold til lovpålagt opplysningsplikt. Før bindende avtale inngås oppfordres interessenter til å innhente komplett informasjon fra meglerforetaket, selger eller utleier.



































