Bildegalleri

Velkommen til Veldromsenga 1! Foto: Jonas Hasselgren for Efkt
Byflaten
Enebolig med 4 sov. og modernisert kjelleretasje fra 2022 | Store terrasser og flott utsikt | Uthus på tomten
Prisantydning3 290 000 kr
Nøkkelinfo
- Boligtype
- Enebolig
- Eieform
- Selveier
- Soverom
- 4
- Internt bruksareal
- 183 m² (BRA-i)
- Bruksareal
- 183 m²
- Balkong/Terrasse
- 78 m² (TBA)
- Byggeår
- 1972
- Energimerking
- Tomteareal
- 937 m² (eiet)
Visning
onsdag, 08. april
16:30 – 17:30
Ønsker du å delta på visningen ber vi deg melde deg på slik at vi vet at du kommer. Da kan vi bistå alle best mulig og gi deg tiden du trenger på visningen. Visningen avholdes bare dersom det er påmeldte. Ta gjerne kontakt med megler før visning hvis du har noen spørsmål. Velkommen!
VisningspåmeldingOm boligen
Velkommen til Veldromsenga 1! Innholdsrik, godt vedlikeholdt og pent oppusset enebolig med praktisk planløsning over 2 plan - Flott utsikt!
Boligen har en fin beliggenhet i et familievennlig område gangavstand til Kirkekretsen skole og Veldre barnehage.
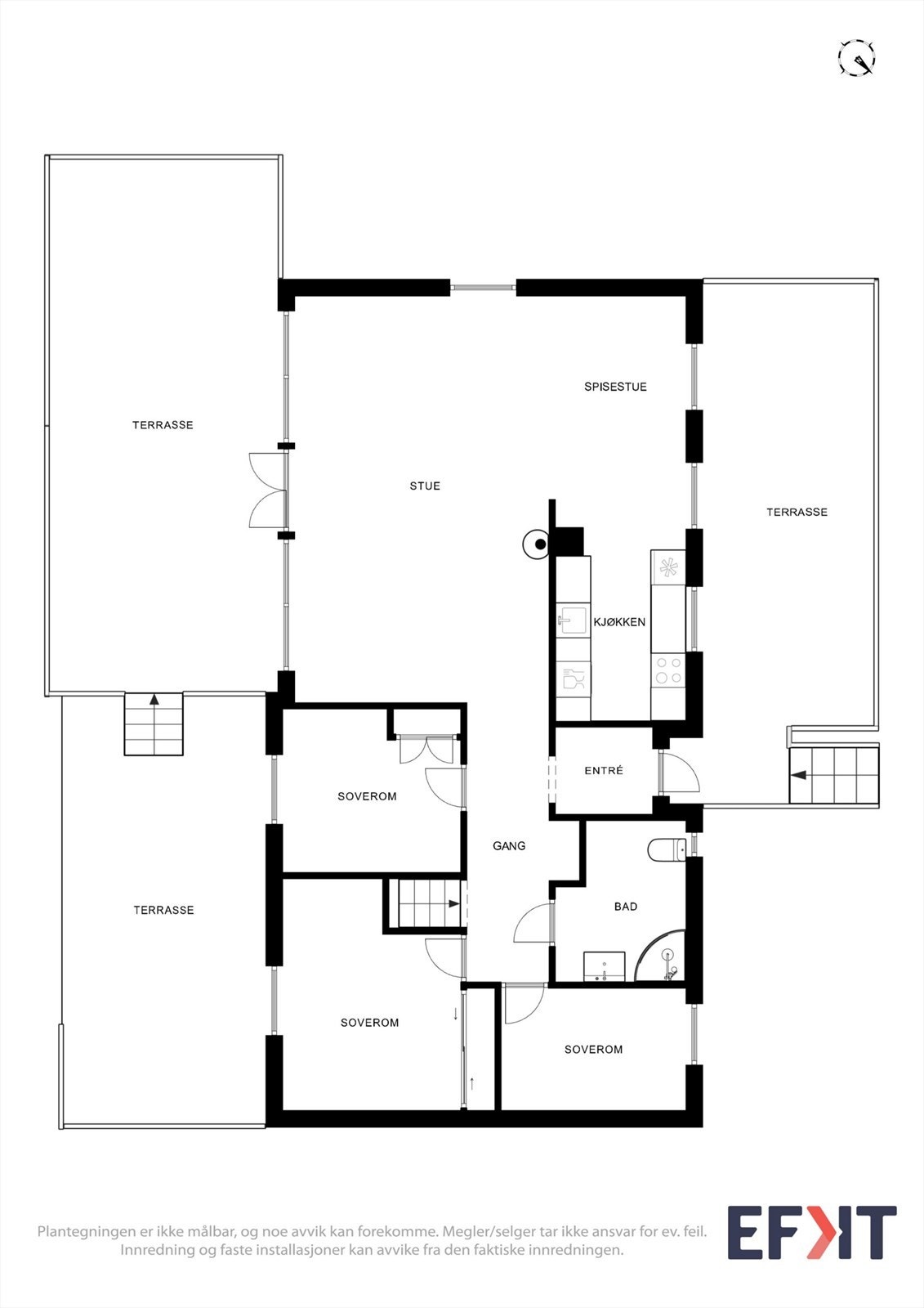
Første etasje består bl.a. av 3 soverom, pent bad, kjøkken fra 2014 med åpen løsning til stue. Stuen ble også pusset opp i 2014 og har flere store vindusflater som gir godt med lysinnslipp. Her nyter man godt av utsikten mot Brumunddal og Mjøsa!
Kjelleren ble ombygd og innredet i 2022, og inneholder en moderne kjellerstue, kontor, bod og et fjerde soverom. Det er gulvvarme i flere rom som gir økt komfort. I kjelleren er det også mulighet for innredning av vaskerom.
Vel møtt til en hyggelig visning!
Boligen har en fin beliggenhet i et familievennlig område gangavstand til Kirkekretsen skole og Veldre barnehage.
Første etasje består bl.a. av 3 soverom, pent bad, kjøkken fra 2014 med åpen løsning til stue. Stuen ble også pusset opp i 2014 og har flere store vindusflater som gir godt med lysinnslipp. Her nyter man godt av utsikten mot Brumunddal og Mjøsa!
Kjelleren ble ombygd og innredet i 2022, og inneholder en moderne kjellerstue, kontor, bod og et fjerde soverom. Det er gulvvarme i flere rom som gir økt komfort. I kjelleren er det også mulighet for innredning av vaskerom.
Vel møtt til en hyggelig visning!
NB: Knappen for å vise hele beskrivelsen har kun en visuell effekt.
NB: Knappen for å vise hele beskrivelsen har kun en visuell effekt.
Salgsoppgaven beskriver vesentlig og lovpålagt informasjon om eiendommen
Se komplett salgsoppgaveNyttige lenker
Nærområdet
EiendomsMegler 1 Brumunddal
Vi loser deg trygt gjennom hele boligsalget
Annonseinformasjon
| FINN-kode | 455254230 |
|---|---|
| Sist endret | 30. mars 2026 06:20 |
| Referanse | 6011260036 |
Annonsene kan være mangelfulle i forhold til lovpålagt opplysningsplikt. Før bindende avtale inngås oppfordres interessenter til å innhente komplett informasjon fra meglerforetaket, selger eller utleier.




































