Bildegalleri

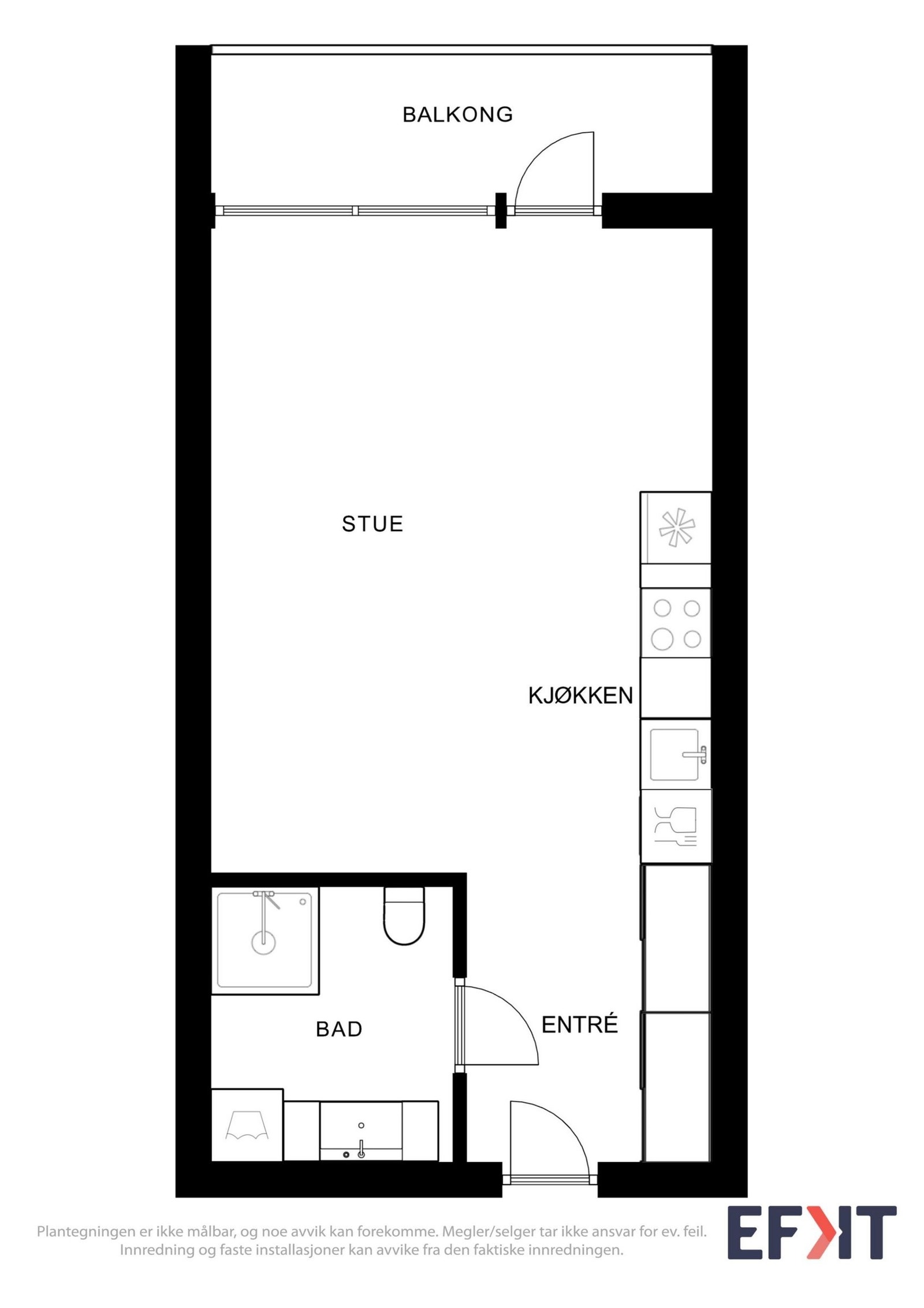
Leiligheten har en åpen og sosial planløsning med direkte utgang til balkong
Sentralt i Lillestrøm, lekker selveierleilighet i 5. etasje med balkong. Fra 2023 - Flytt rett inn
Nøkkelinfo
- Boligtype
- Leilighet
- Eieform
- Eier (Selveier)
- Internt bruksareal
- 33 m² (BRA-i)
- Bruksareal
- 72 m²
- Eksternt bruksareal
- 36 m² (BRA-e)
- Innglasset balkong
- 3 m² (BRA-b)
- Etasje
- 5
- Byggeår
- 2023
- Tomteareal
- 953 m² (eiet)
Fasiliteter
Beliggenhet
Vi har gleden av å presentere delikat 1 - roms leilighet i 5. etasje på Landstads gate 60!
Delikat 1 roms leilighet i 5. etasje med balansert ventilasjonsanlegg, vannbåren varme og ikke minst god beliggenheten, er leiligheten perfekt for deg/ dere som ønsker å ha kort vei til tog, mattbutikk, kino , treningssenter og mye midt i Lillestrøm.
Leiligheten har en en god planløsning med romslig stue/kjøkkenløsning, herfra er det utgang til en fin balkong, og ved entreen har du delikat og lekkert bad.
Bygget har heis, felles takterasse. Leiligheten har en arealeffektiv planløsning som utnytter hver kvdratmeter maksimalt.
Det er 3 - stavs lys parkett på gulvet ( (Haro 4000 TC), og himling er holdt lyse. Badet har lekre fliser og innredning, samt regnfalssdusj og opplegg for vaskemaksin. Tilknyttet kjøkkenet er det garderobeskap, i tilegg har du praktisk kjellerbod.
Kort fortalt:
- Svært sentralt i Lillestrøm og ny fra 2023
- Perfekt for førstegangskjøp eller leilighet for utleie.
- Lave felleskostnader
- Gode oppbevaringsmuligheter
- Sørvestvendt balkong
- Vannbåren gulvvarmet
- Bod i kjeller på 2.5 kvm
Annet
Det er ingen forkjøpsrett på boligen. Om du ikke har mulighet til å komme på visning, holder jeg gjerne privatvisning. Ta kontakt, så finner vi en tid. J
Omkostninger
10 900 kr (HELP boligkjøperforsikring (valgfritt))
92 500 kr (Dokumentavgift)
545 kr (Tinglysing av pantedokument)
545 kr (Tinglysing av skjøte)
---
104 490 kr (Omkostninger totalt)
---
3 804 490 kr (Totalpris inkl. omkostninger)
NB: Regnestykket forutsetter at det kun tinglyses én låneobligasjon og at eiendommen selges til prisantydning.
Det tas forbehold om endringer i offentlige og private gebyrer.
Selger er selv ansvarlig for følgende gebyr:
6 725 kr (Eierskiftegebyr)
545 kr (Panterett med urådighet)
Salgsoppgaven beskriver vesentlig og lovpålagt informasjon om eiendommen
Se komplett salgsoppgaveNyttige lenker
Nærområdet
Annonsene kan være mangelfulle i forhold til lovpålagt opplysningsplikt. Før bindende avtale inngås oppfordres interessenter til å innhente komplett informasjon fra meglerforetaket, selger eller utleier.























