Bildegalleri

Nordvik Eiendomsmegling v/Christoffer Kvalshaugen ønsker deg velkommen til Tjøllinggaten 41. Foto: Fotograf Magik
Træleborg
Træleborg - Lekker 2-roms m/vestvendt balkong og fantastiske solforhold! Renovert bad (2020) og moderne kjøkken (2022)
Prisantydning2 350 000 kr
Nøkkelinfo
- Boligtype
- Leilighet
- Eieform
- Andel
- Soverom
- 1
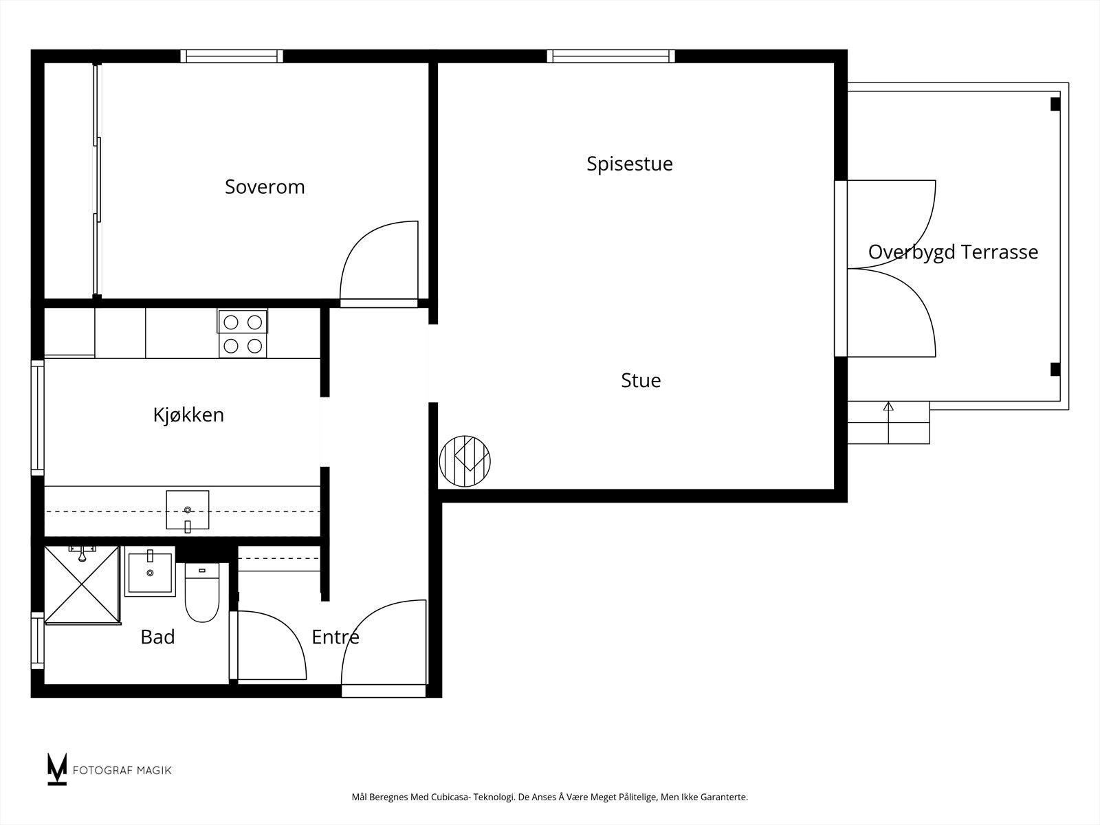
- Internt bruksareal
- 57 m² (BRA-i)
- Bruksareal
- 73 m²
- Eksternt bruksareal
- 16 m² (BRA-e)
- Balkong/Terrasse
- 8 m² (TBA)
- Etasje
- 1
- Byggeår
- 1961
- Energimerking
- Rom
- 2
- Tomteareal
- 4 458 m² (eiet)
Fasiliteter
Balkong/Terrasse
Barnevennlig
Bredbåndstilknytning
Fellesvaskeri
Garasje/P-plass
Ingen gjenboere
Kabel-TV
Offentlig vann/kloakk
Peis/Ildsted
Rolig
Sentralt
Lademulighet
Visning
torsdag, 19. mars
17:00 – 17:45
Alle våre visninger har påmelding. På denne måten sikrer vi at megler har god oversikt og tid til å imøtekomme alle interessenter. Meld deg på visning ved å trykke på lenken visningspåmelding.
VisningspåmeldingOm boligen
Velkommen til en stilfull og betydelig oppgradert 2-roms andelsleilighet med en svært sentral beliggenhet på Træleborg!
Leiligheten er påkostet med et delikat bad som ble totalrenovert i regi av borettslaget i 2020. I 2022 ble kjøkkenet modernisert, og det er lagt nye gulv og lister i store deler av boligen for et helhetlig, moderne uttrykk. Her kan du flytte rett inn i lyse og luftige rom med tidsriktige fargevalg.
Høydepunktet er den vestvendte balkongen hvor solen kan nytes fra formiddagen helt til sent på kvelden. Leiligheten har en praktisk planløsning og svært gode lagringsmuligheter med hele tre boder. Beliggenheten er ideell for deg som ønsker nærhet til Tønsberg sentrum, Brygga og flotte rekreasjonsområder ved sjøen.
Velkommen til en hyggelig visning!
Leiligheten er påkostet med et delikat bad som ble totalrenovert i regi av borettslaget i 2020. I 2022 ble kjøkkenet modernisert, og det er lagt nye gulv og lister i store deler av boligen for et helhetlig, moderne uttrykk. Her kan du flytte rett inn i lyse og luftige rom med tidsriktige fargevalg.
Høydepunktet er den vestvendte balkongen hvor solen kan nytes fra formiddagen helt til sent på kvelden. Leiligheten har en praktisk planløsning og svært gode lagringsmuligheter med hele tre boder. Beliggenheten er ideell for deg som ønsker nærhet til Tønsberg sentrum, Brygga og flotte rekreasjonsområder ved sjøen.
Velkommen til en hyggelig visning!
NB: Knappen for å vise hele beskrivelsen har kun en visuell effekt.
NB: Knappen for å vise hele beskrivelsen har kun en visuell effekt.
Salgsoppgaven beskriver vesentlig og lovpålagt informasjon om eiendommen
Se komplett salgsoppgaveNyttige lenker
Nærområdet
Nordvik Tønsberg
Annonseinformasjon
| FINN-kode | 455251619 |
|---|---|
| Sist endret | 14. mars 2026 12:19 |
| Referanse | 25-0027/26 |
Annonsene kan være mangelfulle i forhold til lovpålagt opplysningsplikt. Før bindende avtale inngås oppfordres interessenter til å innhente komplett informasjon fra meglerforetaket, selger eller utleier.




































