Bildegalleri

Velkommen til Skogveien 6
BJUGN
Stor enebolig på 275 kvm | Sjøutsikt | Sentralt og barnevennlig | 4 soverom - 2 stuer - 2 bad | Garasje | Stor tomt |
Prisantydning4 950 000 kr
Nøkkelinfo
- Boligtype
- Enebolig
- Eieform
- Eier (Selveier)
- Soverom
- 4
- Internt bruksareal
- 229 m² (BRA-i)
- Bruksareal
- 275 m²
- Eksternt bruksareal
- 46 m² (BRA-e)
- Balkong/Terrasse
- 78 m² (TBA)
- Byggeår
- 1967
- Energimerking
- D - Gul
- Rom
- 4
- Tomteareal
- 1 309 m² (eiet)
Fasiliteter
Barnevennlig
Balkong/Terrasse
Garasje/P-plass
Offentlig vann/kloakk
Parkett
Peis/Ildsted
Turterreng
Utsikt
Sentralt
Bredbåndstilknytning
Moderne
Rolig
Visning
tirsdag, 24. mars
16:30 – 17:30
Våre visninger har påmelding. Dette gjør vi for å kunne yte bedre service for våre kunder. Verdifullt for boligkjøper og for oss. Vi anbefaler at salgsoppgaven lastes ned digitalt før visning, og ring oss gjerne på forhånd for spørsmål om boligen. Passer ikke angitt tidspunkt, ta kontakt så finner vi en løsning. Skulle det mot formodning ikke være påmeldte til angitt visningstidspunkt vil ikke visning bli gjennomført.
Om boligen
Sentralt beliggende enebolig i etablert boområde i Bjugn. Meget rolig og barnevennlig beliggenhet med gangavstand til skoler i alle alderstrinn, barnehage og fritidsaktiviteter. Eiendommen ligger flott til med sjøutsikt mot Bjugnfjorden og har meget gode solforhold.
Boligen ble opprinnelig oppført i 1967 og senere påbygd i 1996 og 2012. Boligen ble nærmest totalrenovert i perioden 2002 til 2012. Boligen fremstår som godt vedlikeholdt og modernisert.
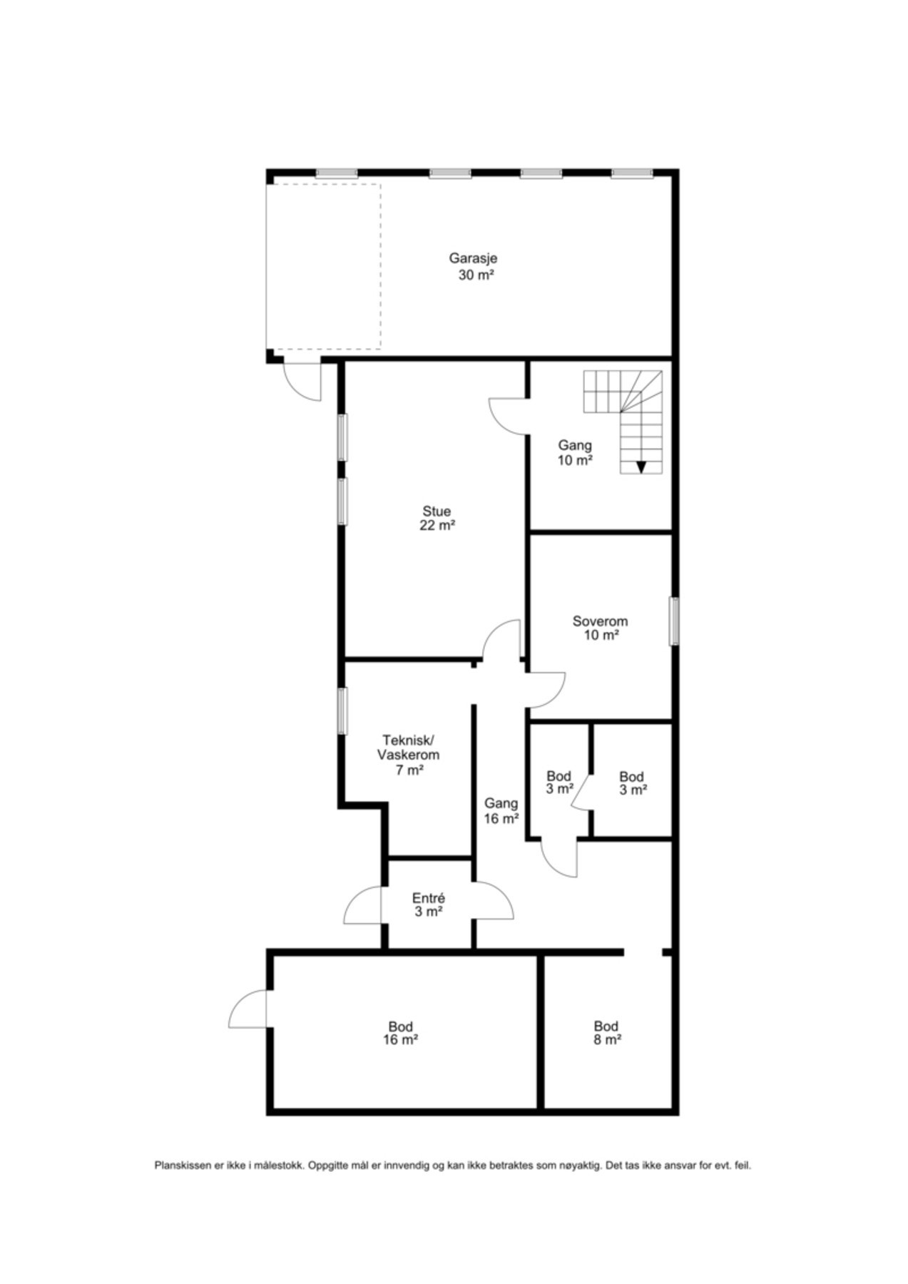
Boligen har følgende romløsning:
1. etasje: Entre, gang, stue, kjøkken, bod, bad og tre soverom
Sokkel: Entre, gang, stue, soverom, gang/trapperom og vaskerom/ teknisk rom, tre boder og garasje.
Tomten er på 1 309 kvm og boligen er sentrert på tomten. Det er store arealer på baksiden av boligen med stort potensiale.
Velkommen på visning!
Boligen ble opprinnelig oppført i 1967 og senere påbygd i 1996 og 2012. Boligen ble nærmest totalrenovert i perioden 2002 til 2012. Boligen fremstår som godt vedlikeholdt og modernisert.
Boligen har følgende romløsning:
1. etasje: Entre, gang, stue, kjøkken, bod, bad og tre soverom
Sokkel: Entre, gang, stue, soverom, gang/trapperom og vaskerom/ teknisk rom, tre boder og garasje.
Tomten er på 1 309 kvm og boligen er sentrert på tomten. Det er store arealer på baksiden av boligen med stort potensiale.
Velkommen på visning!
NB: Knappen for å vise hele beskrivelsen har kun en visuell effekt.
NB: Knappen for å vise hele beskrivelsen har kun en visuell effekt.
Salgsoppgaven beskriver vesentlig og lovpålagt informasjon om eiendommen
Se komplett salgsoppgaveNyttige lenker
Nærområdet
EiendomsMegler 1 Fosen
Vi loser deg trygt gjennom hele boligsalget
Annonseinformasjon
| FINN-kode | 455247595 |
|---|---|
| Sist endret | 16. mars 2026 12:54 |
| Referanse | 43260003 |
Annonsene kan være mangelfulle i forhold til lovpålagt opplysningsplikt. Før bindende avtale inngås oppfordres interessenter til å innhente komplett informasjon fra meglerforetaket, selger eller utleier.














































