Bildegalleri

Sigrid Seim v/DnB Eiendom har gleden av å presentere Nåkkves vei 5!
Toppleilighet på Tveita
Lys og pen 2-roms toppleilighet med fantastisk utsikt | Kjøkken fra 2024 | Heis | Felles takterrasse | Vv & fyring inkl
Prisantydning3 690 000 kr
Nøkkelinfo
- Boligtype
- Leilighet
- Eieform
- Andel
- Soverom
- 1
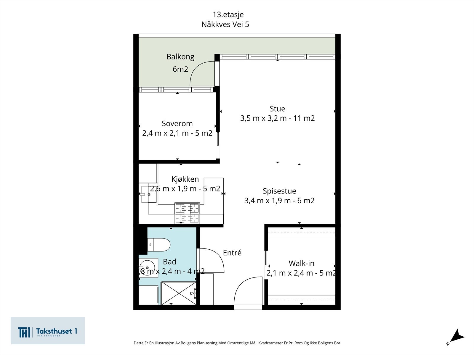
- Internt bruksareal
- 43 m² (BRA-i)
- Bruksareal
- 46 m²
- Eksternt bruksareal
- 3 m² (BRA-e)
- Balkong/Terrasse
- 6 m² (TBA)
- Etasje
- 13
- Byggeår
- 1969
- Rom
- 2
- Tomteareal
- 34 951 m² (eiet)
Fasiliteter
Takterrasse
Balkong/Terrasse
Bredbåndstilknytning
Fellesvaskeri
Garasje/P-plass
Heis
Kjæledyr tillatt
Ingen gjenboere
Kabel-TV
Offentlig vann/kloakk
Rolig
Sentralt
Utsikt
Turterreng
Visning
søndag, 22. mars
12:00 – 13:00
Velkommen til visning! Meld deg på ved å trykke "visningspåmelding" i våre boligannonser. Ta gjerne kontakt med megler i forkant av visningen om du har spørsmål.
VisningspåmeldingOm boligen
DNB Eiendom v/Sigrid Seim presenterer en lys og pen utsiktsleilighet i byggets 13. etasje. Leiligheten ligger høyt og fritt til på Tveita, med gangavstand til alle fasiliteter og servicetilbud. Det er kort vei til flotte turområder i Østmarka og T-banen. Leiligheten har en arealeffektiv planløsning og består av entré med tilgang til innvendig bod, stue og kjøkken i delvis åpen løsning, soverom og flislagt bad rehabilitert i regi av borettslaget. Fra stuen er det utgang til fantastisk balkong med gode sol- og utsiktsforhold.
- Heis
- Nymalt 2025
- Felles takterrasse
- Toppleilighet i 13. etasje
- Walk-in closet
- Moderne kjøkken fra 2024
- Oppgradert elektrisk anlegg 25/26
- 3 min gange til T-bane og senter
- Varmtvann, fyring og TV/internett inkl.
- Parkering
- Heis
- Nymalt 2025
- Felles takterrasse
- Toppleilighet i 13. etasje
- Walk-in closet
- Moderne kjøkken fra 2024
- Oppgradert elektrisk anlegg 25/26
- 3 min gange til T-bane og senter
- Varmtvann, fyring og TV/internett inkl.
- Parkering
NB: Knappen for å vise hele beskrivelsen har kun en visuell effekt.
NB: Knappen for å vise hele beskrivelsen har kun en visuell effekt.
Salgsoppgaven beskriver vesentlig og lovpålagt informasjon om eiendommen
Se komplett salgsoppgaveNyttige lenker
Nærområdet
DNB Eiendom AS
Verdifulle salg
Annonseinformasjon
| FINN-kode | 455245805 |
|---|---|
| Sist endret | 15. mars 2026 08:29 |
| Referanse | 324260043 |
Annonsene kan være mangelfulle i forhold til lovpålagt opplysningsplikt. Før bindende avtale inngås oppfordres interessenter til å innhente komplett informasjon fra meglerforetaket, selger eller utleier.





































