Bildegalleri

Velkommen til Østmarkveien 6F, en innbydende 2-roms leilighet med attraktiv beliggenhet på Lade!
Lade
Romslig 2-roms endeleilighet - Svært god beliggenhet i borettslaget - Alt inkludert i felleskostnadene - Garasjekjeller
Prisantydning2 290 000 kr
Nøkkelinfo
- Boligtype
- Leilighet
- Eieform
- Andel
- Soverom
- 1
- Internt bruksareal
- 40 m² (BRA-i)
- Bruksareal
- 45 m²
- Eksternt bruksareal
- 5 m² (BRA-e)
- Balkong/Terrasse
- 9 m² (TBA)
- Etasje
- 1
- Byggeår
- 2005
- Energimerking
- E - Mørkegrønn
- Rom
- 2
- Tomteareal
- 10 171 m² (eiet)
Fasiliteter
Barnevennlig
Balkong/Terrasse
Garasje/P-plass
Kabel-TV
Heis
Offentlig vann/kloakk
Turterreng
Vaktmester-/vektertjeneste
Sentralt
Bredbåndstilknytning
Moderne
Rolig
Visning
tirsdag, 24. mars
15:30 – 16:30
Våre visninger har påmelding. Dette gjør vi for å kunne yte bedre service for våre kunder. Verdifullt for boligkjøper og for oss. Vi anbefaler at salgsoppgaven lastes ned digitalt før visning, og ring oss gjerne på forhånd for spørsmål om boligen. Passer ikke angitt tidspunkt, ta kontakt så finner vi en løsning. Skulle det mot formodning ikke være påmeldte til angitt visningstidspunkt vil ikke visning bli gjennomført.
Om boligen
Velkommen til Østmarkveien 6F, en innbydende 2-roms leilighet med attraktiv beliggenhet på Lade!
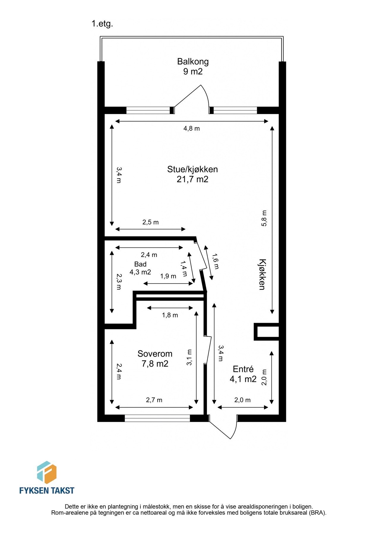
Boligen er på totalt 40 kvm (BRA-i) og består av entré, bad, kjøkken, stue og et soverom. Boligen disponerer også bod og parkering i borettslagets kjeller. Fra stuen er det utgang til leilighetens balkong som måler 9 kvm. Boligen ligger svært godt til i borettslaget, på enden av et avsidesliggende bygg med bare 5 andre leiligheter.
Leilighet ligger sentralt til på Lade og har flere service fasiliteter like i nærhet. Noen få meter fra boligen finner man Ladetorget med både dagligvare, apotek, Cafe, restaurant, kiosk m.m. Ladestien er også like i nærheten som tar deg til flere av Trondheims mest populære badeplasser.
Kort oppsummert:
- Bod og fast parkeringsplass i oppvarmet garasjekjeller.
- Romslig sydvest-vendt balkong.
- God planløsning.
- Nærhet til "alt".
- Svært gode kollektivforbindelser med hyppige avganger.
- Godt driftet borettslag med vaktmestertjenester og uten fellesplikter.
Boligen er på totalt 40 kvm (BRA-i) og består av entré, bad, kjøkken, stue og et soverom. Boligen disponerer også bod og parkering i borettslagets kjeller. Fra stuen er det utgang til leilighetens balkong som måler 9 kvm. Boligen ligger svært godt til i borettslaget, på enden av et avsidesliggende bygg med bare 5 andre leiligheter.
Leilighet ligger sentralt til på Lade og har flere service fasiliteter like i nærhet. Noen få meter fra boligen finner man Ladetorget med både dagligvare, apotek, Cafe, restaurant, kiosk m.m. Ladestien er også like i nærheten som tar deg til flere av Trondheims mest populære badeplasser.
Kort oppsummert:
- Bod og fast parkeringsplass i oppvarmet garasjekjeller.
- Romslig sydvest-vendt balkong.
- God planløsning.
- Nærhet til "alt".
- Svært gode kollektivforbindelser med hyppige avganger.
- Godt driftet borettslag med vaktmestertjenester og uten fellesplikter.
NB: Knappen for å vise hele beskrivelsen har kun en visuell effekt.
NB: Knappen for å vise hele beskrivelsen har kun en visuell effekt.
Salgsoppgaven beskriver vesentlig og lovpålagt informasjon om eiendommen
Se komplett salgsoppgaveNyttige lenker
Nærområdet
EiendomsMegler 1 Lade og Lilleby
Vi loser deg trygt gjennom hele boligsalget
Annonseinformasjon
| FINN-kode | 455244935 |
|---|---|
| Sist endret | 16. mars 2026 16:37 |
| Referanse | 36250067 |
Annonsene kan være mangelfulle i forhold til lovpålagt opplysningsplikt. Før bindende avtale inngås oppfordres interessenter til å innhente komplett informasjon fra meglerforetaket, selger eller utleier.
































