Bildegalleri

Lys og trivelig stue av god størrelse, med store vindusflater og utgang til en romslig, overbygget balkong.
Porsgrunn
Tiltalende 3- roms - Vestvendt og solrik balkong m/fint utsyn - Kort vei til sentrum og USN - Mye inkl. i felleskost!
Prisantydning2 150 000 kr
Nøkkelinfo
- Boligtype
- Leilighet
- Eieform
- Andel
- Soverom
- 2
- Internt bruksareal
- 68 m² (BRA-i)
- Bruksareal
- 75 m²
- Eksternt bruksareal
- 7 m² (BRA-e)
- Balkong/Terrasse
- 9 m² (TBA)
- Etasje
- 3
- Byggeår
- 1956
- Energimerking
- Rom
- 3
- Tomteareal
- 4 237 m² (eiet)
Fasiliteter
Balkong/Terrasse
Kabel-TV
Offentlig vann/kloakk
Peis/Ildsted
Rolig
Sentralt
Utsikt
Turterreng
Visning
onsdag, 25. mars
16:00 – 17:00
Ønsker du å delta på visning så ber vi om at du melder deg på slik at vi vet at du kommer og slik at vi kan orientere deg om bud. Visninger hvor det ikke er påmeldte på forhånd vil ikke bli avholdt.
VisningspåmeldingOm boligen
Her kan du bo sentralt til på populære Hovenga! Borettslaget har store grøntarealer og det er kort vei til naturen med bl.a. Bymarka, Valleråsen og Borgeåsen, med store løypenett og flere flotte utkikksposter. På Hovengasenteret finner du det du trenger til det daglige, og det er kun noen minutter gange inn til sentrum med alle byens fasiliteter, kultur- og servicetilbud. I tillegg til treningssentrene i byen ligger Kjølnes området like ved med flere aktivitetsmuligheter.
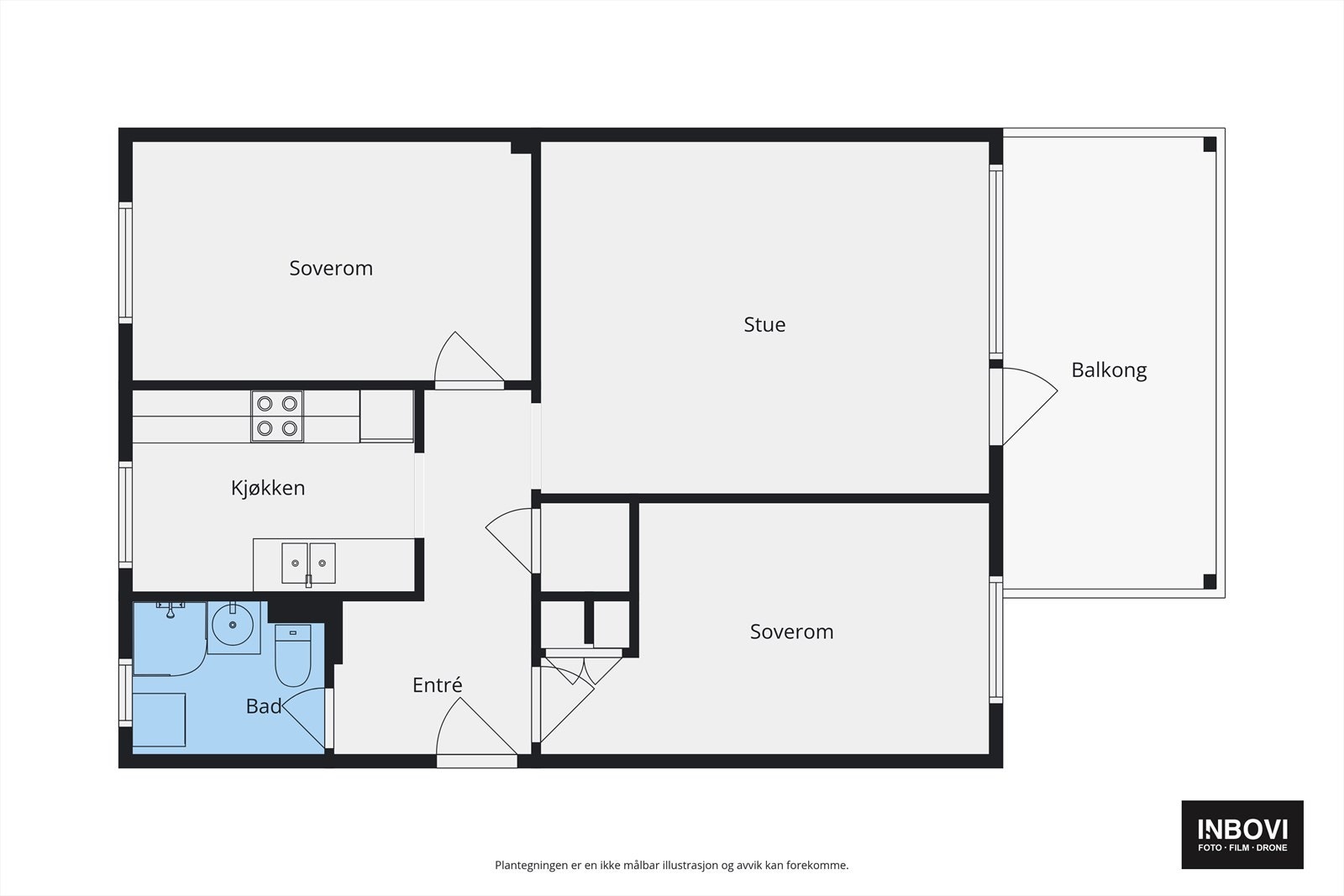
Leiligheten ligger høyt og fint til i 3. etg. i blokken med vestvendt overbygget balkong med fin utsikt. Den innehar entré, stue, kjøkken, to soverom og bad. God lagringsplass i boder på loft og i kjeller. Tilgang til EL bil-lader. Flytt rett inn!
Leiligheten ligger høyt og fint til i 3. etg. i blokken med vestvendt overbygget balkong med fin utsikt. Den innehar entré, stue, kjøkken, to soverom og bad. God lagringsplass i boder på loft og i kjeller. Tilgang til EL bil-lader. Flytt rett inn!
NB: Knappen for å vise hele beskrivelsen har kun en visuell effekt.
NB: Knappen for å vise hele beskrivelsen har kun en visuell effekt.
Salgsoppgaven beskriver vesentlig og lovpålagt informasjon om eiendommen
Se komplett salgsoppgaveNyttige lenker
Nærområdet
EiendomsMegler 1 Skien
et foretak i SpareBank 1 Sør-Norge konsernet
Annonseinformasjon
| FINN-kode | 455241728 |
|---|---|
| Sist endret | 16. mars 2026 13:21 |
| Referanse | 1410260084 |
Annonsene kan være mangelfulle i forhold til lovpålagt opplysningsplikt. Før bindende avtale inngås oppfordres interessenter til å innhente komplett informasjon fra meglerforetaket, selger eller utleier.




































