Bildegalleri

PrivatMegleren | Askeveien 2B
Skøyen
Attraktiv endeleilighet med trappefri adkomst | 30 m² terrasse | Moderne, lyst og velholdt | Garasjeplass | Peis
Prisantydning9 950 000 kr
Nøkkelinfo
- Boligtype
- Leilighet
- Eieform
- Eier (Selveier)
- Soverom
- 2
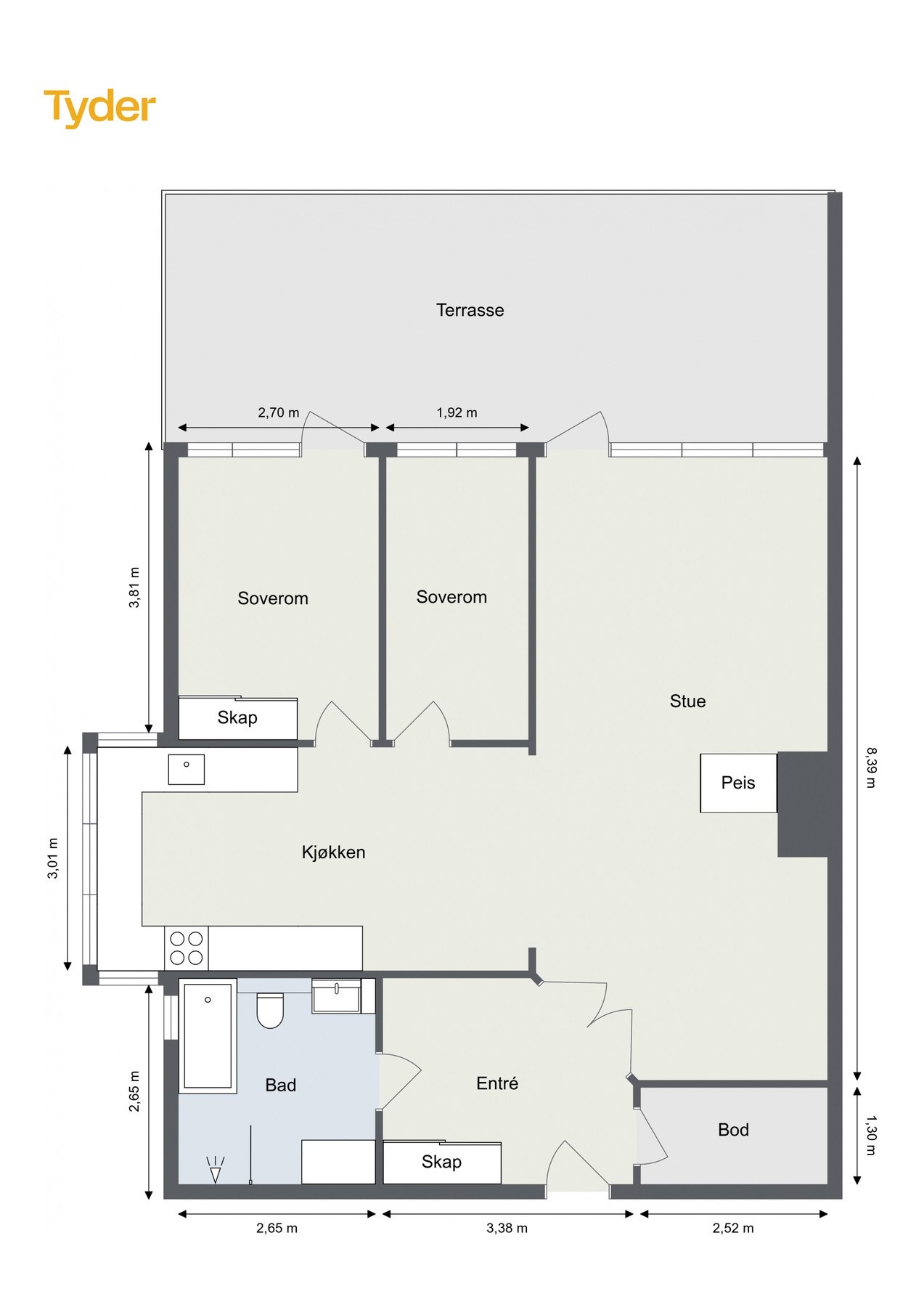
- Internt bruksareal
- 89 m² (BRA-i)
- Bruksareal
- 95 m²
- Eksternt bruksareal
- 6 m² (BRA-e)
- Balkong/Terrasse
- 30 m² (TBA)
- Etasje
- 2
- Byggeår
- 1982
- Energimerking
- G - Rød
- Rom
- 3
- Tomteareal
- 2 090 m² (eiet)
Fasiliteter
Balkong/Terrasse
Garasje/P-plass
Kabel-TV
Offentlig vann/kloakk
Parkett
Peis/Ildsted
Turterreng
Utsikt
Sentralt
Bredbåndstilknytning
Moderne
Rolig
Lademulighet
Visning
søndag, 22. mars
mandag, 23. mars
17:00 – 18:00
Velkommen til visning!
Alle våre visninger har påmelding. På denne måten sikrer vi at megler har god oversikt og tid til å imøtekomme alle interessenter på beste måte. Dette er veldig verdifullt for boligkjøpere og for oss. Det er enkelt å melde seg på, og du kan like enkelt melde deg av. Kontakt også gjerne megler i forkant av visning dersom du har spørsmål.
Om boligen
Boligen oppleves åpen, lys og velholdt, den ligger luftig og godt skjermet i 2. etasje med trappefri adkomst via forentré som deles med én god nabo. En sydvendt, flislagt terrasse på ca. 30 m² gir en naturlig forlengelse av boligens totale opplevelse gjennom sommerhalvåret.
Planløsningen er åpen og oversiktlig, med en god flyt mellom kjøkken, oppholdsrom, soverom og stue. Peisen med glass på tre sider skaper en lun ramme. Boligen ble oppgradert i 2019 med nytt kjøkken med integrerte hvitevarer, delvis nytt elektrisk anlegg, nye innerdører samt ny 1-stavs eikeparkett. Det er lagt varmefolie på kjøkken og i deler av stue/spisestue.
Det medfølger garasjeplass i lukket anlegg med trappefri adkomst og mulighet for etablering av elbillader. Sameiet består av 20 seksjoner, er veldrevet og uten fellesgjeld.
Karenslyst allé ligger rett rundt hjørnet med et bredt utvalg av butikker, serveringssteder og servicetilbud. Frognerparken, Frognerkilen og Bygdøy sjøbad innen kort avstand.
Velkommen.
Planløsningen er åpen og oversiktlig, med en god flyt mellom kjøkken, oppholdsrom, soverom og stue. Peisen med glass på tre sider skaper en lun ramme. Boligen ble oppgradert i 2019 med nytt kjøkken med integrerte hvitevarer, delvis nytt elektrisk anlegg, nye innerdører samt ny 1-stavs eikeparkett. Det er lagt varmefolie på kjøkken og i deler av stue/spisestue.
Det medfølger garasjeplass i lukket anlegg med trappefri adkomst og mulighet for etablering av elbillader. Sameiet består av 20 seksjoner, er veldrevet og uten fellesgjeld.
Karenslyst allé ligger rett rundt hjørnet med et bredt utvalg av butikker, serveringssteder og servicetilbud. Frognerparken, Frognerkilen og Bygdøy sjøbad innen kort avstand.
Velkommen.
NB: Knappen for å vise hele beskrivelsen har kun en visuell effekt.
NB: Knappen for å vise hele beskrivelsen har kun en visuell effekt.
Salgsoppgaven beskriver vesentlig og lovpålagt informasjon om eiendommen
Se komplett salgsoppgaveNyttige lenker
Nærområdet
PrivatMegleren Bærum
Kun det beste på dine vegne
Annonsene kan være mangelfulle i forhold til lovpålagt opplysningsplikt. Før bindende avtale inngås oppfordres interessenter til å innhente komplett informasjon fra meglerforetaket, selger eller utleier.






































