Bildegalleri

Velkommen til Kjelsåsveien 70B - Bildet er KI-generert for å illustrere sommerforhold.
Grefsen
Innholdsrik enebolig | Godkjent hybel 16.000 kr/mnd | 6 soverom | Solrik tomt, stor terrasse og parkering m/lader
Prisantydning21 500 000 kr
Nøkkelinfo
- Boligtype
- Enebolig
- Eieform
- Selveier
- Soverom
- 6
- Internt bruksareal
- 269 m² (BRA-i)
- Bruksareal
- 269 m²
- Eksternt bruksareal
- 7 m² (BRA-e)
- Balkong/Terrasse
- 43 m² (TBA)
- Byggeår
- 1939
- Energimerking
- Tomteareal
- 639 m² (eiet)
Fasiliteter
Barnevennlig
Balkong/Terrasse
Garasje/P-plass
Offentlig vann/kloakk
Parkett
Peis/Ildsted
Turterreng
Sentralt
Bredbåndstilknytning
Moderne
Lademulighet
Visning
torsdag, 09. april
18:30 – 19:30
Velkommen til visning!
Alle våre visninger har påmelding. På denne måten sikrer vi at megler har god oversikt og tid til å imøtekomme alle interessenter på beste måte. Dette er veldig verdifullt for boligkjøpere og for oss. Det er enkelt å melde seg på, og du kan like enkelt melde deg av. Kontakt også gjerne megler i forkant av visning dersom du har spørsmål.
søndag, 12. april
13:00 – 14:00
Velkommen til visning!
Alle våre visninger har påmelding. På denne måten sikrer vi at megler har god oversikt og tid til å imøtekomme alle interessenter på beste måte. Dette er veldig verdifullt for boligkjøpere og for oss. Det er enkelt å melde seg på, og du kan like enkelt melde deg av. Kontakt også gjerne megler i forkant av visning dersom du har spørsmål.
Om boligen
PrivatMegleren Renommé presenterer Kjelsåsveien 70B - en romslig og familievennlig enebolig med moderne standard og gjennomtenkt planløsning. Boligen har stor og solrik tomt, romslig terrasse, asfaltert parkering og elbillader.
Kjelleretasjen har egen inngang og er innredet med hybelløsning med entré, bad, stue/kjøkken og to soverom. Er i dag leid ut skattefritt for kr 16.000,- pr mnd. Kjelleretasjen er bruksendret.
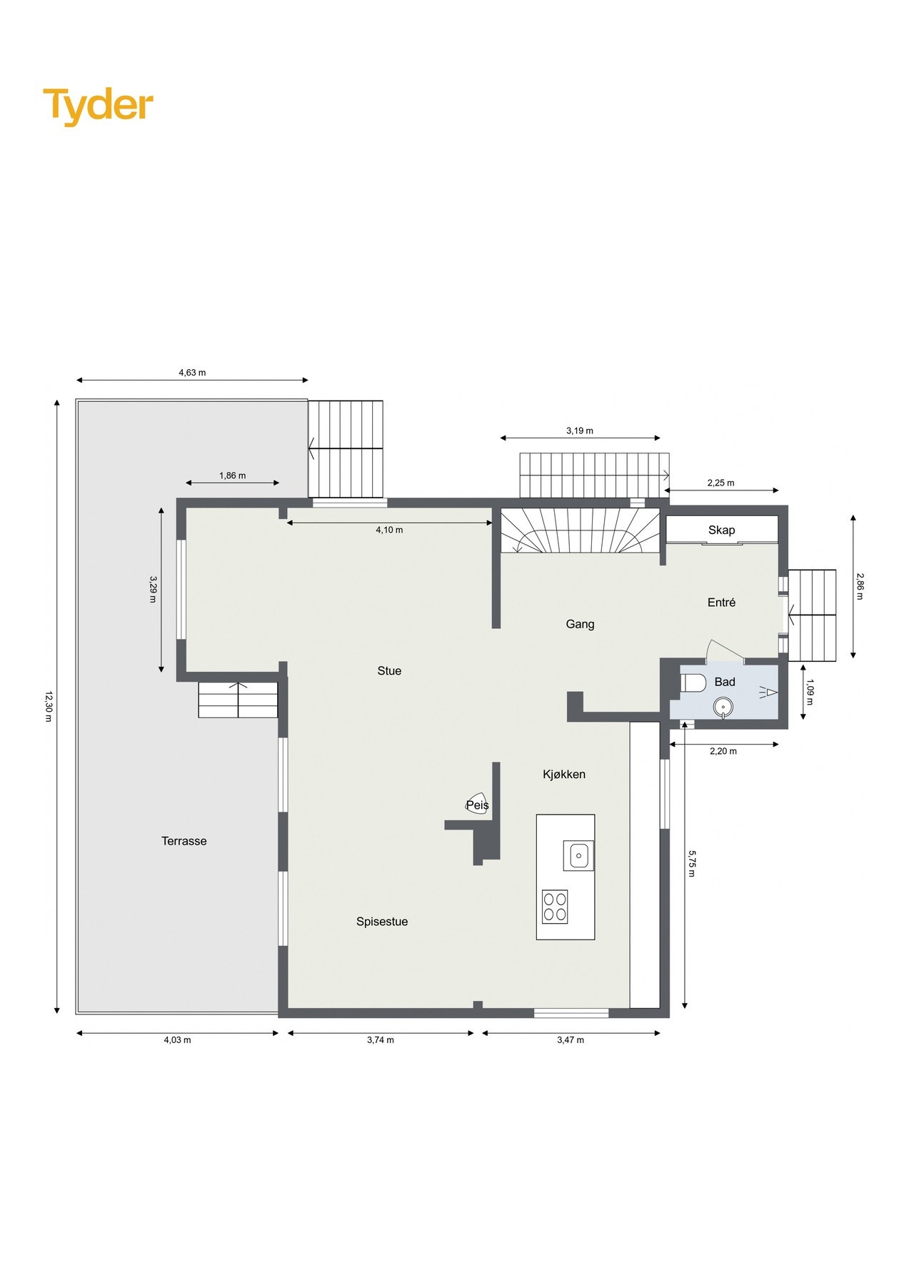
Første etasje har stor entré, bad med dusj og vegghengt toalett, lys stue med peisovn, spisestue og moderne kjøkken med kjøkkenøy og integrerte hvitevarer. Fra stuen er det utgang til en solrik terrasse på ca. 43 kvm, som videre leder til hagen.
Andre etasje har fire soverom, omkledningsrom og bad med spa-preg. Loftet har disponibelt rom og wc.
Boligen er betydelig oppgradert 2019-2022, og tilbyr en familievennlig bolig med fleksible løsninger, solrik uteplass og høy standard - ideell for både barnefamilier og de som ønsker ekstra plass til gjester eller hjemmekontor.
Kjelleretasjen har egen inngang og er innredet med hybelløsning med entré, bad, stue/kjøkken og to soverom. Er i dag leid ut skattefritt for kr 16.000,- pr mnd. Kjelleretasjen er bruksendret.
Første etasje har stor entré, bad med dusj og vegghengt toalett, lys stue med peisovn, spisestue og moderne kjøkken med kjøkkenøy og integrerte hvitevarer. Fra stuen er det utgang til en solrik terrasse på ca. 43 kvm, som videre leder til hagen.
Andre etasje har fire soverom, omkledningsrom og bad med spa-preg. Loftet har disponibelt rom og wc.
Boligen er betydelig oppgradert 2019-2022, og tilbyr en familievennlig bolig med fleksible løsninger, solrik uteplass og høy standard - ideell for både barnefamilier og de som ønsker ekstra plass til gjester eller hjemmekontor.
NB: Knappen for å vise hele beskrivelsen har kun en visuell effekt.
NB: Knappen for å vise hele beskrivelsen har kun en visuell effekt.
Salgsoppgaven beskriver vesentlig og lovpålagt informasjon om eiendommen
Se komplett salgsoppgaveNyttige lenker
Nærområdet

PrivatMegleren Renommé
Kun det beste på dine vegne
Annonseinformasjon
| FINN-kode | 455235797 |
|---|---|
| Sist endret | 01. apr. 2026 17:40 |
| Referanse | 40260038 |
Annonsene kan være mangelfulle i forhold til lovpålagt opplysningsplikt. Før bindende avtale inngås oppfordres interessenter til å innhente komplett informasjon fra meglerforetaket, selger eller utleier.























































