Bildegalleri

Velkommen til Grindbakken 7 presentert av Andreas F. Loeng v/EIE eiendomsmegling.
Holmenkollens solside
Lys og lekker 3-roms med fantastisk utsikt | Vestvendt terrasse | V.v. ink. | Markanær | Godt kollektivtilbud |
Prisantydning6 990 000 kr
Nøkkelinfo
- Boligtype
- Leilighet
- Eieform
- Andel
- Soverom
- 2
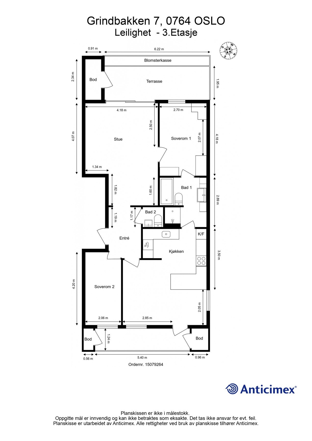
- Internt bruksareal
- 84 m² (BRA-i)
- Bruksareal
- 90 m²
- Eksternt bruksareal
- 6 m² (BRA-e)
- Balkong/Terrasse
- 19 m² (TBA)
- Etasje
- 3
- Byggeår
- 1985
- Energimerking
- F - Rød
- Rom
- 3
- Tomteareal
- 4 381 m² (eiet)
Fasiliteter
Barnevennlig
Balkong/Terrasse
Garasje/P-plass
Kabel-TV
Offentlig vann/kloakk
Parkett
Turterreng
Utsikt
Vaktmester-/vektertjeneste
Sentralt
Bredbåndstilknytning
Rolig
Lademulighet
Om boligen
Velkommen til Grindbakken 7 presentert av Andreas F. Loeng - En lys leilighet med 2 romslige soverom. Leiligheten ligger i et rolig og naturnært område med kort vei til flotte turområder i marka og gode rekreasjonsmuligheter året rundt. Fra boligen er det kort avstand til et godt kollektivtilbud, som gir enkel adkomst til Oslo sentrum. Leiligheten har også svært gode lagringsmuligheter med flere boder.
Verdt å merke seg:
- Garasjeplass med elbillader
- Varmtvann inkludert i felleskostnadene
- Endeleilighet
- Rolig og naturrikt område
- Kort vei til marka og gode rekreasjonsmuligheter
- Mulighet for leie av ekstra parkeringsplass
- Vaktmester og trappevask inkludert i felleskostnader
- Internett- og TV-pakke fra Telia inkludert i felleskostnader
- Hele 4 boder med gode lagringsmuligheter
- IN-lån
Verdt å merke seg:
- Garasjeplass med elbillader
- Varmtvann inkludert i felleskostnadene
- Endeleilighet
- Rolig og naturrikt område
- Kort vei til marka og gode rekreasjonsmuligheter
- Mulighet for leie av ekstra parkeringsplass
- Vaktmester og trappevask inkludert i felleskostnader
- Internett- og TV-pakke fra Telia inkludert i felleskostnader
- Hele 4 boder med gode lagringsmuligheter
- IN-lån
NB: Knappen for å vise hele beskrivelsen har kun en visuell effekt.
NB: Knappen for å vise hele beskrivelsen har kun en visuell effekt.
Salgsoppgaven beskriver vesentlig og lovpålagt informasjon om eiendommen
Se komplett salgsoppgaveNyttige lenker
Nærområdet
EIE eiendomsmegling Røa, Skøyen og Ullern
Annonseinformasjon
| FINN-kode | 455234690 |
|---|---|
| Sist endret | 15. mars 2026 10:37 |
| Referanse | 50260059 |
Annonsene kan være mangelfulle i forhold til lovpålagt opplysningsplikt. Før bindende avtale inngås oppfordres interessenter til å innhente komplett informasjon fra meglerforetaket, selger eller utleier.












































