Bildegalleri

Enebolig beliggende i etablert og rolig boligområde i Karudhagen i Løten. Boligen er oppført med trekledning og saltak tekket med decra takplater.
Karudhagan
Karudhagan - Enebolig over to plan | Oppgradert kjøkken | Terrasse | Garasje | Romslig tomt i etablert boligområde.
Prisantydning3 650 000 kr
Nøkkelinfo
- Boligtype
- Enebolig
- Eieform
- Eier (Selveier)
- Soverom
- 4
- Internt bruksareal
- 192 m² (BRA-i)
- Bruksareal
- 213 m²
- Eksternt bruksareal
- 21 m² (BRA-e)
- Balkong/Terrasse
- 28 m² (TBA)
- Byggeår
- 1974
- Energimerking
- Rom
- 6
- Tomteareal
- 1 184 m² (eiet)
Fasiliteter
Balkong/Terrasse
Barnevennlig
Bredbåndstilknytning
Garasje/P-plass
Hage
Kjæledyr tillatt
Offentlig vann/kloakk
Peis/Ildsted
Rolig
Sentralt
Visning
tirsdag, 24. mars
18:00 – 19:00
Som annonsert eller etter
avtale med megler Linn Tonje tlf 97027222
VisningspåmeldingOm boligen
Romslig enebolig beliggende i et etablert og familievennlig boligområde i Løten. Eiendommen har en romslig tomt med gode solforhold, opparbeidet gårdsplass med parkering og garasje.
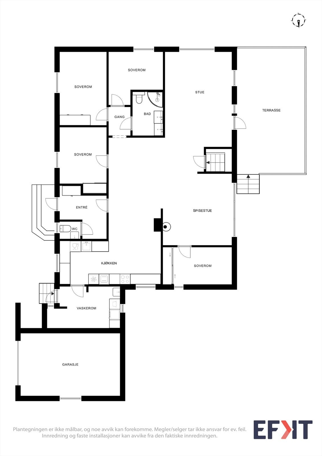
Boligen går over to plan og har en praktisk planløsning med entré, stue med utgang til vestvendt terrasse, kjøkken, bad, separat toalettrom, vaskerom med egen inngang og flere soverom i hovedetasjen. Kjelleretasjen inneholder flere disponible rom og gode lagringsmuligheter.
Kjøkken ble oppgradert i 2016 og det ble samtidig etablert vaskerom. Boligen ligger i et etablert boligområde med kort vei til daglige servicetilbud, skole og øvrige fasiliteter.
En bolig med godt potensial og praktiske løsninger som kan passe både barnefamilier og andre som ønsker en enebolig i et rolig og trivelig område.
Boligen går over to plan og har en praktisk planløsning med entré, stue med utgang til vestvendt terrasse, kjøkken, bad, separat toalettrom, vaskerom med egen inngang og flere soverom i hovedetasjen. Kjelleretasjen inneholder flere disponible rom og gode lagringsmuligheter.
Kjøkken ble oppgradert i 2016 og det ble samtidig etablert vaskerom. Boligen ligger i et etablert boligområde med kort vei til daglige servicetilbud, skole og øvrige fasiliteter.
En bolig med godt potensial og praktiske løsninger som kan passe både barnefamilier og andre som ønsker en enebolig i et rolig og trivelig område.
NB: Knappen for å vise hele beskrivelsen har kun en visuell effekt.
NB: Knappen for å vise hele beskrivelsen har kun en visuell effekt.
Salgsoppgaven beskriver vesentlig og lovpålagt informasjon om eiendommen
Se komplett salgsoppgaveNyttige lenker
Nærområdet
Østli Eiendomsmegling AS
Ditt hjem - vårt ansvar
Annonseinformasjon
| FINN-kode | 455234312 |
|---|---|
| Sist endret | 14. mars 2026 07:35 |
| Referanse | GAR28.265 |
Annonsene kan være mangelfulle i forhold til lovpålagt opplysningsplikt. Før bindende avtale inngås oppfordres interessenter til å innhente komplett informasjon fra meglerforetaket, selger eller utleier.







































