Bildegalleri

Velkommen til Hans Nielsen Hauges gate 14 og denne 3-roms leiligheten! Foto: Alexander Granlie | @boliggram
ØVRE TORSHOV / SANDAKER
Gjennomgående og fin 3-roms | Nytt kjøkken i 2024 | V.vann, fyring og fiber inkl. | Vendt i sin helhet mot gårdsrom
Prisantydning5 300 000 kr
Nøkkelinfo
- Boligtype
- Leilighet
- Eieform
- Aksje
- Soverom
- 2
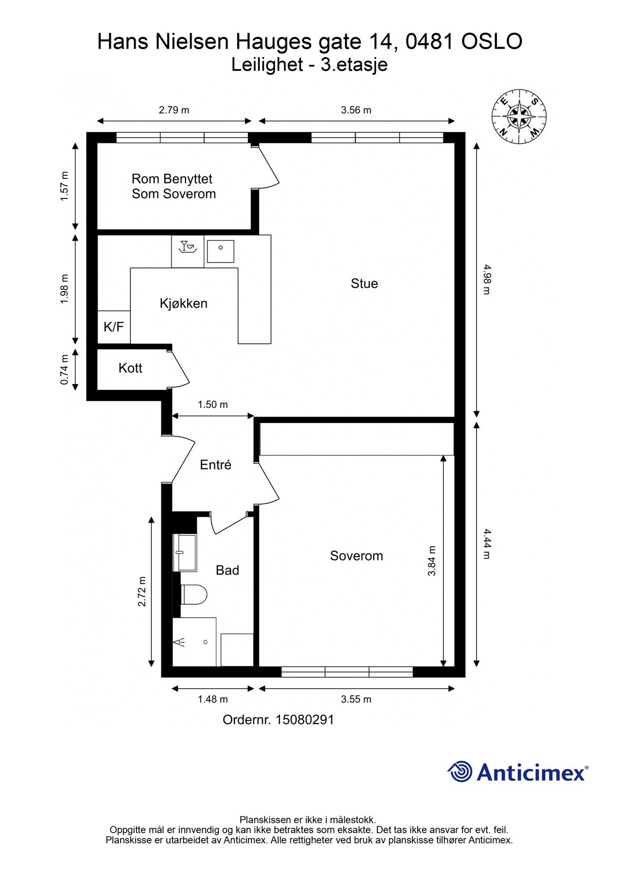
- Internt bruksareal
- 56 m² (BRA-i)
- Bruksareal
- 61 m²
- Eksternt bruksareal
- 5 m² (BRA-e)
- Etasje
- 3
- Byggeår
- 1933
- Energimerking
- G - Mørkegrønn
- Rom
- 3
- Tomteareal
- 6 597 m² (eiet)
Fasiliteter
Barnevennlig
Garasje/P-plass
Offentlig vann/kloakk
Ingen gjenboere
Turterreng
Vaktmester-/vektertjeneste
Fellesvaskeri
Sentralt
Bredbåndstilknytning
Moderne
Rolig
Lademulighet
Om boligen
Velkommen til populære Folkvang og denne fine leiligheten!
Dette er en vakker 3-roms leilighet, fint beliggende i byggets 3. etasje. Her får du fin standard, en godt gjennomtenkt planløsning og høy bokvalitet. Boligen ligger nemlig i populære Folkvang, et veldrevet aksjelag, med en omfattende og god vedlikeholdshistorikk. Her er tilnærmet alt inkludert i felleskostnadene, med både varmtvann, oppvarming og fibernett. I tillegg har aksjelaget en fulltidsansatt vaktmester, som virkelig står på for at beboerne skal trives.
Høydepunkter:
- Helt nytt kjøkken i 2024
- Stort hovedsoverom vendt mot lukket bakgård
- Barnerom / hjemmekontor, vendt mot forgård
- Isoleringsvinduer fra 2017
- Tilgang på hele 3 store bakgårdsrom
- Store sykkelskur og boder for barnevogn i bakgårdene
- Stor gjesteleilighet for besøkende
- Svært sentral beliggenhet, samtidig skjermet og rolig
- Bredt kollektivtilbud: Gangavstand på både trikk, buss og T-bane
- Mulighet for leie av garasjeplass i nabobygg
Dette er en vakker 3-roms leilighet, fint beliggende i byggets 3. etasje. Her får du fin standard, en godt gjennomtenkt planløsning og høy bokvalitet. Boligen ligger nemlig i populære Folkvang, et veldrevet aksjelag, med en omfattende og god vedlikeholdshistorikk. Her er tilnærmet alt inkludert i felleskostnadene, med både varmtvann, oppvarming og fibernett. I tillegg har aksjelaget en fulltidsansatt vaktmester, som virkelig står på for at beboerne skal trives.
Høydepunkter:
- Helt nytt kjøkken i 2024
- Stort hovedsoverom vendt mot lukket bakgård
- Barnerom / hjemmekontor, vendt mot forgård
- Isoleringsvinduer fra 2017
- Tilgang på hele 3 store bakgårdsrom
- Store sykkelskur og boder for barnevogn i bakgårdene
- Stor gjesteleilighet for besøkende
- Svært sentral beliggenhet, samtidig skjermet og rolig
- Bredt kollektivtilbud: Gangavstand på både trikk, buss og T-bane
- Mulighet for leie av garasjeplass i nabobygg
NB: Knappen for å vise hele beskrivelsen har kun en visuell effekt.
NB: Knappen for å vise hele beskrivelsen har kun en visuell effekt.
Salgsoppgaven beskriver vesentlig og lovpålagt informasjon om eiendommen
Se komplett salgsoppgaveNærområdet
EIE eiendomsmegling Ullevål & Sagene
Annonseinformasjon
| FINN-kode | 455219504 |
|---|---|
| Sist endret | 15. mars 2026 18:57 |
| Referanse | 15260012 |
Annonsene kan være mangelfulle i forhold til lovpålagt opplysningsplikt. Før bindende avtale inngås oppfordres interessenter til å innhente komplett informasjon fra meglerforetaket, selger eller utleier.





































