Bildegalleri

Velkommen til Antennevegen 15A presentert av Marie Traasdahl Hansen v/ Hjem Eiendomsmegling
Hamna
Stilren 3-roms i horisontaldelt bolig | Garasje | Nydelig utsikt og optimale solforhold | 32 kvm terrasse
Prisantydning4 900 000 kr
Nøkkelinfo
- Boligtype
- Leilighet
- Eieform
- Eier (Selveier)
- Soverom
- 2
- Internt bruksareal
- 85 m² (BRA-i)
- Bruksareal
- 90 m²
- Eksternt bruksareal
- 5 m² (BRA-e)
- Balkong/Terrasse
- 32 m² (TBA)
- Etasje
- 1
- Byggeår
- 1995
- Energimerking
- Rom
- 3
- Tomteareal
- 217 m² (eiet)
Fasiliteter
Balkong/Terrasse
Barnevennlig
Garasje/P-plass
Kjæledyr tillatt
Offentlig vann/kloakk
Peis/Ildsted
Rolig
Utsikt
Turterreng
Lademulighet
Visning
mandag, 23. mars
17:30 – 18:00
Vi ønsker visninger med høyest mulig servicegrad og forutsigbarhet. Derfor har vi alltid påmelding til visning. Meld deg på visning via lenken Visningspåmelding eller kontakt meg på tlf. eller e-post for å avtale tidspunkt. Visninger uten påmeldte deltagere vil bli avlyst.
VisningspåmeldingOm boligen
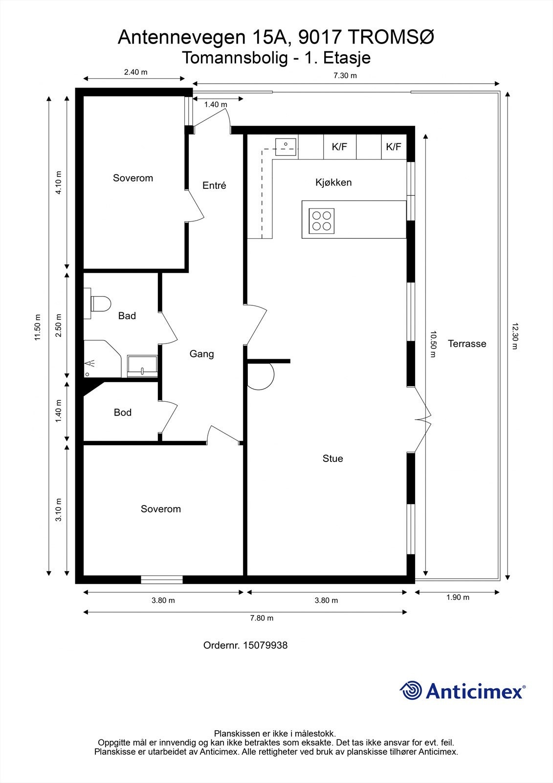
3-roms leilighet med god standard og attraktiv beliggenhet. Leiligheten har en funksjonell planløsning og består av entré/gang, to romslige soverom, flislagt bad/vaskerom med gulvvarme og praktisk innebod. Moderne kjøkken med integrerte hvitevarer og tidløs innredning med hvite slette fronte. God skap- og benkeplass. Romslig og lys stue med store vindusflater som slipper inn rikelig med dagslys. Vedfyring gir en lun og hyggelig atmosfære. Fra stuen er det utgang til en solrik terrasse på 32 kvm med fantastisk vestvendt utsikt over Hamna og Kvaløya.
Parkering i garasje med elbillader og sportsbod med god oppbevaringsplass.
Området er barnevennlig med kort vei til skole og barnehage i nærheten. Det finnes flotte turstier i nærområdet om sommeren, samt lysløype som brukes flittig vinterstid
Parkering i garasje med elbillader og sportsbod med god oppbevaringsplass.
Området er barnevennlig med kort vei til skole og barnehage i nærheten. Det finnes flotte turstier i nærområdet om sommeren, samt lysløype som brukes flittig vinterstid
NB: Knappen for å vise hele beskrivelsen har kun en visuell effekt.
NB: Knappen for å vise hele beskrivelsen har kun en visuell effekt.
Salgsoppgaven beskriver vesentlig og lovpålagt informasjon om eiendommen
Se komplett salgsoppgaveNærområdet
Hjem Eiendomsmegling
Annonseinformasjon
| FINN-kode | 455217167 |
|---|---|
| Sist endret | 16. mars 2026 14:19 |
| Referanse | 1-0064/26 |
Annonsene kan være mangelfulle i forhold til lovpålagt opplysningsplikt. Før bindende avtale inngås oppfordres interessenter til å innhente komplett informasjon fra meglerforetaket, selger eller utleier.



































