Bildegalleri

Sisilie Berg v/Nordvik Frogner har gleden av å presentere Marstrandgata 12. En lekker toppleilighet over to plan med etterspurt beliggenhet i et av Rodeløkkas mest sjarmerende kvartaler. Foto: Zovenfra
RODELØKKA/ØVRE GRÜNERLØKKA
Fantastisk og unik toppleilighet over to plan m/stor balkong, byutsikt, heis, garasje m/el - Ettertraktet beliggenhet
Prisantydning10 490 000 kr
Nøkkelinfo
- Boligtype
- Leilighet
- Eieform
- Eier (Selveier)
- Soverom
- 2
- Internt bruksareal
- 91 m² (BRA-i)
- Bruksareal
- 99 m²
- Eksternt bruksareal
- 8 m² (BRA-e)
- Balkong/Terrasse
- 13 m² (TBA)
- Etasje
- 6
- Byggeår
- 2014
- Energimerking
- Rom
- 3
- Tomteareal
- 666 m² (eiet)
Fasiliteter
Balkong/Terrasse
Barnevennlig
Bredbåndstilknytning
Garasje/P-plass
Heis
Kjæledyr tillatt
Kabel-TV
Offentlig vann/kloakk
Parkett
Rolig
Sentralt
Utsikt
Lademulighet
Visning
søndag, 22. mars
12:00 – 13:00
mandag, 23. mars
17:30 – 18:30
OBS! Alle våre visninger har påmelding. På denne måten sikrer vi at megler har god oversikt og tid til å imøtekomme alle interessenter. Meld deg på visning ved å trykke på lenken visningspåmelding. Passer ikke tidspunktet, kontakt eiendomsmegler/Partner Sisilie Berg på tlf. 91667905 for å avtale visning.
VisningspåmeldingOm boligen
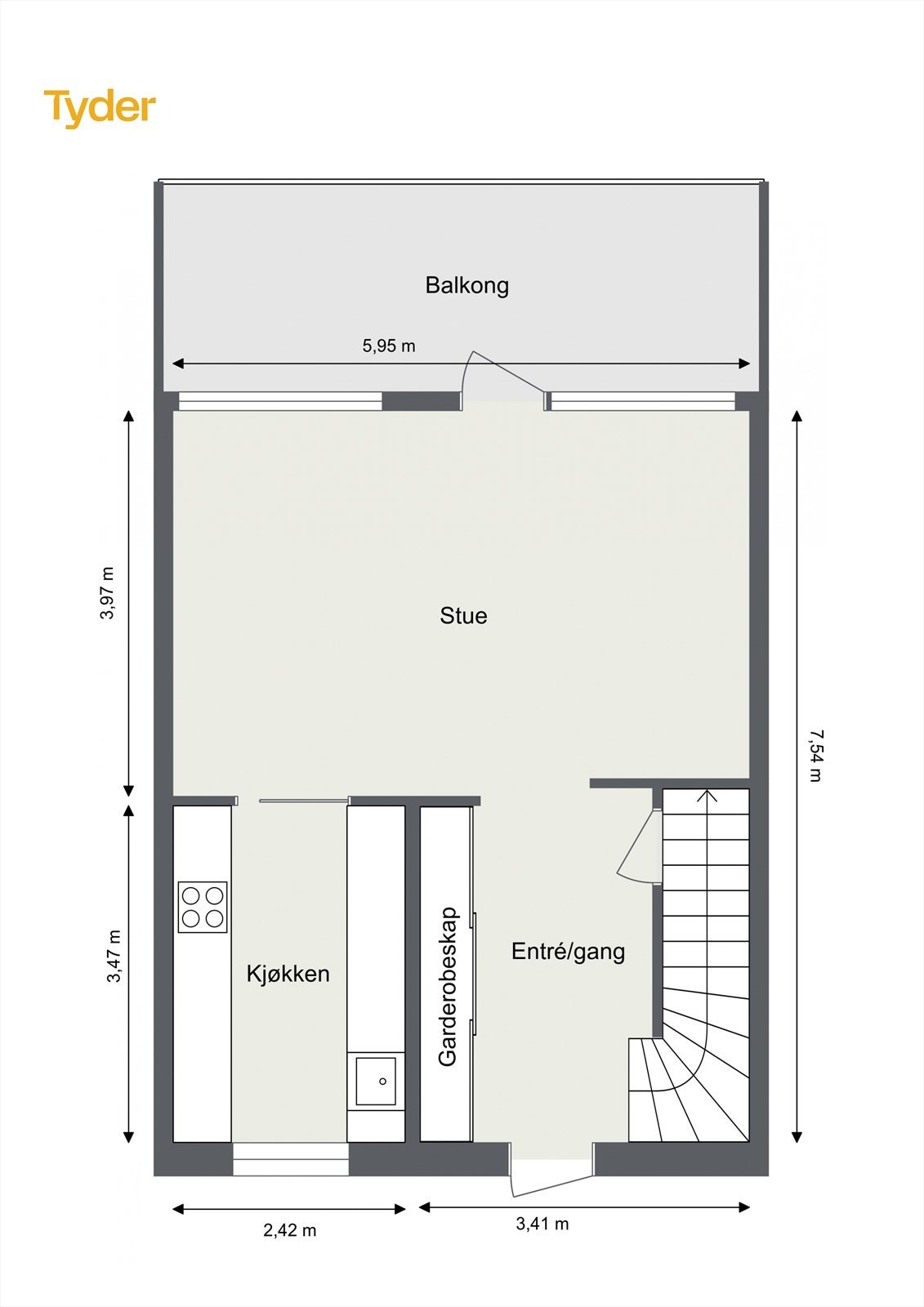
Velkommen til Marstrandgata 12. En unik og særegen toppleilighet over to plan i populære Chocoladefabrikken på Rodeløkka. Boligen kombinerer moderne arkitektur med historiske fabrikklokaler og ligger høyt og fritt i byggets 6. og 7. etasje med heisadkomst. Store vindusflater gir rikelig lys, og fra stuen er det utgang til en solrik balkong på 13 m² med imponerende byutsikt. Leiligheten har to gode soverom, 2 stuer, flislagt bad, stilrent kjøkken fra Drømmekjøkken, innvendig bod, kjellerbod og garasjeplass med lader. Balansert ventilasjon, varmtvann og fyring inkludert, bygget har en stor bakgård med fine fellesarealer. Attraktiv beliggenhet nær Grünerløkkas caféer, butikker, kollektivtransport og parkliv, perfekt for deg som ønsker en moderne, sentralt beliggende bolig med særpreg.
NB: Knappen for å vise hele beskrivelsen har kun en visuell effekt.
NB: Knappen for å vise hele beskrivelsen har kun en visuell effekt.
Salgsoppgaven beskriver vesentlig og lovpålagt informasjon om eiendommen
Se komplett salgsoppgaveNyttige lenker
Nærområdet
Nordvik Frogner
Annonseinformasjon
| FINN-kode | 455211295 |
|---|---|
| Sist endret | 15. mars 2026 07:35 |
| Referanse | 14-0131/26 |
Annonsene kan være mangelfulle i forhold til lovpålagt opplysningsplikt. Før bindende avtale inngås oppfordres interessenter til å innhente komplett informasjon fra meglerforetaket, selger eller utleier.

























































