Bildegalleri

Sagene
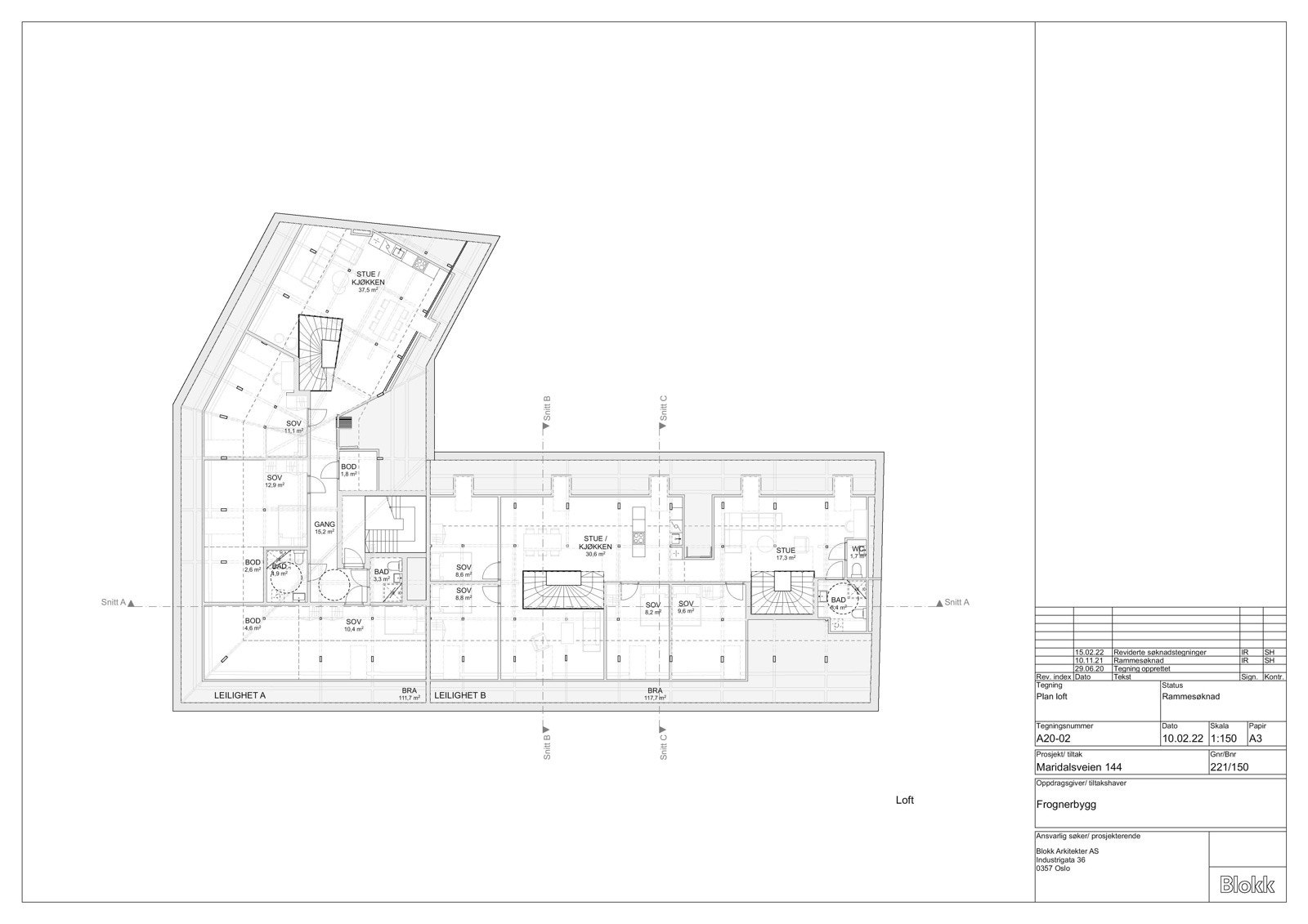
Salg av råloft med ramme for to leiligheter på ca 111 kvm og ca 117 - Tilbaketrukket og attraktiv beliggenhet
Prisantydning6 000 000 kr
Nøkkelinfo
- Boligtype
- Leilighet
- Eieform
- Andel
- Internt bruksareal
- 229 m² (BRA-i)
- Etasje
- 5
- Byggeår
- 1938
- Tomteareal
- 889 m² (eiet)
Visning
Alle våre visninger har påmelding. På denne måten sikrer vi at megler har god oversikt og tid til å imøtekomme alle interessenter på beste måte. Dette er veldig verdifullt for boligkjøpere og for oss. Det er enkelt å melde seg på, og du kan like enkelt melde deg av.
Kontakt også gjerne megler i forkant av visning dersom du har spørsmål.
VisningspåmeldingOm boligen
Velkommen til Maridalsveien 144 - Salg av råloft med ramme for to leiligheter. Dette er en fantastisk beliggenhet rolig og tilbaketrukket.
Kort fortalt:
- Ramme for bygging av to leiligheter på loftet
- Leilighetene går over 2 plan med inngang i 5. etasje
- Vidstrakt utsikt fra den delen som vender ut mot gaten
- Felles vaskeri og sykkelparkering i kjeller
- Attraktiv beliggenhet i en populær bygård
NB: Knappen for å vise hele beskrivelsen har kun en visuell effekt.
NB: Knappen for å vise hele beskrivelsen har kun en visuell effekt.
Salgsoppgaven beskriver vesentlig og lovpålagt informasjon om eiendommen
Se komplett salgsoppgaveNyttige lenker
Nærområdet

PrivatMegleren Dyve & Partnere
Kun det beste på dine vegne
Annonseinformasjon
| FINN-kode | 455201842 |
|---|---|
| Sist endret | 13. mars 2026 13:42 |
| Referanse | 159240440 |
Annonsene kan være mangelfulle i forhold til lovpålagt opplysningsplikt. Før bindende avtale inngås oppfordres interessenter til å innhente komplett informasjon fra meglerforetaket, selger eller utleier.












